前海颐湾府-前海颐湾府(2025·前海颐湾府最新)楼盘简介-房价-户型-售楼处位置小区环境-户型-价格-地址-楼盘详情-周边配套-售楼处电话-交房时间
扫描到手机,新闻随时看
扫一扫,用手机看文章
更加方便分享给朋友
…前海颐湾府……前海颐湾府……


项目基础信息
项目名称:颐城栖湾里
占地面积:27936㎡
建筑面积:104523㎡
建筑类型:住宅小高层
产权年限:住宅70年
容积率: 2.56
绿化率 : 40%
楼盘栋数:6栋
楼盘总高:17-22层
规划用户:住宅二期377套
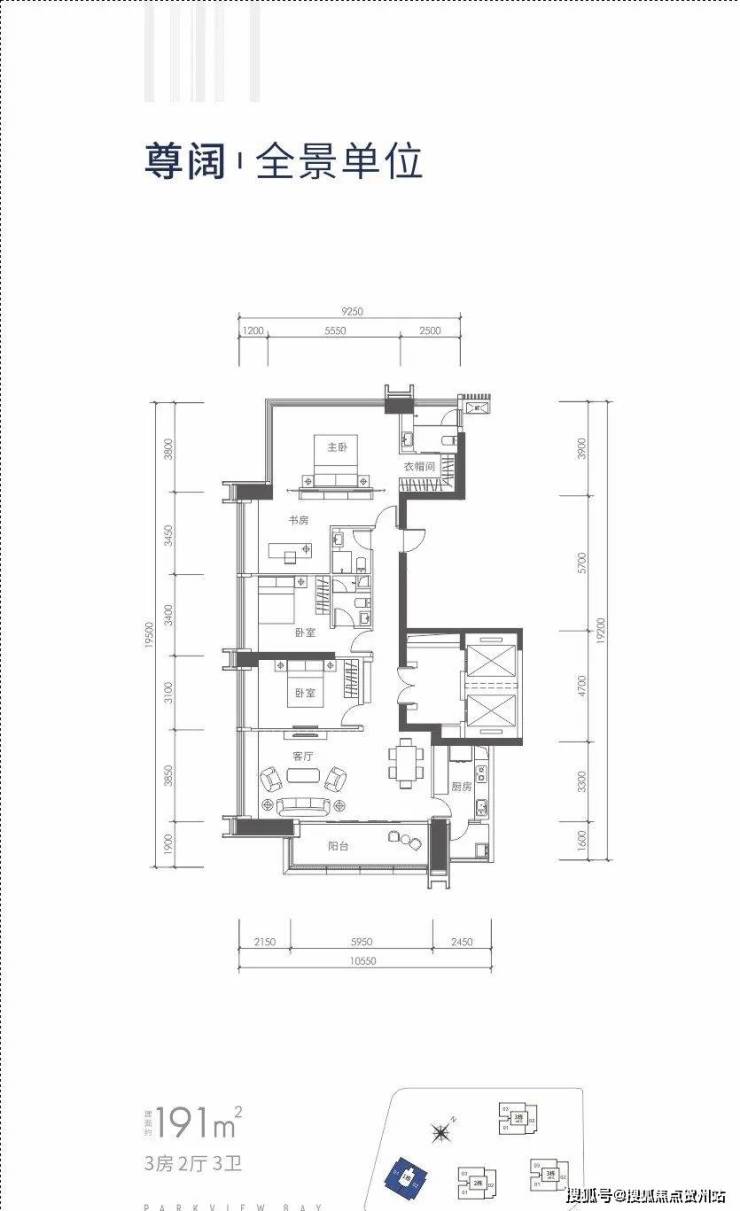
户型规划:约120㎡-262㎡
开发商:深国际前海置业(深圳)有限公司
项目介绍
本项目由深国际前海置业(深圳)有限公司进行开发,占地面积约4.6万平方米,计容总建面约10万平方米,涵盖写字楼、住宅及多层商业等业态。颐湾府是深国际智慧港先期项目的其中一个地块(含有4栋住宅的地块),用地面积为1.2万平方米,总建筑面积约7.8万平方米,容积率4.35,主要包括4栋住宅楼和街区式商业等。
颐湾府分为四期开发,一期项目(颐湾府)由深国际与深业共同开发,在2019年11月开盘,二期由深国际和开发,名为颐城栖湾里,由6栋低密度小高层建筑主体组成,352套房源,户型面积117-262㎡3-5房;三四期由万科主导开发,名为万科臻湾悦,638套房源,户型面积112-165㎡
平面图及户型图
声明:本文由入驻焦点开放平台的作者撰写,除焦点官方账号外,观点仅代表作者本人,不代表焦点立场。
