珠海港湾天际(售楼处)首页网站-港湾天际营销中心欢迎您-楼盘百科详情-最新价格-在售户型@售楼中心
扫描到手机,新闻随时看
扫一扫,用手机看文章
更加方便分享给朋友
珠海唐家—港湾天际售楼处电话☎:400 605 8819【售楼处已认证】
港湾天际售楼中心电话☎:400-605-8819【售楼中心已认证】✅
港湾天际营销中心电话☎:400 605 8819【营销中心已认证】✅
港湾天际销售中心电话☎:400-605-8819【销售中心已认证】✅
本项目暂不接受临时到访,过来参观样板房请记得提前来电预约!
为您安排楼盘现场销售全程接待并讲解,给您更贴心的看房体验!
开发商:珠海市高新城市建设有限公司
项目位置:广东·珠海·高新区·港湾大道·中大附中北侧·天际综合体2#
总占地:约4.43万㎡
总建面:约31.3万㎡
总户数:共计550户(1栋275户,本次加推2栋150户,3栋125户)
总层数:26层
总停车位数:约1985个
户型:32-105㎡一至三室山海美宅
装修标准:精装修
产权:住宅70年
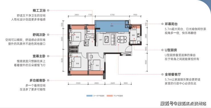
户型鉴赏
八大王牌户型面积段涵盖32-105㎡,满足投资自住多元化需求
户型方正、实用率高,赠送面积多
户型鉴赏
栋:
建筑面积约69m² 两房两厅一卫:

建筑面积约87m² 三房两厅一卫:

建筑面积约103m² 三房两厅两卫:

售楼处热线:400 605 8819【营销中心】
本文内容为广告推广,涉及房价或现有房源可能出现变更,请致电详询并以售楼部为准
免责声明:本文如无意中侵犯了某方的知识产权告知即删,部分内容图片可能来源于网络,无法核实其真实出处,如涉及侵权请联系本网站删除!!
声明:本文由入驻焦点开放平台的作者撰写,除焦点官方账号外,观点仅代表作者本人,不代表焦点立场。
