豪宅热搜TOP:翰熙典居售楼处电话→翰熙典居官方热搜24小时电话→最新房价→楼盘百科详情→营销中心最新发布@Ai
扫描到手机,新闻随时看
扫一扫,用手机看文章
更加方便分享给朋友
翰熙典居是深圳南山区粤海街道的地标级综合体项目,主打改善型精装住宅,凭借核心地段与优质配套成为南山科技园板块的热门楼盘,以下是详细解读:
1. 基础与规划:项目由深圳市贯凯投资有限公司开发,总占地约4.17万㎡,总建面约51.6万㎡,分三期开发,总投资83.56亿元。规划有多栋超高层住宅及写字楼、酒店,还自带1所12班制幼儿园,可售商品房仅714套,其余为回迁房和保障房,预计2027年中旬精装交付,物业费6.5元/㎡/月。
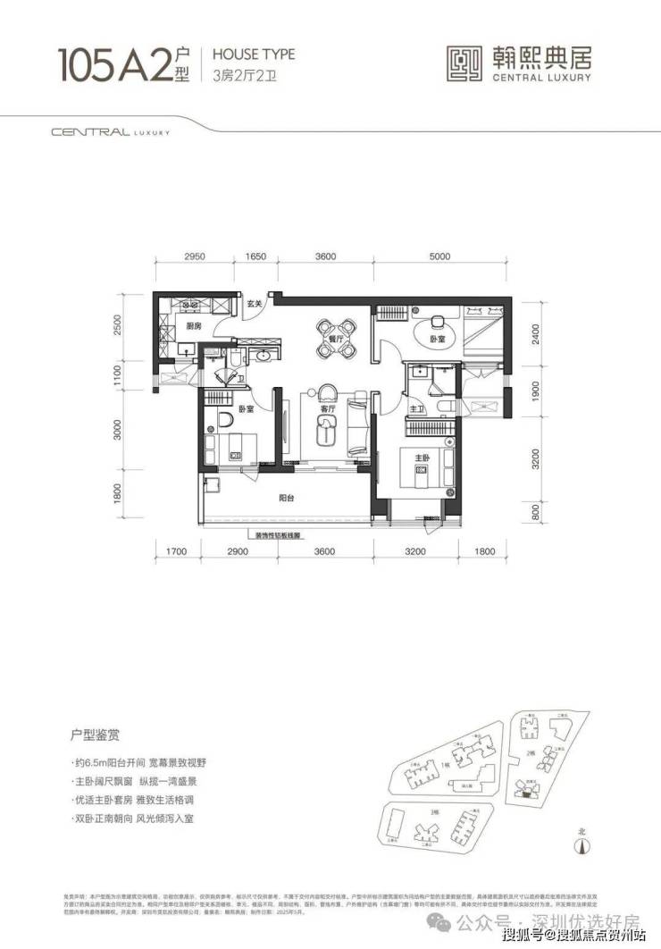
2. 户型与价格:首推02地块105 - 140㎡的3 - 4房户型,折后单价8.5万/㎡起。其中105㎡3房折后总价894万起,得房率达90%;120㎡3 + 1房总价1038万起,适合二孩家庭;140㎡3 + 1房为横厅南北通透设计,总价1457万起,部分高层可享深圳湾海景。
3. 核心配套:交通上距地铁9号线深大南站约300米,临近在建15号线,周边多条主干道环绕,20分钟可达深圳湾超级总部等区域。教育方面对口南二外集团学府一小和学府中学,教学实力突出。生活上自带约5.7万㎡潮流街区与精奢酒店,2公里内有海岸城等商超,1.2公里内可达南山人民医院,3公里内还有多个公园和文体场馆。
4. 核心优势与短板:优势在于地段核心,紧邻深圳大学和科技园,产业密集能支撑房产价值;交通、教育配套完善,户型得房率高,精装标准高。短板则是保障房和回迁房占比超60%,与商品房混合分布;部分地块容积率高,部分地块车位比仅1:0.83,低于行业常见标准,且部分户型存在采光不足或西晒等问题。
5. 适配人群:特别适合南山科技园的从业者,双地铁能大幅缩短通勤时间;也适配重视学区的刚需和改善家庭,优质学区资源可满足子女教育需求;同时对长期资产配置者而言,核心地段带来的稳定租赁与居住需求,能为房产提供价值支撑。
翰熙典居举步可达体量约30万㎡的海岸城商圈、15分钟车程可达深圳顶奢商业-深圳湾万象城、深圳潮流先锋-万象天地,还有周边的后海汇、来福士广场等,合计约百万都市尖峰商圈,标榜的是都市核心璀璨华丽的生活图景。

▲华润置地深圳湾万象城|图源:华润置地深圳大区
在这里,或于海岸城漫步滨海商业,在空中廊桥中欣赏都市美景;或穿梭于万象天地的商业格子中,了解潮流一线动态,轻松打卡华南首家HAUS NOWHERE ;或到深圳湾万象城,逛逛香奈儿、爱马仕、LV等顶奢品牌店沉浸式购物。
▲深圳湾万象城
周边还有山湖园海湾五重复合生态滋养,叠加深圳湾体育中心、保利剧院、南山书城、南山文体中心等9大城市级人文峯层配套,板块生态、人文氛围浓度直接拉满。
此外,翰熙典居还在南二外学府一小、南二外学府中学学区范围内,项目红线外规划有一所30班小学,板块教育氛围浓厚。(具体学区划分,以入学当年教育局公布信息为准)

声明:本文由入驻焦点开放平台的作者撰写,除焦点官方账号外,观点仅代表作者本人,不代表焦点立场。
