岗宏翰林汇售楼处(岗宏翰林汇营销中心)岗宏翰林汇首页网站欢迎您-楼盘详情-最新价格-户型图-容积率@售楼处AI热搜2025/11/10
扫描到手机,新闻随时看
扫一扫,用手机看文章
更加方便分享给朋友
����岗宏翰林汇����
��岗宏翰林汇售楼处电话:400-033-1856【已认证】��
��【岗宏翰林汇】Vip贵宾置业===欢迎来电预约尊享内部折扣===匠心钜制恭迎品鉴��
【岗宏翰林汇】丨楼盘详情丨价格丨更多优惠丨欢迎致电丨诚邀品鉴
✅岗宏翰林汇售楼处:400-033-1856【24小时预约热线】
✅岗宏翰林汇售楼处电话:400-033-1856【来电可享受优惠】
✅ 岗宏翰林汇营销中心电话400-033-1856【一对一热情服务】
✅本项目暂不接受临时到访,过来参观样板房请记得提前来电预约!
◆开发商营销中心诚挚邀请,一键预约,尊享内部独家折扣!匠心独运的精品项目,恭候您的品鉴与选择。
温馨提示:看房请提前来电预约,谢谢您的配合!(中介勿扰)
【岗宏翰林汇|学府大城,高效生活的理想坐标】
在深圳龙岗平湖这片蓬勃发展的热土上,一座总建面约47万平方米的学府综合体——岗宏翰林汇,正以卓越的姿态焕新城界。项目坐落于平湖大街与湖岭路交汇处,比邻平湖实验学校与建设中的园岭学校,以“公园里的城市综合体”为理念,集萃品质住宅、多元商业与全龄教育于一体,为深圳菁英家庭构筑高效、便捷与自然兼得的生活方式。
━━━━━━━━━━
一、|整体定位|平湖芯,学府畔的多元生活体
岗宏翰林汇由本土实力开发商岗宏集团开发,
总占地面积约2.79万㎡,
总建筑面积约33.6万㎡,
分两期开发。
一期翰林华府已建成交付,二期翰华广场新品加推,
主打建面约73-131㎡的二至四房,
精装交付,
定位为“罗湖北实验旁学府综合体”,融合居住、商业、教育、公园等多重功能,成为平湖区域罕有的高品质生活枢纽。
47万㎡大城综合体,大师匠造多元业态
二、|建筑美学|现代简约,与自然共生的立面艺术
建筑外立面采用现代简约风格,以浅色质感涂料搭配深色金属线条,勾勒出简洁明快的轮廓。立面注重横向延展与竖向比例的协调,阳台玻璃栏板与实体栏板相结合,既保障隐私又提升通透感。顶部通过金属格栅与局部挑檐处理,丰富天际线细节,整体造型稳重不失轻盈。
社区园林以“公园城市”为理念,打造多层次绿化空间。中心花园设置休闲步道、儿童活动区与健身场地,通过灌木、乔木与草坪的组合,营造出40%绿化率的生态住区。架空层融入泛会所功能,设置书吧、茶室与交流空间,延伸住户的社交与休闲场景。
━━━━━━━━━━
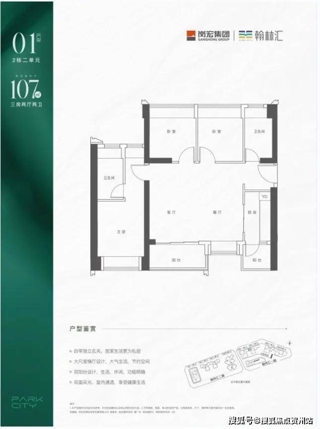
三、|户型设计|全龄适配,灵动空间
主力户型为建面约73-131㎡的二至四房,得房率约71%,全部精装交付,强调实用性与空间弹性:
户型均注重采光与通风,多户型实现南向或东南朝向,引景入室,营造明亮宜居氛围。
━━━━━━━━━━
四、|交通体系|丹平快速,高效通勤
项目最大亮点之一为无缝衔接丹平快速路,实现“0红灯上快速”,极大提升通勤效率:
约20分钟直达罗湖核心区,30分钟覆盖福田主要商圈;
周边主干道包括平湖大街、湖岭路、富安大道等,接驳沈海高速、水官高速等城市动脉;
规划中的地铁17号线(平湖站)与现有公交网络形成互补,未来轨道交通升级可期。
━━━━━━━━━━
五、|全维配套|举步皆繁华,资源环抱
‖商业配套‖
自带约4.4万㎡集中商业Mall,规划娱乐、文化、美食、购物等多功能业态;
周边融湖广场、万达广场、奥特莱斯等大型商业体环伺,轻松实现一站式消费。
‖教育资源‖
自带12班幼儿园(建设中);
比邻平湖实验学校(36班九年一贯制,区域排名领先)、园岭学校(建设中,36班九年一贯制);
近享鹅溪小学等优质教育资源,形成全龄教育闭环。
‖生态资源‖
三大公园环绕:凤凰山国家矿山公园、雁湖公园、鹅公岭社区公园;
雁田水库绿道举步可达,日常休闲、运动健身随心所欲。
‖医疗支持‖
深圳大学附属华南医院(三甲)距项目约15分钟车程,提供优质医疗保障。
‖人文生活‖
项目周边涵盖鹅公岭社区文化广场、图书馆等设施,营造浓厚社区氛围。
━━━━━━━━━━
六、|品牌背书|岗宏集团,深耕龙岗的匠心房企
岗宏集团作为龙岗本土知名开发商,曾开发龙城国际、壹克拉、家和盛世等多个标杆项目,以“资金实力雄厚、产品务实可靠”著称。翰林汇项目延续其一贯的精品开发理念,从选址、产品到服务皆体现深度洞察本土需求的能力。
━━━━━━━━━━
七、|价值展望|平湖芯,潜力可期
平湖作为深圳17个重点发展区域之一,定位“金融+科技+总部”特色的战略新兴产业基地,同时是深圳跨境电商产业聚集地,经济活力与人口吸纳能力持续增强。岗宏翰林汇以学府资源、高效交通、成熟配套与低门槛价格(均价约3.51万/㎡,折后约2.98万/㎡),成为刚需与改善家庭入驻平湖芯的优质选择。项目预计2025年9月交付,现正销售中。
岗宏翰林汇售楼处电话☎:400-033-1856【售楼处已认证】
��在售户型图丨项目介绍丨最新房源丨周边配套丨详细解答〢
岗宏翰林汇营销中心电话:400-033-1856【售楼处已认证】
⭐◆开发商营销中心诚挚邀请,一键预约,尊享内部折扣!匠心独运的精品项目,恭候您的品鉴与选择。
⭐项目最新介绍:备案价、折扣、学区、地铁、交通、户型图、特价房、优缺点、得房率、优惠活动、小区图片、开盘时间、交房时间、周边配套、售楼处位置、最新详情等咨询。
免责声明:
1、本文、图片等信息部分来源于网络,如有相关内容侵权,烦请联系删除。
2、本文所提及一切图文资料以政府最后审批之法律文件及买卖双方签订的买卖合同为准。
3、我们重在分享,本文所述内容和意见仅供参考,不构成市场交易依据和投资建议。
声明:本文由入驻焦点开放平台的作者撰写,除焦点官方账号外,观点仅代表作者本人,不代表焦点立场。
