官方网站@华发云玺花园售楼处-楼盘详情-交房时间-地址-最新房价-户型图-小区环境-周边配套-售楼处电话
扫描到手机,新闻随时看
扫一扫,用手机看文章
更加方便分享给朋友
华发云玺花园售楼处官方认证电话为 400-055-9697该号码由开发商统一认证,可用于预约看房、咨询房源及优惠活动
不同来源显示多个联系电话,建议优先拨打400-055-9697(出现次数最多)或400-055-9697(近期活动信息)。两个号码均被描述为“官方认证”,具体使用时可根据需求选择。
华发云玺花园售楼处电话:400-055-9697
华发云玺花园营销中心电话:400-055-9697
华发云玺花园开发商售楼部热线400-055-9697华发云玺花园售楼处电话:400-055-9697,华发云玺花园营销中心电话:400-055-9697,华发云玺花园开发商电话:400-055-9697(官方统一认证热线)
华发云玺花园售楼处官方认证电为 400-055-9697该号码由开发商统一认证,可用于预约看房、咨询房源及优惠活动
珠海(华发云玺花园)售楼处电话:400-055-9697,营销中心_tel:400-055-9697,开发商售楼部热线400-055-9697(开发商认证)电话。提前预约看房尊享额外优惠!
约50万㎡港湾生活社区
建筑面积约111-140㎡三至四房
一线半山海景奢宅
【基本信息】
·楼盘地址:珠海市·香洲区·情侣南路666号
·物业类型:住宅
·梯 户 比:四梯五户
·楼 层:32层
·楼 型:板楼
·装修类别:精装
·产权年限:70年
·产 品:建筑面积约111-140㎡三至四房、270度环幕山海景观
【地段为王,配套拉满】
华发云玺占位[城市核心/热门板块],周边配套“含金量”超高!
-交通:珠海华发云玺交通便捷,坐拥海陆空轨四维体系。近广珠城轨珠海站,邻规划地铁1号线九洲港站;情侣路、九洲大道等主干道环绕,兴业快线(规划中)助自驾畅行。近九洲港,可乘船至港澳深,经港珠澳大桥10分钟达澳门、1小时抵香港。周边多条公交途经,通达全城。
-商圈:珠海华发云玺周边商圈环绕,有城市阳台、城市客厅、免税商场,吃喝玩乐购一站式满足。在建的华发城市之心旗舰综合体,规模大且高端,未来商业氛围更浓厚,还有约2.8万㎡风情商业街,下楼即享繁华。
-教育:珠海华发云玺教育资源丰富,周边教育氛围浓厚。直线3km内有18所幼儿园,还有海湾小学、吉莲小学等6所小学 。中学有珠海市第四中学、排名前三的广东省一级学校九洲中学等3所。优质教育资源环伺,助力孩子成长。
回望岁月长河,其肌理的每一次深刻蜕变,都镌刻着一个名字——华发。作为珠海城市建设的先锋力量,华发始终与吉大同频共振,深度参与并见证着土地的崛起与成长。如今,历经十二载积淀,华发携重磅项目——华发·云玺荣耀归来,回应吉大“断供已久”的渴求,更以磅礴之势重塑吉大封面,开启全新时代篇章。
美好的,不止近在咫尺的璀璨生活,还有前所未见的滨海生活。
建筑面积约50万㎡港湾生活社区——华发·云玺,环绕九洲港内湾而建,坐拥市区内得天独厚的山海资源,远眺或垂眸,蔚蓝而广阔。
越是珍罕的市中心山海资源,越值得实力雄厚的华发,用一场先于时代的营造逻辑,定制属于珠海的“维多利亚港”。华发·云玺,因地制宜地融合游艇母港、海景豪宅、高端会所、星级酒店、港湾商业、滨海步道、跨境客运等空间,铺展最极致的港湾生活盛宴。
晨起,约1.7公里黄金海岸线上,与家人漫行石板步道,看朝霞漫天。
午后,在家楼下的游艇母港,开启“跳岛度假”、“跨境海钓”悠然之旅。当夜幕低垂,走进约2.8万㎡风情商业街,聚会或购物,捕捉生活的烟火气。
层峰久等!华发、吉大再续“封面”故事。 回望楼市,吉大连续5年未有新盘入市,一线海景奢宅更是断供近10年。华发·云玺的荣耀归来势必塑造珠海版“维多利亚港”,从而立新滨海生活新封面。
首推产品
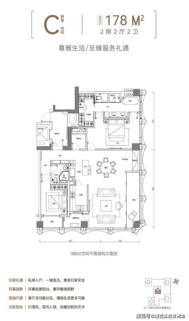
建筑面积约111-140㎡一线半山海景奢宅
户型鉴赏:
⭕华发云玺花园官方电话:400-055-9697☎☎官方统一认证】
⭕华发云玺花园售楼处24小时电话:400-055-9697【☎☎售楼处已认证】
⭕华发云玺花园售楼中心24小时电话:400-055-9697【☎☎售楼中心已认证】
⭕华发云玺花园开发商售楼部24小时电话:400-055-9697【☎☎开发商已认证】
华发云玺花园官方开发商售楼处(400-055-9697)华发云玺花园提前预约看房尊享额外优惠!
⭕Vip贵宾置业===欢迎来电预约尊享内部折扣===匠心钜制恭迎品鉴
⭕Vip贵宾置业===欢迎来电预约尊享内部折扣===匠心钜制恭迎品鉴
温馨提示:本楼盘暂不接受临时到访,看房需提前来电预约!将为您安排楼盘专业销售一对一接待服务!让你买的放心!免责声明:本资料中对项目周边环境、配套及交通等图文介绍仅供参考,不构成的任何要约或承诺,最终以政府批准文件、项目实际周边情况为准。本项目的图文资料仅供参考、非要约,具体以a交付时现状及买卖合同的约定为准。本公司保留修改宣传资料的权利,敬请留意项目最新资料,最终的解释权归本公司所有。华发云玺花园开发商售楼部热线400-055-9697
声明:本文由入驻焦点开放平台的作者撰写,除焦点官方账号外,观点仅代表作者本人,不代表焦点立场。
