鸿荣源观城售楼处电话-深圳◕鸿荣源观城首页网站-鸿荣源观城营销中心-楼盘详情-最新价-户型图-容积-配套@2025.11.21售楼处AI热搜
扫描到手机,新闻随时看
扫一扫,用手机看文章
更加方便分享给朋友

最新消息:【鸿荣源观城】08地块1栋1单元已取证,明日(11月22日)开盘!

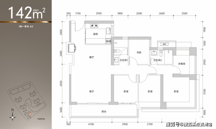
此次加推的1栋1单元,59F,4T6户,共318套,88-98㎡三房两卫,108-142㎡四房两卫,预计2026年12月精装交付。
折后价格区间如下:
01户型99㎡:总价351-366万;02户型142㎡:总价624-648万
03户型99㎡:总价387-395万;05户型99㎡:总价369-377万
06户型108㎡:总价458-468万;07户型89㎡:总价318-327万

户型选择多样,并不是新规产品,但使用率还不错约90%。(据说飘窗可砸,这样下来使用率及舒适度还是非常不错的)。






除了常规的住宅、商业、学校外,还包含文旅、医疗、公园等,另外打造特色连廊串联整个项目,高速直通地库优化交通。

教育:更新单元规划8所学校。包括5所幼儿园(规划共75班),3所九年一贯制学校(规划新建72班+54班)。按照鸿荣源的一贯作风以及超强的运营能力,大概率会引入名校资源。

商业:深圳首创「文化+地铁+公园+商业」主题商业,再造约40万㎡壹方天地,以公园为主题融合历史文化建筑马坜大屋打造特色文化商业街区。鸿荣源的商业购物中心都做的非常出色,已接近封顶的壹方天地,等到观城的首期住宅交付和购物中心开业,这里又是妥妥的一个地标综合体。

文旅:保留修缮碉楼宗祠古树。项目内拥有马坜大屋、两座碉楼、何氏宗祠、古树等历史文化古迹,规划打造综合文化中心、文体设施用地。
医疗:拥有一块医疗卫生用地+一块社会福利用地。
公园:5大公园融入社区,超级云环串联。深圳独创规划超3.6km空中连廊,串联5大公园,商业,住区、办公、文化休闲、生态等,公园集群超23公顷,覆盖文物科普、生态康养、文化休闲等八大特色主题。建成后业主直接通过连廊通往商业,住宅,公园等各个区域,自成一体。


交通:首创梅观高速直通各地块地库。 目前梅观高速还没有匝道出来直达项目,所以观城到市区上梅观还需要绕一点路,未来业主直接从地库出发上梅观后一路向南可以快速抵达福田中心区,高效出行。

声明:本文由入驻焦点开放平台的作者撰写,除焦点官方账号外,观点仅代表作者本人,不代表焦点立场。
