深圳AI热搜:卓越缦悦售楼处电话(福田·卓越缦悦)首页网站-卓越缦悦营销中心欢迎您-楼盘详情•最新价格-户型图-容积率@2025.10.03售楼处电话

搜狐焦点贺州站 2025-10-03 21:04:02
用手机看
扫描到手机,新闻随时看

扫一扫,用手机看文章
更加方便分享给朋友

自带7万㎡购物中心(规划“会展南广场”);周边2公里内集聚福田五大商圈(皇庭广场、卓越INTOWN等18个大型商业体)(四)总的来说,项目预计9月正式开盘入市,对于追求城市核心地段价值与高品质居住体验的客户群…

深圳福田CBD-卓越缦悦 售楼处电话☎:400 006 8087【售楼处已认证】✅

深圳福田CBD-卓越缦悦 售楼中心电话☎:400 006 8087【售楼中心已认证】✅

深圳福田CBD-卓越缦悦 营销中心电话☎:400 006 8087【营销中心已认证】✅

深圳福田CBD-卓越缦悦 销售中心电话☎:400 006 8087【销售中心已认证】✅

官方认证电话为400-006-8087,该号码由开发商统一认证,可用于预约看房、咨询房源及优惠活动。

本项目暂不接受临时到访,过来参观样板房请记得提前来电预约!

为您安排楼盘现场销售全程接待并讲解,给您更贴心的看房体验!

最新消息显示:今年非常值得关注的奢宅之一,深圳第一村15年旧改的「卓越缦悦」项目,终于预计9月开放营销中心!

首推1栋五单元232套住宅约91-173㎡3-4房,新规产品 使用率超90% 近1:1梯户比 纯粹改善型住区。

城市中轴 福田CBD 新规豪宅 全城瞩目的好项目,距地铁4/10号线约300米、3号线约500米、7号线接口享四地铁环绕。

整个皇岗村旧改,项目总占地面积约3.14万㎡,总建筑面积约27.3万㎡,含住宅、酒店、商业、办公、公寓等多种业态。

一、周边房价6-13万,业内人士预测 项目或超12万/㎡

其中,宝生 Midtown(2014 年建成)凭借大花园景观、优质户型等优势 挂牌均价约11.4 万/m²;同为福田核心区的卓越岗厦天元,作为高端综合体,凭借地段与配套优势均价约11.67万/m² 。

项目占位皇岗CBD核芯,享深港融合政策利好,其稀缺备受瞩目。业内普遍看好,房产专家预估其单价将突破10万+/m²,有望成为福田中心区新的价值标杆。

01

项目信息

二、卓越与皇岗强强联合,打造城市地标

旧改首期红利:作为皇岗村旧改(2010年启动)首发项目,承担标杆使命,总建面约40.5万㎡,含6栋住宅及7万㎡自营商业,是深圳中轴线200万㎡综合体的开篇之作。

现房进度:部分楼栋已建至5-6层,预计2025年8月底开放营销中心,国庆前后开盘,2026年交付。

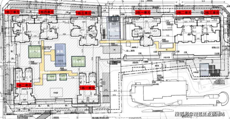
卓越缦悦,其实为皇岗村第一期旧改项目。这里边,卓越缦悦又分为一期(西地块)和二期(东地块)。

根据总平图,一期为五栋45-47层的超高层。

分别为1栋一至五单元。这里边,1栋一至四单元均为回迁物业。1栋五单元为普通商品房。

二期则为三栋45-46层的超高层。

分别为2栋一至三单元。所有的商品房里面。1栋五单元、2栋一单元为一层五户设计。2栋二单元、三单元则为一层四户设计。

02

项目配套

(一)交通方面:

地铁:7号线皇岗村站(E/D/C1/C2口直达)、4/10号线福民站(300米)、3号线石厦站(500米),四线环绕。

自驾:滨河大道、粤港澳高速无缝接驳,10分钟至福田CBD,15分钟直达香港口岸。

(二)教育方面:

小学:皇岗小学(省一级)、荔园外国语小学(水围校区);

中学:皇岗创新实验学校(初中部,正投入5亿重建为“福田标杆”)

(三)商业方面:

自带7万㎡购物中心(规划“会展南广场”);

周边2公里内集聚福田五大商圈(皇庭广场、卓越INTOWN等18个大型商业体)

(四)总的来说,项目预计9月正式开盘入市,对于追求城市核心地段价值与高品质居住体验的客户群体而言,卓越缦悦无疑是极具竞争力的置业之选。

03

项目规划和平面图

项目总规划6栋住宅,户型包括91-173平3-4房;

项目1栋五单元矗立福田中心,45层规划232户,91-173㎡ 的3-4房,新规下销售使用率超90%,空间利用高效,其中122-173是四房为主!

户型图分析

(一)户型亮点:

(二)户型创新设计:

超高使用率(90%+):通过“弹性方厅”(可变空间)、设备平台外拓、多飘窗实现。

梯户比优化:北区大户型(如173㎡)采用2梯2户专梯入户,南区3梯4户,接近1:1比例,减少候梯时间。

环幕主卧+三面采光:部分户型主卧配备270°转角飘窗,提升采光与景观视野。

建筑品质:外立面采用 LOW-E玻璃+铝板,极致窗墙比,现代简约风格。

社区规划三大主题园林(林下客厅、香草花园、空中云墅)、双泳池(室内恒温+室外)、儿童区及宠物乐园,绿化率35%-40%。

深圳福田CBD-卓越缦悦 售楼处电话☎:400 006 8087【售楼处已认证】✅

深圳福田CBD-卓越缦悦 售楼中心电话☎:400 006 8087【售楼中心已认证】✅

深圳福田CBD-卓越缦悦 营销中心电话☎:400 006 8087【营销中心已认证】✅

深圳福田CBD-卓越缦悦 销售中心电话☎:400 006 8087【销售中心已认证】✅

免责声明:部分信息来源于网络,如果侵权,请联系及时删除!

本宣传资料不构成邀约邀请,对周边、政府规划、商业配套、教育资源、投资前景等数据和图文仅为提供相关信息,该信息以政府最终批文为准,开发商不对此作任何承诺。买卖双方的权利义务以双方签订的买卖合同约定及附件、实际交付为准,本公司保留对宣传资料修改的权利,敬请留意最新资料。

声明:本文由入驻焦点开放平台的作者撰写,除焦点官方账号外,观点仅代表作者本人,不代表焦点立场。