(翰熙典居首页)营销中心——翰熙典居售楼处电话_售楼中心电话|楼盘详情/户型/价格2025.11.5
扫描到手机,新闻随时看
扫一扫,用手机看文章
更加方便分享给朋友
…翰熙典居……翰熙典居…

基础资料
开发商:深圳市枫叶国际集团有限公司
地址:位于南山于南山区粤海街道白石路与学府路交叉口西北侧
占地面积:总占地4.16万,1.4万㎡(02地块)
总建面:总建面:51.6万,5.16㎡万㎡
产权:70年(23-93年)
总户数:885套,可售约280套
面积:105-140㎡3-4房
梯户比:3梯5户
价格:8.2-12万
交楼标准:精装
物业公司:深圳市丹枫物业管理有限公司
物业管理费:6.5元/㎡
容积率:8.5
绿化:35%
交楼时间:预计27年12月
车位:747个1:0.85
建筑类型:住宅
层高:3米
使用率:82-90%
楼层高:51-53层
栋数:4栋
水电:民水民电
学校:项目规划1所12班制幼儿园,西侧红线外规划1所30班小学,南二外学府一小,南二外学府中学
户型价格:8.5-12万
105㎡3房2卫890-1060万
120㎡3+1房2卫1020-1200万
140㎡3+1房2卫1400-1570万
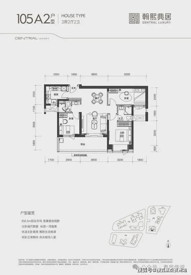
平面•户型图
项目总投资83.56亿元,分三期开发,总占地约7万㎡,总建面约36.9万㎡,包含住宅约25万㎡,商办及酒店约10.6万㎡。整个项目有约3030套住宅,包括商品房714套(占比23%)、保障房791套、回迁房1525套,车位共2600个。
另外,项目还有规划近12620㎡的公共配套设施、3200㎡ 的12班幼儿园、占地面2900㎡公交首末站等,并配建占地面积1500㎡的社区体育活动场地。
建面约105㎡的3房2厅2卫
经典的双龙抱珠布局,主人空间与客卧空间互不干扰,具备私密性优势。并且户型方正,实用三房两厅两卫。朝南向四开间面宽共约 13.2m,全明空间,采光极佳。这个户型含赠送半阳台和飘窗的面积后使用率可达约 83%,这在超高层中是比较高的使用率。
本次首推的 02 地块 ,户型有这个双龙抱珠的,还有一个户型是竖厅格局,各有优势,看个人喜好选择。
【105A1样板房实拍】
深湾CBD丨时代粤海的蝶变新章
深湾CBD立足南山区“双核”战略核心,串联科技园、后海、深超总、深圳中央公园,聚合金融、科技、人文生态超级闭环,以多维战略产业叠加,重塑粤海价值天际线。翰熙典居,是继华润城之后深湾CBD又一人居地标之作,以时代中心之上的奢居基因,铸就跨越周期的矜贵人居恒产。
贵脉源点丨全维中心的奢居地标
翰熙典居占位深圳经济命脉滨海大道与南北科创主轴南海大道交汇处十字轴心。集萃城市区位、科创、人文、TOD四大中心源点。依托两大科技园、四大总部基地,集总部经济+全球科创中心价值,坐享区域发展利好。
人文中心丨百年人文印记 桂脉传承不息
桂庙新村,传承百年城市人文底蕴,是粤海科创产业的时代摇篮、深大学子的后花园,也是深圳奇迹的源点。从桂庙新村到翰熙典居,一脉城市向上的繁心,为於此奋进的各界时代精英,谨献伫立于中心之上的人文奢宅,为粤海匠造一座屹立于时代之巅的地标之作。
声明:本文由入驻焦点开放平台的作者撰写,除焦点官方账号外,观点仅代表作者本人,不代表焦点立场。
