金信中心(售楼处电话)2025首页网站-金信中心营销中心-金信中心楼盘详情/户型/价格/地址@售楼处 @@@
扫描到手机,新闻随时看
扫一扫,用手机看文章
更加方便分享给朋友
…金信中心……金信中心……
【项目基础信息】
「开发商」:深圳市金信联投资有限公司
「占地面积」:约2.19万㎡
「建筑面积」:约20万㎡
「项目业态」:研发办公
「项目位置」:深圳市宝安区107国道8号

【产品基本信息】
「建筑面积」:约51696.85 ㎡
「容积率」:约6.3
「产权年限」:50年(2021.4.12—2071.4.11)
「车位数量」:715
「交楼标准」:毛坯交付
「高度」:约170m
「层高」:大堂约15m,次大堂层高10.5m,其余各层约4.5m
「使用率」:67.5%
「电梯配置」:11+1部进口三菱电梯(货梯载重3吨)
「楼板荷载」:研发楼首层承重800KG/㎡,2-3层承重650KG/㎡,5F以上承重550KG/㎡
「物业公司」:华润物业
「物业费」:13元/㎡/月
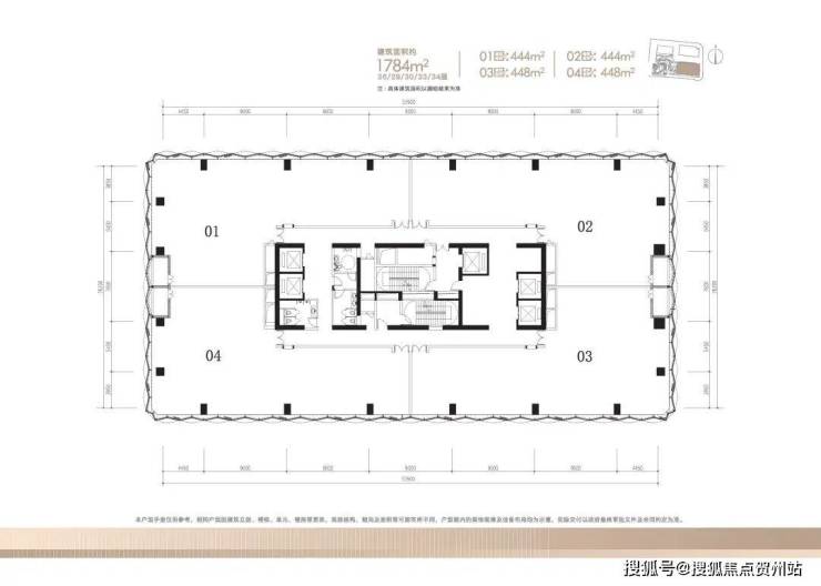
金信中心·智慧办公标准层户型图
会呼吸的写字楼,创造灵感办公新想象
艺术性的幕墙设计,造型奇特、凹凸有致、复杂但充满韵律的玻璃幕墙,不同的视角呈现不同立面效果“宝石型”的玻璃幕墙单元,整体呈现凹凸的建筑体量,像一根挺拔的竹子,寓意着企业“节节攀升”的美好前景;在阳光的照射下,幕墙的光影美轮美奂,灼灼其华,温婉动人。

缔造片区商务典范 致敬塔尖人物的向往
奢配双大堂,主大堂15米震撼挑高,次大堂挑高10.5米,出入臻享尊贵礼遇,奢阔之间尽显尊崇。

---------------------------------
【产能叠加 中心蓄势待发】
国家战略领航,前海八倍扩容辐射区,叠加西部城市中心区,汇聚海洋新城、会展新城、空港新城发展能级,定鼎未来中心地位。
【擎领未来 西部城市中心】
深圳西部城市中心划定沙井、新桥、松岗,叠加深圳“多区”战略,聚合会展新城、航空新城、海洋新城等多能级辐射,区域未来价值不可估量。
——信息来源:《宝安日报》
【千亿产业 蝶新区域价值】
广深科创走廊核心、107国道经济脊梁,会展/海洋/文旅三大千亿级产业加持,新桥东“平方公里级”工改工项目启动,聚焦先进制造业,驱动片区价值升级。
【六维交通 畅达都市繁华】
坐拥高快速路网、航空、海港、高铁、地铁、城际六维立体交通
🚈地铁:11号线后亭站、6号线松岗站、26号线潭头站(规划中)便捷出行
🛣陆路:G107大道、宝安大道、京港澳高速、外环高速、沿江高速
高铁:机场东高铁站,打造陆空一体化综合枢纽
🚞城际:深莞穗城际铁路、深大城际(建设中)、深茂铁路(建设中)打通城际干线
🛳海路:现有福永码头及规划新增宝安综合港区,未来实现空海联运贯通
空港:深圳宝安国际机场
开放式艺术园林 超2万㎡生态会客厅
匠造三重生态会客厅——社区艺术花园、城市台地景观、沿街城市客厅,超2万㎡开放式艺术生态园林,于此踱步休闲,洽谈会客,尽享美好时光。
超2万㎡缤纷主题商业空间 缤纷购物下楼即享
项目自带超2万㎡缤纷商业空间,未来将引进多种主题商业业态,缤纷购物下楼即享。此外,社区配备行政服务大厅、党群服务中心、智能化体验中心、知识产权培训中心、文化活动室、社康中心等,360°全情景贴心呵护,致力打造和谐社区。
声明:本文由入驻焦点开放平台的作者撰写,除焦点官方账号外,观点仅代表作者本人,不代表焦点立场。
