前海颐湾府首页热搜:前海颐湾府售楼处电话→前海颐湾府→Ai热搜售楼处24小时电话→2025最新房价→楼盘百科详情→售楼处更新发布@售楼中心2025-11-22
扫描到手机,新闻随时看
扫一扫,用手机看文章
更加方便分享给朋友
【项目介绍】
开发商:双千亿国企深国际和深业集团合作开发
土地年限:70年(2015年1月1日起)
占地面积:约1.2万平米
建筑面积:约7.8万平米
容积率:4.35
可售住宅面积:约5万平米
绿化覆盖率:约40%
建筑栋数:4栋,其中1栋和2栋43层,3栋1单元30层,3栋2单元31层
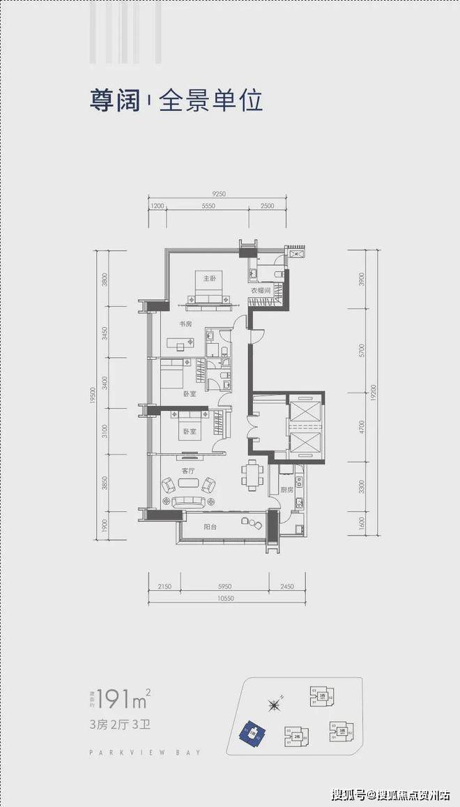
户型:分别是120平米3房2厅2卫,190平米4房2厅3卫
入伙时间:已于2021年6月底入伙
项目总套数:377套
所见即所得,无需等待!
【项目卖点】
1、粤港澳大湾区——前海,特区中的特区。妈湾,前海宜居宜业的区域,妈湾,“一带一路”国际经贸合作先导区。
交通配套
距离地铁5号线南延线铁路公园站约150m,北上到前海湾站,可换乘1、11号线,去往科技园、车公庙、福田、机场等地方,
或者继续坐5号线前往宝中、西丽、深圳北站等地方。
南下至赤湾站,换乘2号线,去往蛇口、后海、世界之窗等地方。
规划中的地铁15号线也将在铁路公园站交驳,预计2021年底动工。
妈湾跨海通道建成后,自驾也比较方便。
商业配套
除邻近深国际智慧港的多层商业外,周边1公里内有7栋写字楼组成的现代自贸城,附带商业面积约5万㎡、印里首期商业(约3万平),今年9月正式开业,会有愈欣书店、SEESAW咖啡、罗森便利店、丘大叔柠檬茶等多个品牌入驻
教育配套
项目北边规划了一个九年制学校(还没建)
幼儿园+小学+中学,周边存在丰富的教育资源。
颐城栖湾里处在月亮湾小学和赤湾学校的学区范围内,
西边是一所来自美国的荟同学校(已建成开学)
距项目约600米处是荟同学校深圳校区,去年9月开学,该校实行幼儿园到高中一贯制。
城市天赋自然资源——项目背靠大小南山,尽享丝路长廊起点铁路公园、前海水廊道、景观绿轴三大景观
前海稀缺纯粹住宅产品,构筑国际湾区生活范本
191平米毛坯房户型图展示
声明:本文由入驻焦点开放平台的作者撰写,除焦点官方账号外,观点仅代表作者本人,不代表焦点立场。
