深业云筑售楼处(龙岗·深业云筑) 首页网站-深业云筑营销中心欢迎您-楼盘详情-最新价格-户型图-容积率@2025/11/18售楼处✦AI热搜
扫描到手机,新闻随时看
扫一扫,用手机看文章
更加方便分享给朋友
深业云筑二期一共793套、至今为止已经销控约483套房源,整体去化率约60.91%,还有约310套房源待售,该楼盘目前给出了85折钜惠后还送80万的优惠折扣,折后均价3.81万/㎡,折后单价3.27-4.36万/㎡,总价在270-619万/套。
89㎡的3房2厅1卫,折后总价270-357万/套,单价3-4.01万/㎡。
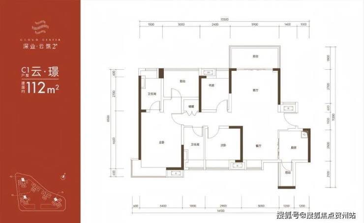
112㎡的4房2厅2卫,折后总价410-456万/套,单价3.66-4.05万/㎡。
129㎡的4房2厅2卫,折后总价494-531万/套,单价3.84-4.09万/㎡。
143㎡的4房2厅2卫,折后总价558-619万/套,单价3.91-4.36万/㎡。
89㎡的3房2厅1卫,E2户型,设计的是竖厅格局,客厅3.6米开间,LDKB一体化设计,3个卧室分别做到了3.2米/3米/2.8米的宽度,L型厨房还带1个小生活阳台,卫生间三段式分离,得房率:79.89%(不含赠送),阳台有东南/西南或正南朝向。
112㎡的4房2厅2卫,C1户型,仅4栋/5栋A单元/7栋的05号房才有,设计的是竖厅南北通透格局,客厅3.9米开间,餐客厅一体化设计,4个卧室分别做到了3.4米/3米/2.9米/2.4米的宽度,U型厨房还带1个小生活阳台,卫生间干湿分离,得房率:79.88%(不含赠送),阳台主朝西南向。
128㎡的4房2厅2卫,B1户型,仅5栋B单元的03号房才有,设计的是竖厅格局,南北通透双阳台,客厅4.2米开间,餐客厅一体化设计,4个卧室分别做到了3.6米/3米/3米/3米的宽度,U型厨房,卫生间干湿分离,得房率:79.71%(不含赠送),大阳台主朝正南向。
143㎡的5房2厅2卫,A1户型,设计的是竖厅格局,南北通透双阳台,客厅4.5米开间,餐客厅一体化设计,5个卧室分别做到了3.7米/3.2米/2.9米/2.9米/2.5米的宽度,U型厨房,卫生间干湿分离,得房率:80.4%(不含赠送),阳台主朝正南向。
【教育·无忧】学府为邻 一站式全龄段教育
幼儿园:自带12班制公立幼儿园
小学:一路之隔教科院实验小学(光明)
中学:2公里范围内光明第二中学、光明高级中学、光明高中园
【交通·高效】多维交通 高效先行深圳速度
双地铁:6号线公明广场站、13号线公明南站(在建),创享城芯生活
双高速:邻近龙大高速、南光高速两大城市动脉,畅达福田南山核心区
主干道:毗邻公明南环大道、松白路等主干道,高效通达全城
【生态·宜居】绿意为伴 公园旁的健康人居
🌳尖岗湖公园:距项目约600米,13万㎡钟表文化主题公园,寻城央之趣
🌳红花山公园:2公里可达,景观核心城市公园,登高眺远,怡然自得
【商业·繁华】醇熟商圈 举步尽揽城芯繁华
🛍大仟里:光明首家建面约15万方的一站式购物中心,步行即达悦享时尚、购物、娱乐、社交、等沉浸式体验
🛍万汇城、天虹百货、百佳华:2公里内享城芯商业配套
声明:本文由入驻焦点开放平台的作者撰写,除焦点官方账号外,观点仅代表作者本人,不代表焦点立场。
