深圳湾1号售楼处电话(深圳湾1号)首页网站-深圳湾1号营销中心欢迎您-楼盘详情-最新价格-户型图-容积率@售楼处2025.10.10
扫描到手机,新闻随时看
扫一扫,用手机看文章
更加方便分享给朋友
…深圳湾1号……深圳湾1号…

【基础信息】
开发商:深圳鹏瑞发展控股集团有限公司
占地面积:46084.47㎡(北区13657.86㎡)
建筑面积:358000㎡
容积率:5.90,南区7.97,北区4.63
绿化率:30%
使用率:63%-65%
停车位:1570个1:2
楼栋总数:8栋
总户数:330户
物业公司:仲量行物业管理有限公司
物业费:13.6元/㎡·月
标准层高:4.5m/净高3.2m
宗地号:T107-0003
批地时间:2004年批地
竣工日期:2014年6月27日
入伙时间:2016-2017年
产权:2004年8月30日--2054年8月29日
小区配套:室内游泳池,花园社区,深圳湾中小学学校
项目状况:项目集居住、酒店、商业于一体的城市综合体。
深圳湾一号位于中国深圳市南山区,正对深圳湾,毗邻深圳人才公园,享有绝佳的一线海景。是深圳湾内湖的一线海景项目,是不可复制的黄金地段。

深圳当下发展的最核心地段就是南山区(GDP占全深圳四分之一),南山区最核心就是深圳湾,这里拥有不可复制的黄金海岸线,15公里的环海长廊,要知道深圳是四大一线城市中唯一拥有海景资源的,因此海景极为稀缺!

除了顶级的景观、环境、建筑和配套,深圳湾1号的生活圈层和社交圈层也无人匹敌,深圳首家顶级国际会员制俱乐部——深湾会,与香港马会、北京长安俱乐部联运管理,一直被视为全球顶豪圈层的入场券。
作为中国三大豪宅之一,深圳十大豪宅之一,地处深圳湾核心位置,位于深圳湾后海片区,紧邻深圳人才公园,是深圳湾内湖的一线海景、永久看海豪宅项目。毗邻城市主干道、国际港口、跨海大桥,地铁等多维交通,享有深圳湾公园红树林滨海长廊,华润深圳湾体育中心及深圳湾广场等城市设施。
可惜的是,“深圳湾1号”之后,再无“深圳湾1号”。虽然这些年有无数项目学习深圳湾1号,号称对标甚至超越深圳湾1号,号称“某某版”的深圳湾1号,但是,没一个能媲美深圳湾1号。
【实拍图】
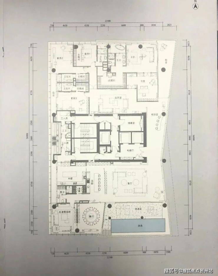
【户型鉴赏】
深圳湾一号
A户型户型介绍及户型图(约430平)
28层天际屋户型介绍及户型图958平
声明:本文由入驻焦点开放平台的作者撰写,除焦点官方账号外,观点仅代表作者本人,不代表焦点立场。
