首页网站【禹洲香山首府】✆新房热搜【禹洲香山首府】持续火爆中【禹洲香山首府】✆售楼处电话⋙预约看房⋙最新楼盘百科详情⋙房价⋙户型图2025.10.16
扫描到手机,新闻随时看
扫一扫,用手机看文章
更加方便分享给朋友
鸿荣源珈誉府最新介绍:备案价、折扣、学区、地铁、交通、户型图、特价房、优缺点、得房率、优惠活动、小区图片、开盘时间、交房时间、周边配套、最新详情等咨询。
鸿荣源珈誉府售楼处电话: 400-065-2898 预约来访下定当天更享折上折!!
(营销中心 | 欢迎来电咨询 | 请提前预约登记看房 | 1:1销售专业讲解)
鸿荣源珈誉府售楼中心热线: 400-065-2898(售楼处)【VIP贵宾专线】
开发商:深圳市鸿荣源控股(集团)有限公司
物业公司:深圳市鸿荣源物业服务有限公司
物业管理费:5.9元/㎡
总占地面积:约4.79万㎡
总建筑面积:约40.53万㎡
容积率:5.42
绿化率:40%
产权年限:2022.5-2092.5年(70年)
总户数:2479户
总栋数及楼高:10栋,31-44-45-46-47-48层。
梯户比:2梯2户/3梯5户/3梯7户
停车位:2795个
车位占比:1:1.127
交房时间:2026年12月
交付标准:精装修

鸿荣源珈誉玖玺家门口就是宝安大道及凤塘大道等交通主干道,11号地铁线“塘尾站”,距离约300米,4站到宝安机场,6站到宝中,7站到前海湾,8站到南山,11站到车公庙。鸿荣源珈誉玖玺家门口就是宝安大道及凤塘大道等交通主干道,
鸿荣源珈誉府,自带50万㎡奥特莱斯商业,汇集了壹方+奥莱的商业模式,在项目北侧还有万丰海岸城近18万㎡的购物中心,这个片区以后也将会是整个沙井最高端最集中的商业购物中心。
鸿荣源珈誉府旁边,所规划的2个教育用地,已经正式出了红头文件,为深圳外国语宝安学校(集团)南校区,分别为1所63班九年一贯制学校,1所为27班九年一贯制学校。
该校目前所划分的深圳外国语学校宝安学校,在2023年小一的录取积分是96.9分,初一的录取积分是92.5分,按照宝安区教育局公布的积分政策,只要是深圳户籍(其它区)+学区内商品房,就有100分,深圳宝安户籍+学区内商品房,就有105分。
附近就医还是挺方便的。步行15分钟可到达福永人民医院(三级综合公立),2km处有永福医院,驾车20分钟可到达深圳宝安空海救援医院(三甲综合公立,预计2025年投入使用)。

项目距离凤凰山森林公园约3.5km,周边还有万丰湖湿地公园、立新湖公园等绿色休闲配套。








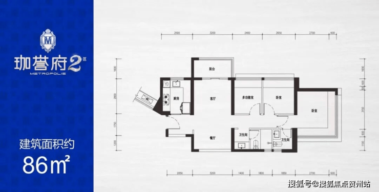
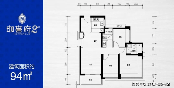
开发商售楼处24小时电话:400-065-2898(预约咨询热线)现场详细解答丨项目介绍丨户型图丨在售房源丨特价房丨学校丨交通位置丨样板房丨小区图片丨交房时间丨周边配套
温馨提示:看房请务必电话提前预约,避免临时无人接待,感谢您的配合!
开发商承诺:一对一专属开发商销售服务,尊享开发商内部优惠服务!
如需了解更多内部折扣详情,
欢迎咨询开发商售楼处咨询/预约电话☎:400-065-2898(中介请勿扰)
声明:本文由入驻焦点开放平台的作者撰写,除焦点官方账号外,观点仅代表作者本人,不代表焦点立场。
