首页网站【绿城·锦和玉鸣】✆新房热搜【绿城·锦和玉鸣】持续火爆中【绿城·锦和玉鸣】✆售楼处电话⋙预约看房⋙最新楼盘百科详情⋙房价⋙户型图2025.11.26
扫描到手机,新闻随时看
扫一扫,用手机看文章
更加方便分享给朋友
沙井绿城项目是于今年8月4日,绿城以12.15亿摘得新桥A319-1225地块(位于鸿荣源禧园隔壁哦,深圳外国语学区)成交楼面价20364元/㎡,按照建安成本,预价格只要卖到3万或以上开发商就可直接盈利,比较附近二手禧园挂价都在5万左右,妥妥的香饽饽!
锦和玉鸣府位于沙井新桥街道迎宾路与中心路交汇处西南侧,距离沙井地铁站450m左右,鸿荣源禧园东侧。
锦和玉鸣府位于宝安区沙井新桥街道迎宾路与中心路交汇处西南侧,土地面积19246.94㎡,建筑面积59665㎡,容积率3.1,土地使用年限70年。该宗地规定建筑面积59665㎡,其中:住宅53595㎡、商业1500㎡、物业服务用房120㎡、9班幼儿园3200㎡、托育机构500㎡、社区级公共配套用房750㎡。
小区共有5栋16-25层小高层住宅,1栋幼儿园,呈L形状。共462套87-103-127-140-167㎡的3-5房,2T3/5/6户,新规设计使用率高达100%!
锦和玉鸣平面图
|PLAN
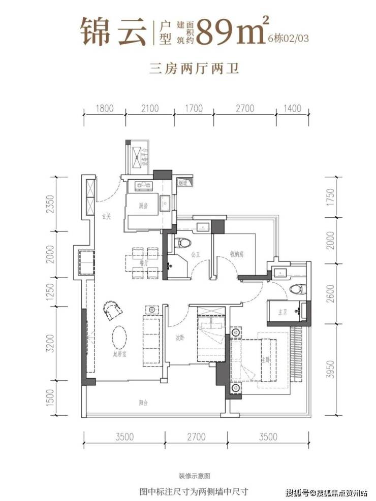
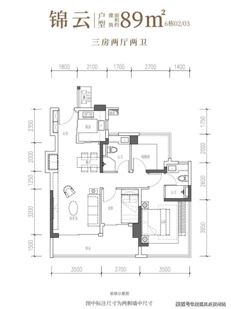
【建筑面积89㎡3房2卫】
竖厅格局,客厅3.5米开间,S墙预留冰箱位,三开间朝南,动静分区,主卧+次卧270°无柱转角飘窗,分别做到了主卧15.25㎡/次卧7.56㎡/次卧6.48㎡(包含墙体飘窗),U型厨房烟道外置,得房率约97.47%(包含赠送),客厅连接次卧出大阳台约11.46平,西南或东南朝向。
【建筑面积89㎡3房2卫】
竖厅格局,客厅3.5米开间,S墙预留冰箱位,三开间朝南,动静分区,主卧+次卧270°无柱转角飘窗,分别做到了主卧15.25㎡/次卧7.56㎡/次卧6.48㎡(包含墙体飘窗),U型厨房烟道外置,得房率约97.47%(包含赠送),客厅连接次卧出大阳台约11.46平,西南或东南朝向。
【建筑面积104㎡4房2卫】
竖厅格局,客厅4.15米开间,S墙预留冰箱位,四开间朝南,主卧270°无柱转角飘窗还带1个设备平台约1.52平,分别做到了主卧20.34㎡/次卧11.2㎡/次卧7.7㎡/次卧6.75㎡(包含墙体飘窗),U型厨房烟道外置,得房率约100.71%(包含赠送),客厅连接次卧出大阳台约11.23平,西南朝向。
【建筑面积106㎡4房2卫】
竖厅格局,客厅3.7米开间,S墙预留冰箱位,四开间朝南,主卧270°无柱转角飘窗还带1个设备平台约1.52平,分别做到了主卧20.34㎡/次卧11.2㎡/次卧7.7㎡/次卧6.75㎡(包含墙体飘窗),U型厨房烟道外置,得房率约101.16%(包含赠送),客厅连接次卧出大阳台约11.76平,东南朝向。
【建筑面积107㎡4房2卫】
双龙抱珠格局,客厅3.7米开间,S墙预留冰箱位,四开间朝南,主卧+2个次卧270°无柱转角飘窗,分别做到了主卧17.94㎡/次卧16.38㎡/次卧7.56㎡/次卧6.89㎡(包含墙体飘窗),U型厨房烟道外置,得房率约104.06%(包含赠送),客厅连接次卧出超大阳台约11.76平,东北朝向。
【建筑面积107㎡4房2卫】
竖厅南北通透格局,独立玄关,客厅5.1米开间,主卧270°无柱转角飘窗+衣帽间,分别做到了主卧18.55㎡/次卧11.2㎡/次卧8.96㎡/次卧7.84㎡(包含墙体飘窗),U型厨房烟道外置,得房率约98.97%(包含赠送),客厅连接次卧出超大阳台约14.09平,西南或东南朝向。
【建筑面积130㎡4房2卫】
竖厅南北通透格局,独立玄关,客厅5.1米开间,客餐厅分离化设计,主卧270°无柱转角飘窗+衣帽间,分别做到了主卧23.66㎡/次卧11.2㎡/次卧8.96㎡/次卧7.84㎡(包含墙体飘窗),U型厨房烟道外置,得房率约101.95%(包含赠送),客厅连接次卧出超大阳台约14.09平,东北朝向。
声明:本文由入驻焦点开放平台的作者撰写,除焦点官方账号外,观点仅代表作者本人,不代表焦点立场。
