iic超总壹号(售楼处电话)首页网站-iic超总壹号营销中心-iic超总壹号欢迎您-iic超总壹号楼盘详情/户型/价格/地址@售楼处
扫描到手机,新闻随时看
扫一扫,用手机看文章
更加方便分享给朋友
iic超总壹号首页网站最新介绍:房价、折扣、户型图、特价房源、得房率、优惠活动、开盘时间、交房时间、周边配套、最新详情等咨询。
iic超总壹号售楼处电话☎:400 065 2898【开发商已认证】✨
iic超总壹号售楼中心24小时电话☎:400 065 2898【开发商已认证】
iic超总壹号开发商电话☎:400 065 2898【开发商已认证】✨
温馨提示:过来看房请记得提前来电预约,尊享售楼处1v1销售专业讲解,感谢您的来电!
��本项目暂不接受临时到访,过来参观样板房请记得提前来电预约!✨✨
��为您安排楼盘现场销售全程接待并讲解,给您更贴心的看房体验!✨✨
超总壹号位于深圳湾超级总部基地内,该片区是深圳唯一一座以“超级”命名的总部基地,也是深圳唯一一个全南向拥有一线海景资源的总部基地,总体规划投资约3000亿元,单位面积投资密度约10倍于前海核心区,有着“深圳曼哈顿”之称。
那么,深圳湾板块的房子有多贵呢?!
今年4月份,深圳湾1号推出T7栋862㎡总价3.1亿、702㎡总价2.5亿,单价约36万/㎡,T8栋500㎡总价1.95亿,单价约39万/㎡,——这是深圳湾单套的价格。
2024年12月2日,经过295轮举牌,最终中海+华润联合体185亿竞得南山粤海街道T107-0107宗地,溢价58.6亿,楼面价也刷新近9年深圳土拍楼面价历史记录,估计得10万才保本,——这是深圳湾土地的价格。
对于单价二十万一平的深圳湾板块来说,超总壹号单价只要5万多,并且还带12000元/㎡的奢华装修,这个标准甚至比深湾玖序还高,而且产品还不限制购买资格,销量持续火爆,也是情理之中。
「项目名称:」 深圳湾超总壹号
「开发商:」 神州数码国际
「项目地址:」 中国·深 圳·超级总部基地
「总占地:」 2.56万㎡
「总建面:」 25万㎡
「套数:」 284套
「面积区间:」 118 - 612㎡(1 - 4房)
「在售主力户型:」 120㎡、154㎡、270㎡、280㎡
多元业态共生 数字新纪元汇聚点
总建筑面积约25万㎡,集总部办公、总裁会馆、云端会客厅、商业四重总部业态于一体,实现四大功能业态的互动互联,打造总部菁英生活新趣处。
湾区复合枢纽 海陆空一站接驳
深圳一个无需换乘,即可轨道直达五大出境口岸的超级枢纽,海陆空立体通达,链接全球,地下交通层可以直接办理值机。
六轨六站交汇 擎画往来效率
“六轨六站”立体交通。2/9/11/29号线(规划中),畅达全市核心领域;穗莞深城际(在建中)、深莞城际(规划中),通联大湾区经济主脉。
深圳顶豪发源地 湾区人居新高度
深圳湾、华侨城两大深圳鼎级富人区无距环绕,深圳顶豪带几何中芯点,深圳数代顶豪发源点。
四大智能生活蓝本 带走繁复 留下惬意
构建创新的数字化生活系统,带给城市领袖以“无接触式操作”“全屋智能生态”“数据隐私保护”等优越智能感受。
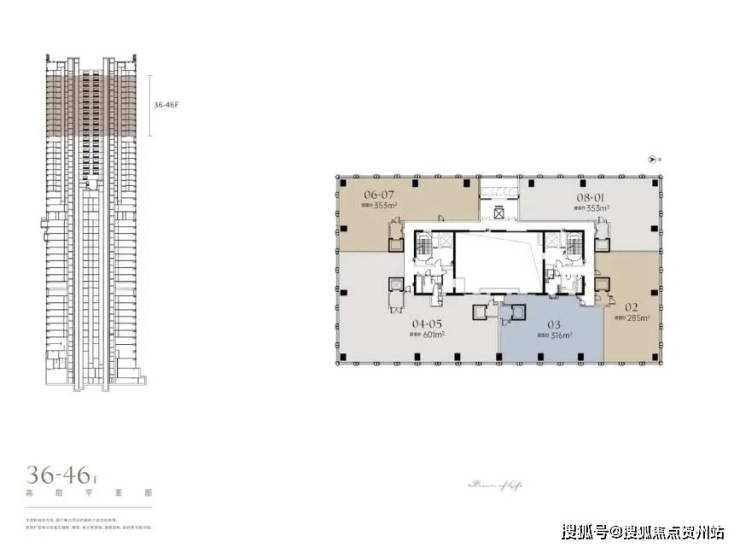
超总壹号主要产品为建面约120-280㎡高定公馆,5-20层,层高为4.5米。
梯户比7梯11户设计,车位487个,无论早晚高峰还是其他时段,电梯都能基本做到随按随走,物业费为15.8元/㎡/月。
户型图鉴赏

iic超总壹号售楼处电话:☎400 065 2898【售楼处已认证】✨
iic超总壹号营销中心电话☎:400 065 2898【开发商已认证】✨
iic超总壹号开发商电话☎:400 065 2898【开发商已认证】✨
免责声明:部分信息来源于网络,如果侵权,请联系及时删除
本宣传资料不构成邀约邀请,对周边、政府规划、商业配套、教育资源、投资前景等数据和图文仅为提供相关信息,该信息以政府最终批文为准,开发商不对此作任何承诺。买卖双方的权利义务以双方签订的买卖合同约定及附件、实际交付为准,本公司保留对宣传资料修改的权利,敬请留意最新资料。联系号码☎:400 065 2898【开发商已认证】
声明:本文由入驻焦点开放平台的作者撰写,除焦点官方账号外,观点仅代表作者本人,不代表焦点立场。
