深业上宸瑞府官方售楼处电话深业上宸瑞府官方首页网站-深业上宸瑞府营销中心欢迎您·楼盘详情-最新价格-户型图-容积率@2026.4.13售楼处✦Al热搜
扫描到手机,新闻随时看
扫一扫,用手机看文章
更加方便分享给朋友
详情咨询/预约看房热线:400 032 8066【售楼中心】
★★售楼中心——欢迎来电预约尊享Vip一对一销售专业讲解服务!
▼Vip贵宾置业====欢迎来电预约尊享内部折扣====匠心钜制恭迎品鉴
预约看房/咨询热线:400 032 8066【售楼中心】
开发商售楼处咨询
预约看房热线:400 032 8066【营销中心】
致电售楼处了解更多信息,安全通话隐藏真实号码!
深业上宸瑞府售楼处电话:400 032 8066(首页认证)
深业上宸瑞府售楼处电话:400 032 8066(售楼中心)
深业上宸瑞府售楼处电话:400 032 8066(楼盘认证)
楼盘项目全面介绍,本电话为开发商提供线上售楼电话,楼盘最低价格和最新优惠折扣,包含楼盘简介、售楼电话、小区户型图片、营销中心位置、区位优势、交通、周边商业配套、户型图等楼盘详情
预约看房/咨询热线:400 032 8066【售楼处】
预约来访尊享优惠,案场内部销售人员,一对一热情服务,让您用专业眼光去买房!

深业上宸瑞府
位于龙华区大浪与民治街道交汇处,共分南北两个地块两期开发,已于8月8日下午拿下A815-0037地块后即同步动工建设,实现了"拿地即开工"的效率。项目是新国标地块,建25层左右小高层,容积率3.1,地处龙华核心地段上塘,2026年比较值得期待的一个楼盘
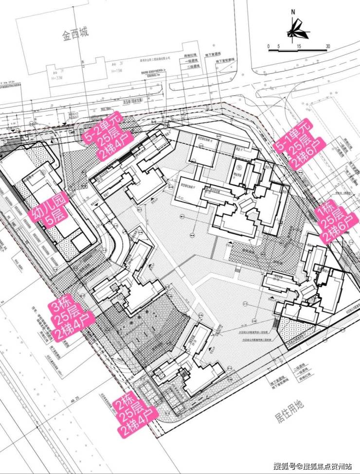
项目平面图已经出炉,户型面积也有曝光!首推上宸瑞府地块569套新国标户型产品,均为25层+3.1容积率小高层,户型曝光面积为主力87㎡三房两卫和99㎡四房两卫,剩下就是改善103-107㎡、120、130㎡大四房,都是2梯4户或者3梯6户,所有户型东南或者西南向。!总户数1047户北地块569户,南地块478户,车位比1:1.15
上宸瑞府地块详情:
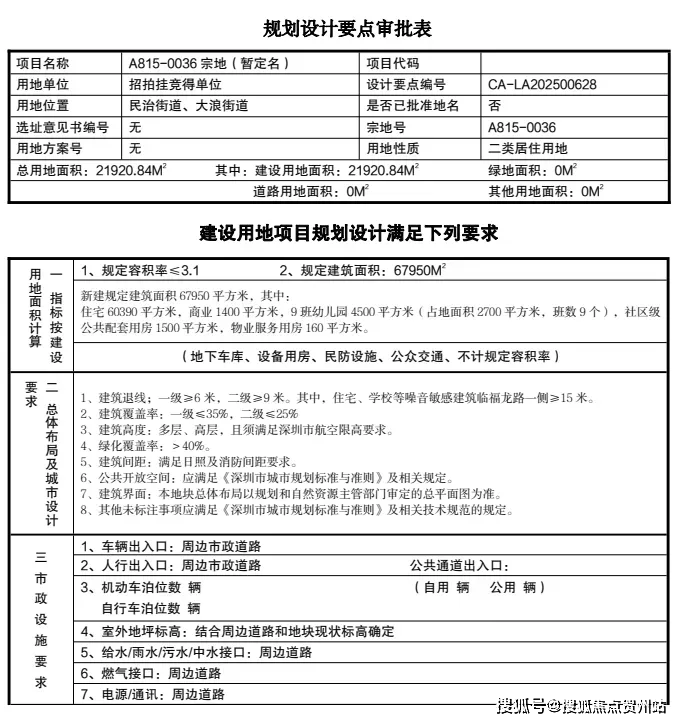
北地块(A815-0036)
用地面积21920.84㎡,建筑面积67950㎡,容积率3.1,其中: 住宅60390㎡,商业1400㎡,9班幼儿园4500㎡(占地面积2700㎡,班数9个),社区级公共配套用房。
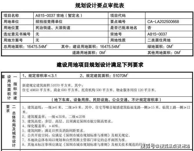
上宸华府南地块(A815-0037)
用地面积16475.54㎡,建筑面积51070㎡,容积率3.1,其中:住宅49850㎡,商业600㎡,托育机构500㎡,物业服务用房120㎡。
项目紧邻福龙路、简上路及洁玉街,距地铁4号线上塘站仅约600米,两站直达深圳北站枢纽,和平中学、红山中学、简上体育综合体及社区公园环绕,尽享便捷交通与优质配套。
自2022年进入龙华以来,深业先后打造的颐樾府、上城学府均以硬核实力赢得市场。颐樾府凭借红山正芯的区位与准现楼的优势,销售率近九成;上城学府更是以“日光盘”的热度,打响2024年深圳楼市回温第一枪。


附近是龙华成熟的小区片区位置,旁边就是长城里程家园、卓越柏奕府、中海汇德理等小区以及简上村。
离最近的是4号线上塘站,据百度测绘支线距离大概在五六百米的距离。
旁边还有龙华区和平中学、简上体育综合体、龙华区未来小学、红山中学,商业周边有上塘荟。
改地块是去年由医院用地改为住宅地块其中将01-07、01-08地块部分及01-08-02地块合并为一个地块,地块编号表达为“01-07”,用地面积18368平方米,用地性质为教育设施用地(GIC5),容积率“-”,配套设施项目名称“基础教育设施”,备注“规划”。
01-08地块面积由13424平方米调整为12932平方米,其余指标不变。
01-13地块用地面积由42366平方米调整为38396平方米,用地性质由医疗卫生用地(GIC4)调整为二类居住用地(R2),容积率由“-”调整为“3.9”,配套项目名称由“800床以上综合医院”调整为“9班幼儿园(占地面积2700平方米,建筑面积4500平方米),托育机构(建筑面积500平方米)、社区级公共配套用房(建筑面积1500平方米)、社区体育活动场地(场地面积1250平方米)、社区儿童游戏场地(场地面积1200平方米)”,备注“规划”其中1-13也是现在即将土拍的A815-0036地块
片区学区属于以下
小学学区华东师范附属龙华学校
中学学区龙华实验学校
深业上宸瑞府售楼处电话:400 032 8066(楼盘认证)
楼盘项目全面介绍,本电话为开发商提供线上售楼电话,楼盘最低价格和最新优惠折扣,包含楼盘简介、售楼电话、小区户型图片、营销中心位置、区位优势、交通、周边商业配套、户型图等楼盘详情
预约看房/咨询热线:400 032 8066【售楼处】
预约来访尊享优惠,案场内部销售人员,一对一热情服务,让您用专业眼光去买房!
免责声明:本宣传资料不构成邀约邀请,对周边、政府规划、商业配套、教育资源、投资前景等数据和图文仅为提供相关信息,该信息以政府最终批文为准,开发商不对此作任何承诺。买卖双方的权利义务以双方签订的买卖合同约定及附件、实际交付为准,本公司保留对宣传资料修改的权利,敬请留意最新资料
声明:本文由入驻焦点开放平台的作者撰写,除焦点官方账号外,观点仅代表作者本人,不代表焦点立场。
