松茂御城二期售楼处(2025)首页网站-松茂御城二期营销中心欢迎您-楼盘详情·最新价格-户型图-容积率@2025.10.10售楼处AI热搜
扫描到手机,新闻随时看
扫一扫,用手机看文章
更加方便分享给朋友
����松茂御城二期����
��松茂御城二期售楼处电话:400-033-1856【已认证】��
��【松茂御城二期】Vip贵宾置业===欢迎来电预约尊享内部折扣===匠心钜制恭迎品鉴��
【松茂御城二期】丨楼盘详情丨价格丨更多优惠丨欢迎致电丨诚邀品鉴
✅松茂御城二期售楼处:400-033-1856【24小时预约热线】
✅松茂御城二期售楼处电话:400-033-1856【来电可享受优惠】
✅ 松茂御城二期营销中心电话400-033-1856【一对一热情服务】
✅本项目暂不接受临时到访,过来参观样板房请记得提前来电预约!
◆开发商营销中心诚挚邀请,一键预约,尊享内部独家折扣!匠心独运的精品项目,恭候您的品鉴与选择。
温馨提示:看房请提前来电预约,谢谢您的配合!(中介勿扰)
光明【松茂御城2期】已取证入市,同时正式开放实体园林跟实体样板房,计划于9月7日(周日)开盘选房!
松茂御城二期当前主推房源为81-135㎡三至五房,项目备案均价4.42万/m²,备案单价3.79-5.09万/m²,总价在304-685万/套,折后单价低至3.2万/㎡起,总价280 万起!
交付时间:预计在2027年2月份带精装交付,不过合同约定是在2026年底,是为了保证26年业主们申请学位问题,另付送装修协议到27年2月份。
项目位于广深港科创走廊重要节点的“世界一流科学城”光明,归属凤凰城街道,邻建面约383万㎡13号线重点城市更新单元(在建),占位光明城市发展的“价值洼地”,同享磅礴产业规划红利。
13号线重点更新项目(在建),总投资约420亿元,其体量约为光明城站TOD的25倍。将结合13号线月亮路站塑造、城市蓝绿公园网络提升、产城空间更新,无限链接生产、生活、生态要素,建设成光明区“三生融合示范区”。
目前一期产业约36万㎡已竣备完工,预计2025年内交付,深实验光明明湖学校2025年已正式招生办学;凤凰文体中心等已立项,高规格城市配套正逐步兑现。
项目位于光明区凤凰街道塘尾社区松白路与碧塘路交汇处,总占地面积45352.06㎡,总建筑面积297781.48㎡,规划建设13座高层建筑,采用‘‘围合式’’建筑布局。项目共2126户,车位数2321个,布置有一至二层商业及公共配套,是集住宅、公寓、商业于一体的宜居纯粹性项目。
该项目位于地铁13号线月亮路旁,目前还是双名校深实验+深中学区,还有光明本地名校光明实验,一期已经是现楼,二期估计26年底左右可以交楼。
项目二期房源为81-135㎡三至五房,得房率高,部分户型可改四房,如89㎡四房二卫。得房率最高达100%,部分户型赠送面积较多。
价格:备案均价约4.42万/㎡,折后均价约3.46万/㎡起,总价280万起。工抵房价格更低,约3.2万/㎡。
楼栋:二期由8栋31-32层住宅组成,梯户比2梯4-6户,容积率4.55,绿化率40%。准现房,交房时间早(2026年9月),户型实用,教育资源丰富(深中、深实验分校),周边规划有大型商业和公园。
建面约81-135㎡三至五房,满足多元居住需求,松茂御城二期深研城市家庭居住痛点,以多元优质户型重构空间价值,从二人世界到三代同堂,让每一种生活理想都能从容安放。
约81㎡三房两厅两卫:堪称“空间魔术师”,实现了功能与舒适度的完美平衡,无论是三代共居还是二孩家庭,都能从容舒享。双卫生间设计,空间功能更优越,早晚高峰期不再拥挤,居家生活更高效。主卧独立套房,精巧三房也能私享私密与尊崇,满足年轻家庭对品质生活的追求。
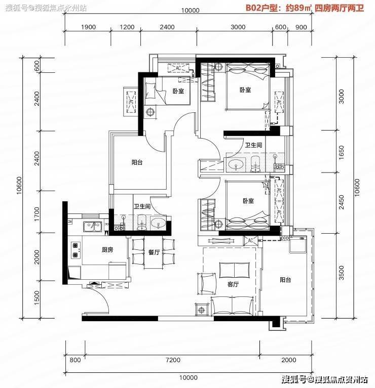
约89㎡四房两厅两卫:突破性实现四房布局,真正做到了“同等面积多一间房”,既保留了客餐厅的开阔尺度,又为二胎家庭或三代同住预留了充足空间,让成长型家庭无需为换房烦恼,一步到位实现“全生命周期居住自由”。
约109㎡四房两厅两卫:阔绰大四房,尺度舒居,二孩家庭或是三代同堂,皆能各得其乐,是精英家庭一步到位的理想之选。部分独立入户,营造归家仪式感,主卧套房带衣帽间,尽显宽居气度。
约135㎡五房两厅两卫:四开间朝南,将约2万㎡园林景观尽收眼底,双阳台与方正户型设计,让大宅生活的尊崇与舒适淋漓展现。
约2万㎡全龄互动大园林,一座自然生长的“度假公园”。
园林以“水岸绿洲”为蓝本,引水为邻诗意栖居,园内配备约410㎡亲子双泳池,下楼即享悠然度假;约300米元气跑道,把健身房搬进自然中,林涧廊亭与光影水院,为久处喧嚣的人提供一方静谧清幽,约6500㎡三层屋顶花园与双层架空会所,配备儿童益智空间、青年运动场、长者休闲区等,打造“邻里社交厅”,共筑温情社区。
匠心精工,铸造品质人居
外墙甄选高品质铝板,采用先进工艺锻造更加平整、色泽均匀历久弥新的精工品质,赋予建筑奢豪质感。搭配玻璃幕墙式阳台,勾勒简约时尚的建筑艺术,提升人居价值与美学价值。如此豪宅用材精工品质,遍寻光明难觅其二。
交通枢纽:双地铁 + 高速路网构建湾区半小时生活圈
地铁 13 号线通车在即:项目距离在建的地铁13号线月亮路站仅400米,预计2025年12月28日通车后,1站可达光明中心区,9站直达南山科技园,45分钟覆盖深圳湾口岸。远期规划中,13号线将北延至东莞松山湖,与29号线(规划)形成深莞科技创新走廊的黄金节点,强化区域与大湾区其他科创高地的联动。
多维路网无缝衔接:项目紧邻松白路主干道,周边南光、龙大、深圳外环三条免费高速环绕,自驾 30分钟可达宝安国际机场、深圳北站,1小时覆盖大湾区主要城市。光明城站高铁枢纽(3公里)已开通至广州、香港的直达线路,未来还将引入深莞增城际,进一步提升区域通达性深圳市光明区人民政府。
教育资源:名校集群与高成长性教育配套
全龄优质学区覆盖:项目自身配建9班幼儿园,小学学区划分为光明区排名前三的教科院实验小学、秋硕小学,初中学区划入深圳中学光明科学城学校二初中部、凤凰城实验学校。周边规划的深圳实验学校塘尾第一学校(54班九年制)将于 2026年秋季开学,提供2520个优质学位,进一步强化教育优势。
高校与科研机构联动:中山大学深圳校区、深圳理工大学等高校已投入使用,深圳医学科学院、深圳湾实验室等科研机构加速集聚,形成"基础教育 + 高等教育 + 科研转化" 的完整链条,为区域注入持续的人才红利。
商业与生活配套:全维度生活场景构建
社区商业与区域商圈互补:项目自带约1.75万㎡商业街(预计2025年下半年开业),满足日常便利需求,3公里范围内覆盖光明大仟里(15万㎡)、蓝鲸世界(10万㎡)、万达广场(6万㎡)三大成熟商圈。此外,13号线车辆段 TOD 片区规划的近6万㎡万象新天地商业,将成为区域消费新地标。
生态与休闲资源密集:项目毗邻 58 万㎡明湖城市公园、7.45 万㎡鹅颈水湿地公园及茅洲河碧道,步行 10 分钟可达多个生态节点,形成 "公园城市" 的宜居环境。未来,塘尾片区还将规划建设 1.2 万㎡市政公园(由松茂集团代建),进一步提升居住舒适度。

松茂御城所在的光明塘尾片区,凭借国家级科学城规划、地铁 13 号线通车、名校集群、TOD 旧改及产业人口导入等多重利好,在 2025 年展现出显著的区域价值。对于刚需购房者,其低总价、高使用率户型及即买即住的现房优势(一期已交付)具备吸引力;对于投资者,科学城的长期发展红利与房价升值空间值得关注。建议重点关注地铁通车后的市场反应及周边旧改进展,把握价值兑现节点。
松茂御城二期以“高得房率 + 准现房 + 低总价”为核心卖点,在光明区刚需及首改市场中竞争力突出。建议意向客户抓住首推折扣窗口期,优先选择中高楼层、南北通透户型,并充分利用人才补贴、首付政策降低购房成本。
松茂御城二期售楼处电话☎:400-033-1856【售楼处已认证】
��在售户型图丨项目介绍丨最新房源丨周边配套丨详细解答〢
松茂御城二期营销中心电话:400-033-1856【售楼处已认证】
⭐◆开发商营销中心诚挚邀请,一键预约,尊享内部折扣!匠心独运的精品项目,恭候您的品鉴与选择。
⭐项目最新介绍:备案价、折扣、学区、地铁、交通、户型图、特价房、优缺点、得房率、优惠活动、小区图片、开盘时间、交房时间、周边配套、售楼处位置、最新详情等咨询。
免责声明:
1、本文、图片等信息部分来源于网络,如有相关内容侵权,烦请联系删除。
2、本文所提及一切图文资料以政府最后审批之法律文件及买卖双方签订的买卖合同为准。
3、我们重在分享,本文所述内容和意见仅供参考,不构成市场交易依据和投资建议。
声明:本文由入驻焦点开放平台的作者撰写,除焦点官方账号外,观点仅代表作者本人,不代表焦点立场。
