华发珠海湾官方营销中心-珠海湾官方营销中心官方售楼处电话-华发珠海湾-交房时间-地址-最新房价户型图-小区环境-楼盘详情-交房时间-周边配套-售楼处电话
扫描到手机,新闻随时看
扫一扫,用手机看文章
更加方便分享给朋友
����华发珠海湾����
��华发珠海湾售楼处电话:400-033-1856【已认证】��
��【华发珠海湾】Vip贵宾置业===欢迎来电预约尊享内部折扣===匠心钜制恭迎品鉴��
【华发珠海湾】丨楼盘详情丨价格丨更多优惠丨欢迎致电丨诚邀品鉴
✅华发珠海湾售楼处:400-033-1856【24小时预约热线】
✅华发珠海湾售楼处电话:400-033-1856【来电可享受优惠】
✅ 华发珠海湾营销中心电话400-033-1856【一对一热情服务】
✅本项目暂不接受临时到访,过来参观样板房请记得提前来电预约!
◆开发商营销中心诚挚邀请,一键预约,尊享内部独家折扣!匠心独运的精品项目,恭候您的品鉴与选择。
温馨提示:看房请提前来电预约,谢谢您的配合!(中介勿扰)
珠海第一个四代宅
全球首个无人机配送社区
华发在唐家湾后环板块全新住宅项目
超新规·超大露台·超100%实得率
最新非最终版户型图,有需要的朋友随时咨询我
华发珠海湾
珠海首个拥有环绕式三错层无干扰超大露台和无人机配送的科技+四代宅项目。
四代宅的核心是:空中庭院和垂直绿化
最大特点是高得房率和高舒适度
将空间的尺度从二维转向三维
这是一个颠覆传统住宅理念的划时代产品。
首发地块基础信息——
用地面积:约4.5万方
总建筑面积:约16.2万方
住宅:1212户
绿化率:35%
交付标准:精装交付
物业公司:华发集团旗下物业
全球首个无人机配送社区
居家智享直送服务,实现最后100米的智能物流配送📦
▪户户专属无人机停机坪
▪超500平无人机起降场
环绕式无干扰三错层超大露台
超100%实得率
采用ykk三玻量腔系统门窗,隔声效果更好、保温性能更高,打造高颜值科技节能的新一代精工立面。
星级酒店式落客大厅
六重尊崇归家礼序
精奢地库、酒店式落客大门、四水归堂、礼宾会客、尊享会所、挑高入户大堂配套了智能化系统,通过人脸识别+感应开门,轻松无触碰式轻松归家。
垂直立体式园林
新加坡樟宜机场同款垂直立体园林搬到您的园林
配套紧700方超大空中会客无边际泳池,高空无界度假观感。
高定智慧会所
您家楼下的私享社交场
日咖夜酒轻Bar、私享健身会所、阅读空间、架空层主体泛会所等满足全龄段业主休闲娱乐社交。
社区配套
配套建设1所幼儿园、运动公园(滑板场、篮球场、网球场、无人机停机坪)
产品系列:
为凸显四代宅的核心差异价值,将露台拆开分户介绍,拥有超高的露台赠送
楼体外立面在美感上做了错层设计,相当于一个户型有2种不同的选择
约240㎡270度环幕山海景观、9米挑高空中墅院
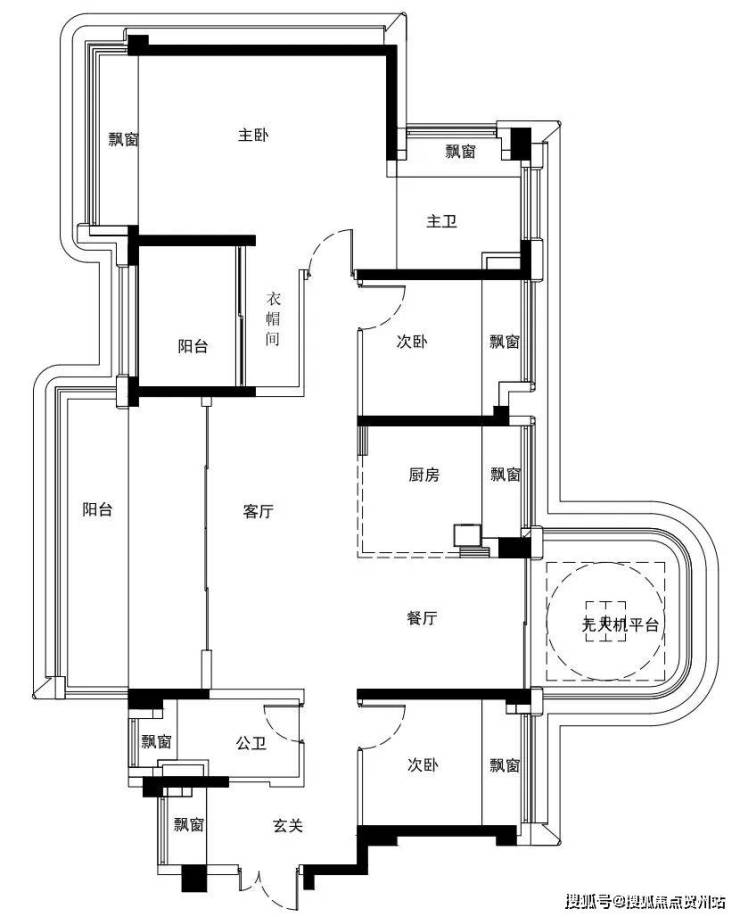
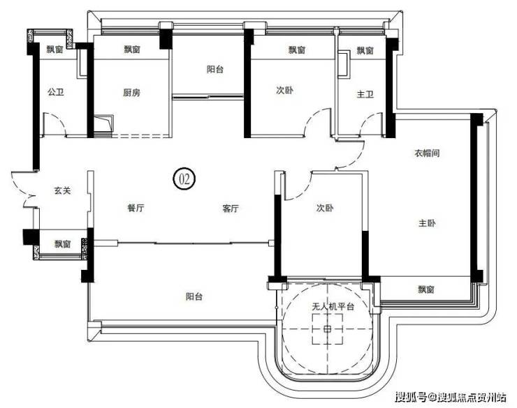
A户型-88方三房两厅两卫
偶数层:
奇数层:
B户型-115方三房两厅两卫
偶数层:
奇数层:
C1户型-125方三房两厅两卫
偶数层:
奇数层:
C2户型-125方四房两厅两卫
偶数层:
奇数层:
D户型-142方四房两厅两卫
偶数层:
奇数层:
华发珠海湾售楼处电话☎:400-033-1856【售楼处已认证】
��在售户型图丨项目介绍丨最新房源丨周边配套丨详细解答〢
华发珠海湾营销中心电话:400-033-1856【售楼处已认证】
⭐◆开发商营销中心诚挚邀请,一键预约,尊享内部折扣!匠心独运的精品项目,恭候您的品鉴与选择。
⭐项目最新介绍:备案价、折扣、学区、地铁、交通、户型图、特价房、优缺点、得房率、优惠活动、小区图片、开盘时间、交房时间、周边配套、售楼处位置、最新详情等咨询。
免责声明:
1、本文、图片等信息部分来源于网络,如有相关内容侵权,烦请联系删除。
2、本文所提及一切图文资料以政府最后审批之法律文件及买卖双方签订的买卖合同为准。
3、我们重在分享,本文所述内容和意见仅供参考,不构成市场交易依据和投资建议。
声明:本文由入驻焦点开放平台的作者撰写,除焦点官方账号外,观点仅代表作者本人,不代表焦点立场。
