珠海-港珠澳未来城售楼处首页-珠海-港珠澳未来城售楼处电话-开盘时间-房价-户型-楼盘详情-周边环境-户型-价格-地址-楼盘详情-售楼处电话-交房时间
扫描到手机,新闻随时看
扫一扫,用手机看文章
更加方便分享给朋友
✽✽✨珠海_港珠澳未来城✨✽✽
✽✽✨✨港珠澳未来城售楼处电话:400-055-9697【☎☎售楼处电话已认证】✨✨✽✽
✽✽✨港珠澳未来城开发商电话:400-055-9697【☎☎开发商电话已认证】✨✽✽
✽✽✨✨港珠澳未来城营销中心电话:400-055-9697【☎☎营销中心电话已认证】✨✨✽✽
✽✽✨港珠澳未来城销售中心电话:400-055-9697【☎☎销售中心电话已认证】✨✽✽
✨☞☞Vip贵宾置业==欢迎来电预约尊享内部折扣===匠心钜制恭迎品鉴☜☜✨
港珠澳未来城,毗邻港珠澳大桥口岸,坐拥庞大客流与消费力,优享大湾区交通枢纽与旅游消费双重红利。约120万 ㎡湾海口岸超体,除品质酒店公寓以外,周边配有建约8万㎡口岸天地商业,吃逛玩一站即享,成为了游客们旅游消费的"第一站"。随着港澳与内地往来愈加紧密,口岸经济带将持续释放商业与价值潜力,稀贵资产,争席收藏!

港珠澳未来城项目笔记
粤港澳口岸枢纽 港珠澳大桥首站
30分钟香港 10分钟澳门 5分钟珠海
360°环岛海景 万亿央企现楼 即买即用
约40-215㎡口岸岛绝版烫金资产!!!
【项目详情】
项目一期占地面积:约4.26万㎡
项目一期建筑面积: 约28.17万㎡
绿化率:32.54%
容积率:5.52
一期产品总栋数:7栋
在售产品:约40-216㎡口岸烫金资产
装修标准:带装修
层高:大户型3.6米,小户型3.3米
港珠澳未来城是由迪拜哈利法塔的设计单位——美国知名国际设计事务所SOM操刀,打造建面约120万㎡全时湾海不夜城,总投资逾百亿元。
规划涵盖酒店集群、滨海商业、国际办公及口岸TOD交通枢纽等复合业态,高定位综合大城,是辐射粤港澳三地的价值磁场。
作为口岸上盖物业,港珠澳未来城不仅约百米距离即可一步通关,轻松往返于港珠澳三城,更占据无界亲海的优势,实现园景、海景、城景的多重景观享受。
项目建面约40-215㎡口岸资产,以品质舒适的标准设计,更大化地保证居住空间的价值。
以建面约45㎡产品为例,小空间也有大享受。
步入室内,你会发现空间的开阔感。这里约3.3米层高,比市面上常见楼盘高出30-50公分;与此同时,该户型将开间拉至3.6米,大大提升了居住空间的通透度。
|建面约45平样板间实拍图
即便小面积,也贴心配置独立阳台,提高空间拓展性之余,也能与室外风景衔接,尽享豪宅般的视觉体验。
项目还以国际品质交付标准,全屋臻选美国耶鲁智能门锁、唯宝、科勒、汉斯格雅等一线知名品牌,给业主提供高质量生活。
|项目实拍图
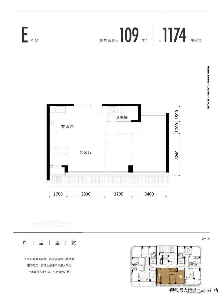
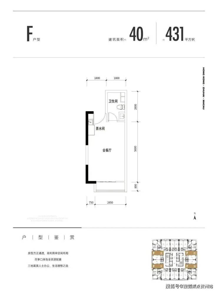
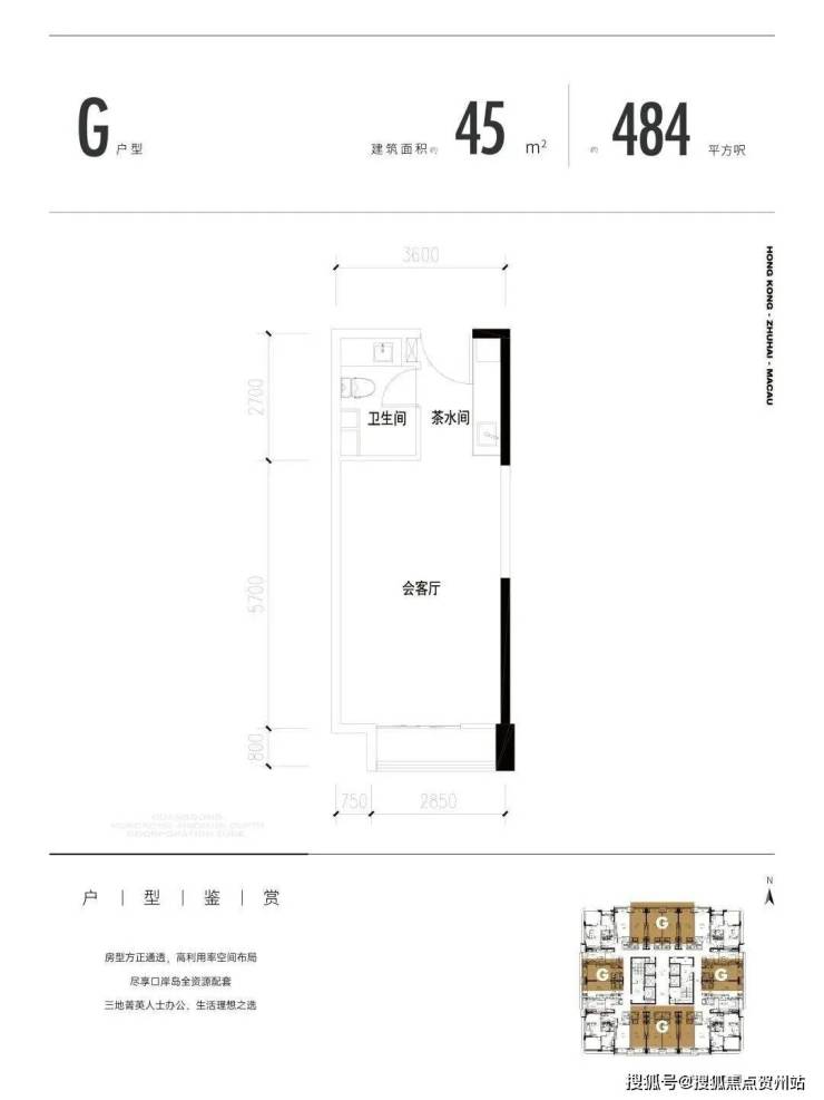
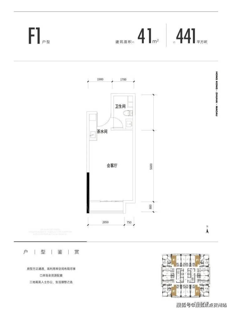
户型分布
F户型 :建面约40㎡
F1户型:建面约41㎡
G户型:建面约45㎡
H户型:建面约78㎡
E户型:建面约109㎡
D户型:建面约168㎡
C户型:建面约216㎡
项目区位得天独厚,位于港珠澳大桥口岸旁,是名副其实的口岸上盖物业。
|示意图

不仅是约百米距离即可一步通关,轻松往返于港珠澳三地,更依托港珠澳大桥,形成1桥2通道3港口4口岸5机场的人流、物流、资金流闭环,区域价值优势显著。
项目旁边已形成约8万㎡的口岸天地商业矩阵。未来,项目内还将迎来超10万㎡滨海商业。双商圈共融共促进,有望带来商业价值的几何倍数增长。
✽✽✨珠海_港珠澳未来城✨✽✽
✽✽✨✨港珠澳未来城售楼处电话:400-055-9697【☎☎售楼处电话已认证】✨✨✽✽
✽✽✨港珠澳未来城开发商电话:400-055-9697【☎☎开发商电话已认证】✨✽✽
✽✽✨✨港珠澳未来城营销中心电话:400-055-9697【☎☎营销中心电话已认证】✨✨✽✽
✽✽✨港珠澳未来城销售中心电话:400-055-9697【☎☎销售中心电话已认证】✨✽✽
✨☞☞Vip贵宾置业==欢迎来电预约尊享内部折扣===匠心钜制恭迎品鉴☜☜✨
声明:本文由入驻焦点开放平台的作者撰写,除焦点官方账号外,观点仅代表作者本人,不代表焦点立场。
