玺玥麓坊售楼处电话(深圳)首页网站-玺玥麓坊营销中心-玺玥麓坊欢迎您-楼盘详情-最新价格-户型图-容积率※最新售楼处电话2025.11.11
扫描到手机,新闻随时看
扫一扫,用手机看文章
更加方便分享给朋友

免费接送。
宝安前海洪浪北地铁口100米,现楼公寓【玺玥麓坊】清盘特惠单价4万起!通燃气带阳台
🚀「 玺玥·麓坊 」🚀
🔥5/15号线双地铁口 便捷通达
🔥约44-71㎡ 1-2房 即买即享
--------👉【在售户型】👈-------
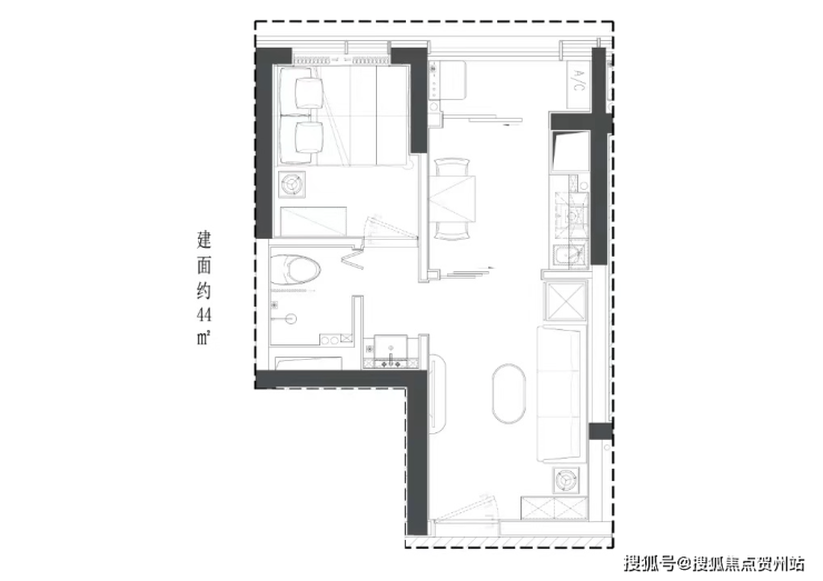
👉🏻44㎡-53㎡-56㎡
标准一房一厅,总价210万起;
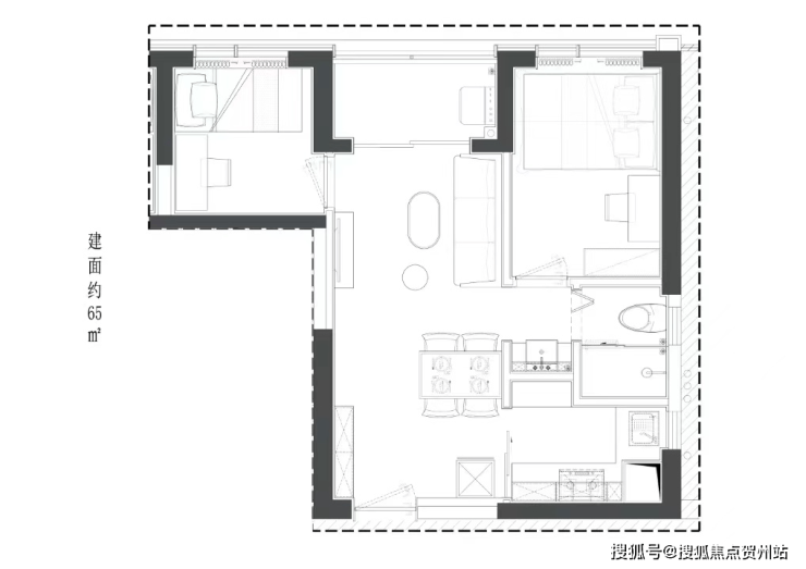
👉🏻63㎡-65㎡-71㎡,
双龙抱珠两居室,357万起;
✊🏻总套数:529套
--------👉【核心卖点】👈-------
1,大湾区国际门户枢纽地位,大前海总体发展规划
2,高净值人群聚集地(中洲、华联、大悦城、勤诚达等)
3,高新科技产业及总部汇聚于新安,与众多高科技巨头为邻(如腾讯、vivo、亚太卫星、欣旺达、顺丰等集团)
4,执掌城芯主轴,多维交通畅达各区
5,多元醇熟配套,纵享人文艺术高地
简介:
项目:玺玥麓坊
开发商:宏发地产
物业类型:商务公寓
地址:深圳市宝安区新安三路27号,家门口,双地铁(5/15号线 洪浪北站约100米)
占地面积:约0.96万㎡
建筑面积:约3.36万㎡
总户数:529户
栋数:3栋
产权:40年(18-58)
层高:2.95米
梯户比:公寓6梯13户
总层:46层
户型:44-56㎡1房,65-78㎡2房
交楼标准:毛坯/精装(8-12万装修费/套)
交楼时间:2024年3月
容积率:6.11
绿化率:30%
物业:中粮物业
物业费:7.8元/㎡
【九大必买理由】
【核芯地段】宝安都市核芯资产,地段决策价值
【便捷交通】家门口,双地铁(5/15号线(在建中)洪浪北站约100米)
【品质现楼】毗邻千万级豪宅社区,高端品质现楼打造,即买即享受
【舒适梯户】44-71㎡舒居1-2房,6梯13户,便捷通达
【至臻产品】双大堂设计,户户通燃气,带阳台
【大城配套】30万㎡大城综合体,一路之隔勤城达K+/中洲•πmall,缤纷生活
【优质教育】3所中学+6所小学环绕,一站式教育
【绿意生态】6大公园环绕(宝安/灵芝/新安公园等),健康绿意生活
【品牌保障】宏发43载,深圳开发20余城;宏发物业,国家一级资质
世界前海核芯版图,擎领湾区增长极
大湾区国际门户枢纽地位,对标世界超级城市,大前海总体发展规划,共推区域统筹、功能统筹、陆海统筹、岸线统筹,共建全球先进城区,宝安中心区成为国际化城市新中心,宝安都芯强势崛起,全面接轨前海标准。
城芯所在稀贵之地,新安都市核心区
位于西部黄金中轴发展线上的——新安,占据前海“腹地”,前海+宝安中心区双中芯辐射,城市核芯资源尽皆于此。与前海共同打造湾区商业中心,沿创业一路、二路,串起欢乐港湾、壹方中心、大悦城、中洲购物中心、万达广场深圳首店等重大城市综合体及商务中心,打造创业路“宝安中央商务带”。
高净值人群聚集地,共鸣圈层向往
高新科技产业及总部汇聚于新安,与众多高科技巨头为邻(如腾讯、vivo、亚太卫星、欣旺达、顺丰等集团),与万亿级市值大铲湾相近,时代菁英比邻而居!

交通配套:地铁 5 号线洪浪北站,可快捷连接福田南山等区域。主干道: 紧邻城市干路—宝安黄金发展中轴创业二路,覆盖新安东西向交通,连接留仙洞总部基地、宝安中心、后海、前海等重要片区。
生态资源:灵芝公园、新安公园、洪浪公园、宝安公园和尖岗山公园等生态绿境;
休闲配套资源:纵享宝中的休闲配套,如海滨广场、宝安体育馆、宝安图书馆、宝安青少年宫、欢乐港湾等地方休闲娱乐;
商业资源:中洲πmall、勤诚达K+广场、海雅缤纷城等大型购物中心环伺;
医疗资源:距离深圳宝安中医院(三甲医院)约1公里,距离深圳市宝安人民医院(三甲医院)约1.5公里,距离宝安妇幼保健院约3.5公里,医疗资源丰富;
教育资源: 宝安中学、孝德学校、灵芝小学、12班幼儿园等教育资源围绕。

户型鉴赏

44㎡1房↓

53-56㎡1房↓


63-65㎡2房2厅1卫↓


71㎡2房2厅1卫↓

项目及样板间实景:
声明:本文由入驻焦点开放平台的作者撰写,除焦点官方账号外,观点仅代表作者本人,不代表焦点立场。
