观潮府(观潮府售楼处)首页网站电话-观潮府营销中心电话-2025-欢迎您-楼盘详情-最新价格-户型图-容积率@售楼处中心2025.11.1
扫描到手机,新闻随时看
扫一扫,用手机看文章
更加方便分享给朋友
…观潮府……观潮府…

招商×华润双央企联手,以深圳湾1号的造极逻辑,在宝中芯甩出一张“海景王炸牌”——南街坊A002-0108地块,86.4亿拿地成本,5.96万/㎡楼面价,注定只为塔尖人群定制。
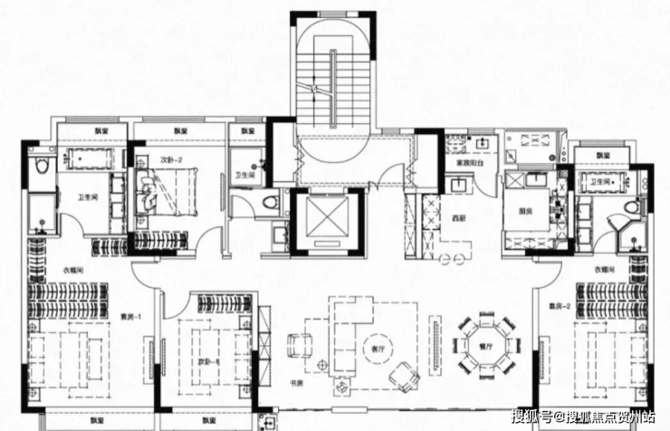
🔹 户型封神:180-320㎡的“空中海景别墅”


• 建面约180㎡四房两厅三卫:南北通透端户,独立玄关+中西双厨,客餐厅超50㎡气场全开!约8米宽景阳台连通次卧,推窗即览前海湾摩天轮盛景,空中花园或家庭工作室随心改造。
• 建面约250㎡五房两厅四卫:16米南向奢阔面宽,双主卧套房均带海景卫浴!LDK一体化空间衔接10米观景阳台,20人家庭聚会轻松hold住,生活与社交排场拉满。

• 建面约320㎡五房两厅五卫:顶层复式/整层大平层设计,270°环幕海景无死角!独立电梯入户+私人入户花园,主卧步入式衣帽间、双台盆卫浴+观景浴缸,客厅挑高约6米,使用率高达85%-95%,定制化空间满足塔尖想象。

户型平面图:





效果图曝光!




声明:本文由入驻焦点开放平台的作者撰写,除焦点官方账号外,观点仅代表作者本人,不代表焦点立场。
