前海时代三期尊府售楼处电话(前海时代三期尊府)首页网站-前海时代三期尊府营销中心欢迎您-楼盘详情·最新价格-户型图-容积率@2025.12.2售楼处AI热搜
扫描到手机,新闻随时看
扫一扫,用手机看文章
更加方便分享给朋友

最新消息
前海桂湾「前海时代尊府」取证加推最后大平层户型,为59栋的三个单元(59-1/2/3栋),面积约为215-255-295㎡,三梯两户,全南向景观,预计2026年交付。
项目节点:11月28日9:00-12月4日18:00,冻资金额100万,冻资银行:农行、中信、平安、工商、建设、招行、中行,12月6日正式开盘!
备案均价11.56万/㎡,总价2246-4363万。
开盘约9折(诚意登记冻资96折+开盘认购96折+准时签约98折),一次性再多一个98折。
9折后均价10.43万/㎡,总价2029-3941万。
目前最后一栋小户型53-3栋89-190㎡的3-4房!还有少量中高层房源在售,2026年底简装交付。
项目区位
「前海时代三期尊府」位于前海桂湾片区南侧,临近滨海大道和桂湾河,在整个前海自贸区内算是住宅的C位,正南侧水廊道公园,东南望南山西南看城市海景。
整个「前海时代」大项目规划总建面约130万㎡包括了商业、写字楼、公寓、酒店、住宅,可以算是一个超大型的综合体。其中商业将会交由华润运营,连接万象前海商业。

海三湾中,桂湾是配套相对最为成熟的板块,目前桂湾片区目前建设已经近8成,前海已交付的23栋写字楼中,约有90%位于桂湾。深圳共规划7个金融聚集区,桂湾金融企业占比已超70%。
截至24年12月,前海深港国际金融城累计引进金融机构322家,其中港资外资占比约25%。涵盖了渣打、惠理等140家风投创投及国际资管等机构,管理基金规模达到1800亿元。
此外,前海国际人才港通过多元化的线上线下服务平台,已累计服务人才近60万人次,波士顿咨询、罗盛咨询等21家国际知名机构、猎头公司均已入驻。
此外,投资50.5亿的前海石公园、投资288亿的前海综合交通枢纽、以及华润万象前海、前海山姆、卓越intown,也都在桂湾。
项目分五期建设,三期推售。
2014年11月,前海时代一期首次开盘,推售675套房源,建面49-132㎡1-3房,均价4.2万/㎡,单价3.9万-4.5万/㎡。
现场约2000人到场,当天售罄。
2015年12月,二期CEO公馆开盘,550套房源,主推建面180、252及254㎡4房,备案价6.5-9.8万/㎡,当天售罄。
2021年3月,二期20套尾货低调发售,户型为建面128-254㎡大户型,单价8.74-11.05万元/㎡,总价约1330-2803万元/套
目前推售的是前海时代三期尊府,大体分了3个地块:

7-2地块(尊府1)为55-60栋,约608套,面积段为约192-209-250-292㎡大平层。其中55、56、57、60栋270套于2023年12月开盘,备案均价9.9万/㎡,总价区间1606-2855万,当天售罄;
5-2地块(尊府2)为53栋三个单元,约516套,面积段为约89-190㎡的3-4房,其中53-1和53-2栋344套于2024年3月开盘,备案均价9.8万/㎡,总价区间751-2134万,如今仅剩少量房源。
5-1地块精品住宅为52-2栋,约256套,180套小户型,60套120㎡三房,16套大户型,全部未售。
计划3月加推的住宅位于7-2地块(尊府1)58栋77套245㎡四房三卫和约285㎡四房四卫大平层;
随后计划5月加推的住宅位于5-2地块(尊府2)53-3栋约172套89㎡三房二卫和190㎡四房三卫户型。
项目名称:前海时代三期(尊府)
开 发 商:深圳市地铁集团有限公司
占地面积:约33.4万㎡(总)
建筑面积:约110万㎡(总)
建筑类型:住宅、商业、办公、公寓
产权年限:70年/40年
剩余房源:
1️⃣58栋77套:89㎡3房,190㎡4房(5月推售)
2️⃣53-3栋172套:210-280㎡4-5房(本次推售)
3️⃣52-2栋约256套:面积情况还未知(推售时间待定)
价格:参考首批备案均价9.9万/㎡
容 积 率:4.52
绿 化 率:≥30%
梯户比:5-2地块3T5,高层3T4
车位比:1756个,1:2.87
交房时间:预计2026年底
物业公司:深圳地铁物业管理发展有限公司
物业费:9元/平/月
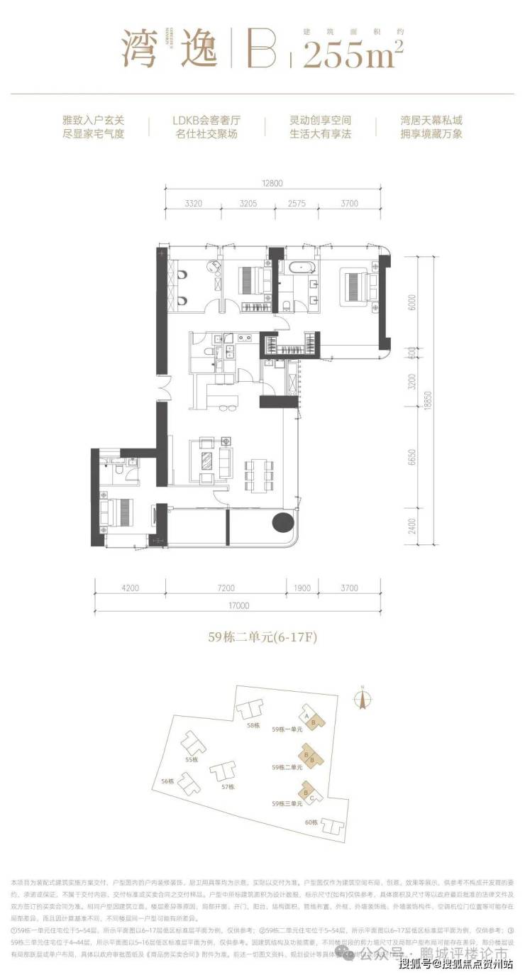
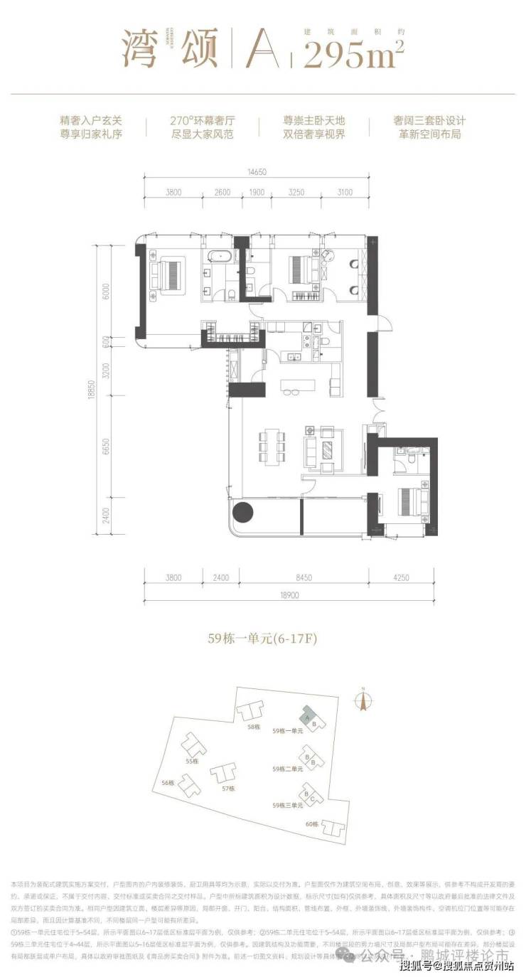
平面图及户型图


约89㎡3房2厅2卫,户型方正呈竖厅布置,结构上客餐厅一体、动静分区。设计上充分贯彻实用性,约89㎡做到少见的3房2卫,在前海这类改善片区的稀缺性很高。





约190㎡户型南北通透,户户带270°采光阳台。双套房+独立入户玄关设计搭配宽景大阳台及高使用率,居住舒适度拉满。

交通配套
公共交通方面,桂湾坐拥西部最大的地下交通枢纽前海湾站,目前项目已经大致上出地面,两年内完工。
轨道方面,项目距离地铁站为1号线鲤鱼门站约720米,距离5号线、9号线前湾站约900米,1/5/11号三条地铁线交汇。
另外还有穗深(广东-东莞-深圳)城际以及未来的深港西部快线在此设站,未来还会接通深珠城际,可以直接刷深圳通不用抢票。
路网交通方面,也是四通八达的网状设计,接通深圳目前各大重要主干道,项目紧邻月亮湾大道、滨海隧道(滨海大道地下道路一期工程)梦海大道连接前湾、妈湾、宝安中心,出行便利。

『社区会客厅,新奢生活范本』
尊崇高定大堂,精研艺术与生活交融之美,雕琢金属与石材材质的自然奢华,营造艺术感的归家体验,遇鉴居者精奢高雅的审美。
声明:本文由入驻焦点开放平台的作者撰写,除焦点官方账号外,观点仅代表作者本人,不代表焦点立场。
