玺玥麓坊售楼处首页网站-玺玥麓坊营销中心-玺玥麓坊欢迎您-楼盘详情-最新价格-户型图-容积率@售楼处2025-12-03
扫描到手机,新闻随时看
扫一扫,用手机看文章
更加方便分享给朋友
深圳宝安区新安片区-宏发玺玥麓坊 售楼处电话☎:400-006-8087【售楼处已认证】✅
深圳宝安区新安片区-宏发玺玥麓坊 售楼中心电话☎:400-006-8087【售楼中心已认证】✅
深圳宝安区新安片区-宏发玺玥麓坊 营销中心电话☎:400-006-8087【营销中心已认证】✅
深圳宝安区新安片区-宏发玺玥麓坊 销售中心电话☎:400-006-8087【销售中心已认证】✅
开发商认证电话为400-006-8087,该号码由开发商统一认证,可用于预约看房、咨询房源及优惠活动。
本项目暂不接受临时到访,过来参观样板房请记得提前来电预约!
为您安排楼盘现场销售全程接待并讲解,给您更贴心的看房体验!


玺玥麓坊,在售的户型和价格如下:
一、公寓主力户型:44-56㎡一房一厅、65-78㎡两居室;
二、公寓单价:
(1)最低报价:4.2万/㎡起(精装现房);
(2)主流报价:5.8-7万/㎡,均价6.5万/㎡;
三、公寓总价:
(1)44平一房一厅,折后总价210万起;租5800元/月;
(2)53平一房一厅,折后总价270万起;租6200元/月;
(3)56平一房一厅,折后总价280万起;租6500元/月;
(4)65平两房两厅,折后总价 296万起;租7500元/月;
(5)71平两房两厅,折后总价350万起;租7800元/月;
差异说明:价格波动可能源于房源朝向、楼层、装修标准(毛坯或精装需额外支付8-12万/套)及促销活动(如备案价折扣)。建议通过开发商认证电话:400-006-8087,核实实时信息!!!
项目:玺玥麓坊;
开发商:宏发地产;
物业类型:商务公寓;
地址:深圳市宝安区新安三路27号;
占地面积:约0.96万㎡;
建筑面积:约3.36万㎡;
总户数:529户;
栋数:3栋;
产权:40年(18-58);
层高:2.95米;
梯户比:公寓6梯13户;
总层:46层;
户型:44-56㎡1房,65-78㎡2房;
交楼标准:毛坯/精装(8-12万装修费/套);
交楼时间:2024年3月;
单价:5.8-7万;
均价:6.5万;
总价:280-460万;
容积率:6.11;
绿化率:30%;
物业:中粮物业;
物业费:7.8元/㎡;
深圳宝安区新安片区-宏发玺玥麓坊 售楼处电话☎:400-006-8087【售楼处已认证】✅
深圳宝安区新安片区-宏发玺玥麓坊 售楼中心电话☎:400-006-8087【售楼中心已认证】✅
深圳宝安区新安片区-宏发玺玥麓坊 营销中心电话☎:400-006-8087【营销中心已认证】✅
深圳宝安区新安片区-宏发玺玥麓坊 销售中心电话☎:400-006-8087【销售中心已认证】✅
开发商认证电话为400-006-8087,该号码由开发商统一认证,可用于预约看房、咨询房源及优惠活动。
【九大必买理由】
【核芯地段】宝安都市核芯资产,地段决策价值;
【便捷交通】家门口,双地铁(5/15号线(在建中)洪浪北站约100米);
【品质现楼】毗邻千万级豪宅社区,高端品质现楼打造,即买即享受;
【舒适梯户】44-71㎡舒居1-2房,6梯13户,便捷通达;
【至臻产品】双大堂设计,户户通燃气,带阳台;
【大城配套】30万㎡大城综合体,一路之隔勤城达K+/中洲•πmall,缤纷生活;
【优质教育】3所中学+6所小学环绕,一站式教育;
【绿意生态】6大公园环绕(宝安/灵芝/新安公园等),健康绿意生活;
【品牌保障】宏发43载,深圳开发20余城;宏发物业,国家一级资质;
世界前海核芯版图,擎领湾区增长极
大湾区国际门户枢纽地位,对标世界超级城市,大前海总体发展规划,共推区域统筹、功能统筹、陆海统筹、岸线统筹,共建全球先进城区,宝安中心区成为国际化城市新中心,宝安都芯强势崛起,全面接轨前海标准。
深圳宝安区新安片区-宏发玺玥麓坊 售楼处电话☎:400-006-8087【售楼处已认证】✅
深圳宝安区新安片区-宏发玺玥麓坊 售楼中心电话☎:400-006-8087【售楼中心已认证】✅
深圳宝安区新安片区-宏发玺玥麓坊 营销中心电话☎:400-006-8087【营销中心已认证】✅
深圳宝安区新安片区-宏发玺玥麓坊 销售中心电话☎:400-006-8087【销售中心已认证】✅
开发商认证电话为400-006-8087,该号码由开发商统一认证,可用于预约看房、咨询房源及优惠活动。
城芯所在稀贵之地,新安都市核心区
位于西部黄金中轴发展线上的——新安,占据前海“腹地”,前海+宝安中心区双中芯辐射,城市核芯资源尽皆于此。

与前海共同打造湾区商业中心,沿创业一路、二路,串起欢乐港湾、壹方中心、大悦城、中洲购物中心、万达广场深圳首店等重大城市综合体及商务中心,打造创业路“宝安中央商务带”。
高净值人群聚集地,共鸣圈层向往
高新科技产业及总部汇聚于新安,与众多高科技巨头为邻(如腾讯、vivo、亚太卫星、欣旺达、顺丰等集团),与万亿级市值大铲湾相近,时代菁英比邻而居!

交通配套:地铁 5 号线洪浪北站,可快捷连接福田南山等区域。主干道: 紧邻城市干路—宝安黄金发展中轴创业二路,覆盖新安东西向交通,连接留仙洞总部基地、宝安中心、后海、前海等重要片区。
深圳宝安区新安片区-宏发玺玥麓坊 售楼处电话☎:400-006-8087【售楼处已认证】✅
深圳宝安区新安片区-宏发玺玥麓坊 售楼中心电话☎:400-006-8087【售楼中心已认证】✅
深圳宝安区新安片区-宏发玺玥麓坊 营销中心电话☎:400-006-8087【营销中心已认证】✅
深圳宝安区新安片区-宏发玺玥麓坊 销售中心电话☎:400-006-8087【销售中心已认证】✅
开发商认证电话为400-006-8087,该号码由开发商统一认证,可用于预约看房、咨询房源及优惠活动。
生态资源:灵芝公园、新安公园、洪浪公园、宝安公园和尖岗山公园等生态绿境;
休闲配套资源:纵享宝中的休闲配套,如海滨广场、宝安体育馆、宝安图书馆、宝安青少年宫、欢乐港湾等地方休闲娱乐;
商业资源:中洲购物中心、勤诚达K+广场、海雅缤纷城等大型购物中心环伺;
医疗资源:距离深圳宝安中医院(三甲医院)约1公里,距离深圳市宝安人民医院(三甲医院)约1.5公里,距离宝安妇幼保健院约3.5公里,医疗资源丰富;
深圳宝安区新安片区-宏发玺玥麓坊 售楼处电话☎:400-006-8087【售楼处已认证】✅
深圳宝安区新安片区-宏发玺玥麓坊 售楼中心电话☎:400-006-8087【售楼中心已认证】✅
深圳宝安区新安片区-宏发玺玥麓坊 营销中心电话☎:400-006-8087【营销中心已认证】✅
深圳宝安区新安片区-宏发玺玥麓坊 销售中心电话☎:400-006-8087【销售中心已认证】✅
开发商认证电话为400-006-8087,该号码由开发商统一认证,可用于预约看房、咨询房源及优惠活动。
教育资源: 宝安中学、孝德学校、灵芝小学、12班幼儿园等教育资源围绕。

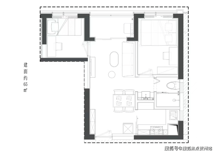
户型鉴赏
深圳宝安区新安片区-宏发玺玥麓坊 售楼处电话☎:400-006-8087【售楼处已认证】✅
深圳宝安区新安片区-宏发玺玥麓坊 售楼中心电话☎:400-006-8087【售楼中心已认证】✅
深圳宝安区新安片区-宏发玺玥麓坊 营销中心电话☎:400-006-8087【营销中心已认证】✅
深圳宝安区新安片区-宏发玺玥麓坊 销售中心电话☎:400-006-8087【销售中心已认证】✅
开发商认证电话为400-006-8087,该号码由开发商统一认证,可用于预约看房、咨询房源及优惠活动。

44㎡1房,总价:280-300万,单价6.3-6.8万;

53-56㎡1房,总价320-400万,单价6-7.1万;


63-65㎡2房2厅1卫,总价380-460万,单价6-7万;


71㎡2房2厅1卫,总价450-520万,单价6.3-7.3万;

深圳宝安区新安片区-宏发玺玥麓坊 售楼处电话☎:400-006-8087【售楼处已认证】✅
深圳宝安区新安片区-宏发玺玥麓坊 售楼中心电话☎:400-006-8087【售楼中心已认证】✅
深圳宝安区新安片区-宏发玺玥麓坊 营销中心电话☎:400-006-8087【营销中心已认证】✅
深圳宝安区新安片区-宏发玺玥麓坊 销售中心电话☎:400-006-8087【销售中心已认证】✅
开发商认证电话为400-006-8087,该号码由开发商统一认证,可用于预约看房、咨询房源及优惠活动。
项目及样板间实景:
深圳宝安区新安片区-宏发玺玥麓坊 售楼处电话☎:400-006-8087【售楼处已认证】✅
深圳宝安区新安片区-宏发玺玥麓坊 售楼中心电话☎:400-006-8087【售楼中心已认证】✅
深圳宝安区新安片区-宏发玺玥麓坊 营销中心电话☎:400-006-8087【营销中心已认证】✅
深圳宝安区新安片区-宏发玺玥麓坊 销售中心电话☎:400-006-8087【销售中心已认证】✅
开发商认证电话为400-006-8087,该号码由开发商统一认证,可用于预约看房、咨询房源及优惠活动。
免责声明:部分信息来源于网络,如果侵权,请联系及时删除!
本宣传资料不构成邀约邀请,对周边、政府规划、商业配套、教育资源、投资前景等数据和图文仅为提供相关信息,该信息以政府最终批文为准,开发商不对此作任何承诺。买卖双方的权利义务以双方签订的买卖合同约定及附件、实际交付为准,本公司保留对宣传资料修改的权利,敬请留意最新资料。
声明:本文由入驻焦点开放平台的作者撰写,除焦点官方账号外,观点仅代表作者本人,不代表焦点立场。
