赤湾开云府 (赤湾开云府 售楼中心)首页网站-赤湾开云府现在销售中心-欢迎您-楼盘详情-最新价格-户型图-容积率@售楼处2025年8月18日16:14:33
扫描到手机,新闻随时看
扫一扫,用手机看文章
更加方便分享给朋友
赤湾开云府售楼处Vip Tel:400-031-6012售楼处【售楼处已认证☎☎】⭐
赤湾开云府营销中心24小时电话:400-031-6012【营销中心☎☎已认证】⭐
赤湾开云府营销中心24小时电话:400-031-6012【售楼中心☎☎已认证】⭐
赤湾开云府售楼中心24小时电话:400-031-6012【售楼处限时特价】⭐
赤湾开云府售楼中心24小时电话:400-031-6012【营销中心☎☎已认证】⭐
赤湾开云府营销中心24小时电话:400-031-6012【售楼处☎☎已认证】⭐
⭐◆ 开发商营销中心诚挚邀请,为您安全和隐私保驾护航,一键预约,尊享内部折扣!匠心独运的精品项目,恭候您的品鉴与选择。⭐ 过来参观样板房烦请记得提前来电预约!安排楼盘现场销售全程接待并讲解,给您更贴心的看房体验!

二、周边配套
地理位置与交通:琅玥湾佳园紧邻地铁2号线与5号线交汇站赤湾站,交通极为便利。通过地铁可快速到达前海、宝中、蛇口以及深圳湾等深圳核心区域。此外,项目周边还有在建的地铁12号线左炮台站以及规划的地铁28号线,未来公共交通将更加发达。同时,项目可通过小南山隧道或港航路汇入兴海大道,连通前海、后海、宝中等区域。
商业配套:项目旁边是开云府4.6万㎡商业综合体,未来将带来首个大型shopping mall。此外,1.5km范围内分布着人人乐、华润万家、惠生活等商超,可满足日常所需。3km左右可达海上世界,同时项目所在的赤湾片区在建约30万㎡赤湾地铁综合体和43万㎡庙东综合体,以及全亚洲最大的太子湾K11购物中心。
教育配套:项目位于九年一贯制赤湾学校(南二外挂牌)附近,紧邻赤湾学校。周边还有北师大南山附属高中新校区、南山中英文学校、深圳贝赛思国际学校、深美国际学校等教育资源。
休闲配套:项目周边拥有大南山、小南山、赤湾山等三山环抱,以及伶仃洋海景。此外,还有大南山公园、小南山公园、文天祥纪念公园、华英路景观公园、赤湾公园、兴海公园、月亮湾公园等七大公园环伺。
【基本信息】
🔸 占地面积:约3.4万㎡
🔸 建筑面积:约32万㎡
🔸 绿化率:30%
🔸 业态:住宅、商业、写字楼、国际五星级酒店
🔸 可售住宅:418户
🔸 物业费:6.79元/㎡/月
🔸 车位数:1346(专享地上车位:460个,综合地下车位:886个 )
🔸 车位比:约1:1.1
🔸 梯户比:T1栋4梯6户,T2栋4梯4户
🔸 交房时间:2025年6月精装交付
🔸 片区运营开发商:中国南山开发(集团)股份有限公司
🔹 项目地址:南山区赤湾六路东北侧(地铁2/5号线赤湾站E口地铁上盖)
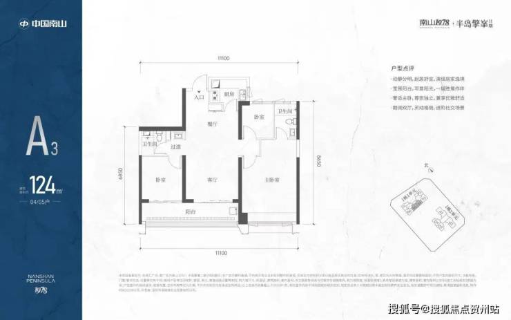
2:项目平面图和户型
「半岛擎峯二期」户型为124-129-133㎡三房二卫和203㎡大四房三房,除了最小的124㎡其他都是多阳台设计。纵使这个三房的尺度感比如今市面上很多刚需三房二卫要宽敞不少,但整体来看使用率确实不高。
129㎡三房二卫A1:
A1有两条腿,分别1-1栋01/02,主朝向是西北向,双龙抱珠格局。
舒适大三房设计主卧都享有270度采光面,整体空间尺度感大且采光面充足,视野非常宽阔。
129㎡三房二卫A2:
A2有两条腿,分别1-1栋03/06,主朝向是东南向,双龙抱珠格局。这个户型是超阔大阳台,朝向优于A1,但公卫是个暗卫。
124㎡三房二卫A3:
A3也是两条腿,分别是1-1栋04/05,主朝向是东南向,双龙抱珠格局。客厅拥有超大观景阳台,缺点是公卫是个暗卫,小次卧和主卫也对天井外走廊,采光不足。
203㎡四房三卫B1:
位于1-2栋两条腿,设有电梯厅入户空间,隐私性拉满,这个空间约有面积6.27㎡,空间也可以很好利用。
整个户型设计是四房三卫南北通透,约有7.4米大阳台。双套房设置且270°景观面,主卧带独立衣帽间和大浴缸。
133㎡三房二卫B2:
B2有两条腿,分别1-2栋03/04,主朝向西南向,竖厅设计。
这个户型的所有卧室空间都比较平均,主卧两面采光,综合来看是个很完整的传统三房户型。
赤湾开云府售楼中心24小时电话:400-031-6012【售楼处限时特价】⭐
声明:本文由入驻焦点开放平台的作者撰写,除焦点官方账号外,观点仅代表作者本人,不代表焦点立场。
