深圳龙华@壹城中心十区(壹城中心十区售楼处电话)壹城中心十区房价_户型#2025全新详情2025
扫描到手机,新闻随时看
扫一扫,用手机看文章
更加方便分享给朋友
����壹城中心十区����
��壹城中心十区售楼处电话:400-033-1856【已认证】��
��【壹城中心十区】Vip贵宾置业===欢迎来电预约尊享内部折扣===匠心钜制恭迎品鉴��
【壹城中心十区】丨楼盘详情丨价格丨更多优惠丨欢迎致电丨诚邀品鉴
✅壹城中心十区售楼处:400-033-1856【24小时预约热线】
✅壹城中心十区售楼处电话:400-033-1856【来电可享受优惠】
✅壹城中心十区营销中心电话400-033-1856【一对一热情服务】
✅本项目暂不接受临时到访,过来参观样板房请记得提前来电预约!
◆开发商营销中心诚挚邀请,一键预约,尊享内部独家折扣!匠心独运的精品项目,恭候您的品鉴与选择。
温馨提示:看房请提前来电预约,谢谢您的配合!(中介勿扰)
项目基本信息
开发商:鸿荣源地产
地址:深圳市龙华区景龙建设路与景龙太平路交汇处
占地:130万㎡(十区:2.53万㎡)
建面:320万㎡(十区:29万㎡)
产权:70年(15-95年)
总户数:1656可售1056
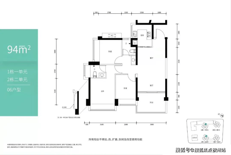
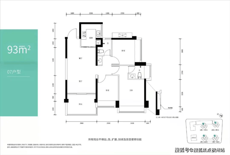
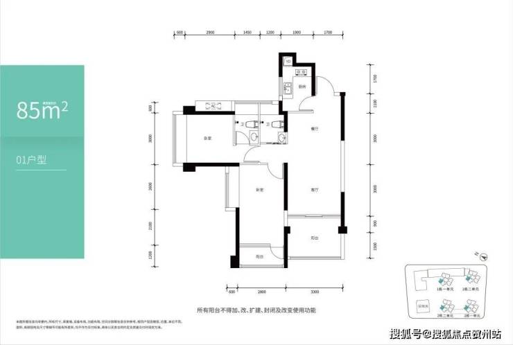
面积:85-93㎡3房2卫
车位比:1600个1:0.97
梯户比:3梯6户
价格:6.1.-7.4万
交楼标准:精装
物业公司:鸿荣源物业
物业管理费:5.3元/㎡
容积率:5.9
绿化:40%
交楼时间:2024年12月
建筑类型:住宅
层高:3米
使用率:80%
楼层高:47-49层
栋数:4栋
水电:民水民电
学校:龙华创新实验
开发商品牌与楼盘品质
壹城中心十区是由鸿荣源打造,作为深圳本土知名开发商,鸿荣源在房地产领域深耕多年,开发了多个标杆项目 ,如鸿荣源壹方中心等。其品牌在市场上拥有较高的认可度和美誉度,购房者对其品质和物业服务也较为信赖。在建筑质量上,壹城中心十区的用材和工艺都展现出较高水准 ,小区的园林景观、公共设施等也都经过精心设计与维护。
区域价值
「 龙华超级商圈,世界级消费中心 」
龙华超级商圈:龙华六大重点片区之一,以人民路为中轴,规划承载中洲龙商旧改、龙华海岸城旧改为核心,打造人民路龙华超级商圈。
世界级消费中心:未来龙华超级商圈将成为规模超200万㎡、产值超500亿的市级核心商圈和世界级未来消费体验中心。
【千万级城市更新】——40+品牌房企入驻
(片区约4个百万体量、7个50万以上体量旧改;如中洲、德业基、卓越、华润等一线房企

2022年5月底,深圳首个超级商圈震撼启动——龙华超级商圈,萃取龙华中心区约3.25平方公里黄金地段,意在打造规模超200万㎡的市级核心商圈和世界级未来消费体验中心。近日,深圳市商务局官网发布《深圳市商业网点规划(2023-2035)(征求意见稿)》,龙华超级商圈被划定为7个“全国引领级商圈”之一。
交通配套
距离4号线龙华站直线距离约500m
未来壹成四周有望环绕25/27/22号线
25、27号线线路规划草案已公布
地铁方面:距离最近的4号线龙华站,800米左右,步行约12分钟,也是离地铁相对较近的一个区。附近目前没有在建的地铁,规划中的有27号线的油福站和25号线的景龙站,兑现周期比较长。

教育配套
龙华创新实验学校及其附属幼儿园:九年一贯制公办学校,初中24个,小学36个共计60个教学班,附属幼儿园18个教学班,三所公立幼儿园【均已开学】(鸿创、鸿悦、鸿尚)

一所9班幼儿园(规划中)24班初中(规划中),龙华第二实验学校【已开学】:是一所书院式、园林式的现代化创新型公立九年一贯制实验学校(小学48班,初中24班)
商业配套
深圳最大体量城市集群型商业
壹方天地——五大主题商业精彩兑现
云集超1000家品牌商家,其中网红轻奢餐饮超50家、品牌美食超90家、娱乐潮玩超20家、国际一线美妆超20家、潮流服饰超300家
医疗配套
三甲医疗配套环伺,健康养老有“医”靠
新华医院(在建中)
深圳市首座超大型医疗综合体总建筑面积50.9万平方米,规划床位2500张是一家集医疗、科研、教学为一体的三级甲等综合医院。
深圳第二儿童医院(在建中)
总建设用地面积约40072.95 m2,规划床位1500张集儿科医疗、教学、科研、健康体检于一体定位为区域性中心医院,服务范围辐射深圳全市。
生态配套
城市公园环绕,城央稀缺生态绿氧生活
坐拥红木山水库、红木山郊野公园(规划中),生态绿氧环绕。政府斥资16亿打造生态绿谷之城,全长9公里的绿谷景观轴,中轴景观地标。附近还有德逸公园,龙塘公园,绿廊公园,北站中心公园,西头社区公园,油松滨水公园,龙胜公园,阳台山森林公园,龙华公公园,黄金山公园,清华文化公园等

文体配套
【樾人文】泱泱文脉艺术馆藏
深圳美术馆新馆:建面约6.56万㎡,建成将是深圳最大美术馆(预计2023年建成)
深圳图书馆北馆:建面约7.2万㎡,规模超越深圳图书馆(预计2023年建成)
深圳文化馆新馆:建面约8.33万m²,覆盖各类群体、艺术门类的地标建筑(预计2025年建成)

展览馆:室内展厅建面约1500㎡,市外园林建面约3000m²,中轴又一文化、艺术交流中心(已开馆)
演艺馆:建面约1.2万m²,比肩深圳欢乐海岸水秀剧场规模(已开馆)
简上体育综合体:建面约6.4万m²,龙华全民健身中心,综合性体育场馆(已开馆)
户型鉴赏



鸿荣源壹城中心十区(深圳龙华)
壹城中心十区售楼处电话☎:400-033-1856【售楼处已认证】
��在售户型图丨项目介绍丨最新房源丨周边配套丨详细解答〢
壹城中心十区营销中心电话:400-033-1856【售楼处已认证】
⭐◆开发商营销中心诚挚邀请,一键预约,尊享内部折扣!匠心独运的精品项目,恭候您的品鉴与选择。
⭐项目最新介绍:备案价、折扣、学区、地铁、交通、户型图、特价房、优缺点、得房率、优惠活动、小区图片、开盘时间、交房时间、周边配套、售楼处位置、最新详情等咨询。
免责声明:
1、本文、图片等信息部分来源于网络,如有相关内容侵权,烦请联系删除。
2、本文所提及一切图文资料以政府最后审批之法律文件及买卖双方签订的买卖合同为准。
3、我们重在分享,本文所述内容和意见仅供参考,不构成市场交易依据和投资建议。
声明:本文由入驻焦点开放平台的作者撰写,除焦点官方账号外,观点仅代表作者本人,不代表焦点立场。
