首页热搜:深圳湾公馆售楼处电话→深圳湾公馆Ai热搜24小时电话→2025最新房价→楼盘百科详情→售楼处更新发布@售楼处中
扫描到手机,新闻随时看
扫一扫,用手机看文章
更加方便分享给朋友
🔻开发商:广东城脉地产有限公司
🔻地址:南山后海大道和东滨路东侧交汇处,地铁2号线登良站 D出口
🔻占地面积:0.3万㎡
🔻总建面:3.7万㎡
🔻产权:70年(10-80年)
🔻总户数:约215套
🔻面积:79-152㎡3-4房
🔻车位比:200个停车位,车位配比为1:1
🔻梯户比:3梯10户
🔻交楼标准:精装
🔻物业公司:物资物业管理
🔻物业管理费:9.8元
🔻容积率:8.7
🔻绿化:30%
🔻交楼时间:现楼
🔻建筑类型:住宅
🔻层高:6米
🔻使用率:150-180%
🔻楼层高:48层
🔻栋数:1栋
🔻水电:民水民电
🔻学校:北师大附小,北师大附中
地铁2号线登良站500米。2/11/13号线后海站1000米
海陆空轨”国际化高效立体交通
五分钟达深圳湾口岸
香港、宝安双国际机场
多条城市主干道畅通全城
打造最高效30分钟国际社交圈
最具国际人文生活中心区
150万顶级商业配套
商业配套:深圳湾万象城|万象天地|来福士广场|海岸城|海上世界|天虹君尚等繁华一站式商业
深圳湾万象城、后海汇,深圳湾1号·湾汇、鹏广达商业街,海岸城三大商圈环绕;
奢享内湾湖景/深圳湾海景/深港双城市多层次景观,15公里滨海长廊, 12个湾区主题公园,绝美深圳湾,尽收眼底
深圳湾文化广场——超级湾区的世界进阶
以活力共创的“城市之心”
面向未来的“湾区之星”为定位
规划包含A区深圳创意设计馆和深圳科技生活馆,B、C区城市山谷文化商业区
B、C区是一个购物休闲的建筑群,有高低错落的交通联系,这里的建筑都比较低矮,基本都不超过50米。
全龄层国际教育、医疗服务一应俱全 北师大附小,南山外国语学府学校,南油小学,深圳大学附属后海学校,北师范大学附中,深圳湾学校,育才二中等
开车10-20分钟可达蛇口人民医院,南山区妇幼保健院,南方医科大学深圳医院,南山区人民医院,深圳大学医院,广州中医药大学第一附属医院南山医院,深圳沙河医院,香港大学深圳医院
——深圳湾唯一在售复式住宅——
湾区总部基地 奢装臻品复式现楼
海陆空轨 四维立体交通枢纽
百万商业云集 人文配套环绕
国际一线精装 智能生活体验
酒店式物管团队打造塔尖圈层服务
【户型介绍】
①79㎡三房
实用面积:129㎡
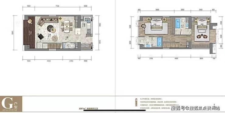
②87㎡二至三房
实用面积:126-134㎡
③113㎡三房
实用面积:148㎡
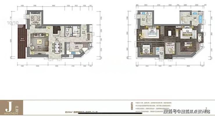
④152㎡四房
实用面积:206㎡
【精选好房,入主深圳湾最佳机会】
1)低区
113㎡3房
152㎡4房
2)中高区
87㎡2房
88㎡2房
1
★79㎡复式三房两厅三卫 南北通透,5.4米大开间,复式下层餐厨客厅连宽景阳台,另带一个法式小阳台。复式上层私密卧房全明采光,动静分区私享个性生活。另一个次卧带衣帽间。
02
★88㎡复式两房两厅三卫 双向通透采光,5.4米开间客厅及主卧,双套房周全设计,室内多变空间可根据家庭需要设置独特的功能。
03
★113㎡复式三房两厅三卫+工人房 南北通透三面景观,5.6米客厅与主卧开间,独具品位,尽享奢阔。
04
★152㎡复式三套房两厅四卫+双功能房 双向通透三面采光,尽赏深圳湾景观,6.3米开间,三套房设计,两间多功能房满足个性化使用。
★113㎡复式三房两厅三卫+工人房 南北通透三面景观,5.6米客厅与主卧开间,独具品位,尽享奢阔。
声明:本文由入驻焦点开放平台的作者撰写,除焦点官方账号外,观点仅代表作者本人,不代表焦点立场。
