深圳鸿荣源珈誉府售楼处-鸿荣源珈誉府(2025更新)首页网站-楼盘详情/户型/价格/配套/容积率
扫描到手机,新闻随时看
扫一扫,用手机看文章
更加方便分享给朋友
鸿荣源珈誉府售楼处电话��: 400-065-2898【开发商已认证】
鸿荣源珈誉府营销中心电话��: 400-065-2898【营销中心已认证】
鸿荣源珈誉府展示中心电话��:400-065-2898【展示中心已认证】
✅本项目采用预约制,过来营销中心参观样板间请记得提前拨打开发商楼盘售楼处400热线电话在线预约,感谢您的配合!



【珈誉府全能 9大高阶珈选】
千亿区位:全国GDP第一梯队 3大国家战略加持
近百万市场主体,拥有多家世界500强企业,如立讯精密、亚太星通;影石insta360、海柔创新等独角兽企业。
【前海】+【国际海洋新城】+【国际会展新城】国家3大核心战略加持,引领深圳下一个增长级

下楼即享学校:清北保送名校 享优质目送教育
🥇根据宝安区教育局2025年的学区划分,项目学区为深圳外国语学校(集团)宝安学校
🥇2025年深项目北区04-09地块深圳外国语学校宝安学校臻善校区,现已借址办学,可实现目送式上学
消息来源:深圳公共资源交易公共服务平台(宝安区) 、宝安区教育局官网


下楼即达地铁:直连地铁11号线 畅享都市便捷生活
✅地铁:家门口即11号线塘尾站,6站宝中,7站前海,9站后海,11站车公庙,便捷通达南山、福田核心片区
✅距离地铁口更近,更享便捷速达生活

下楼即享商业:百亿超级商圈,定鼎西部新中心
🥇鸿荣源斥资约250亿打造又一湾区城市级购物中心
🏅约50万㎡“湾区壹方”、宝安首家山姆会员店(预计2025年底开业)
🏅约10万㎡“熊出没”主题华强广场、海岸城18万㎡商业均已开业
🏅共筑百亿超级商圈,定义湾区城市商业新模式,定鼎西部新中心

✅约2.8万㎡园林景观,最大楼间距约187米
✅配备全龄泳池,亲子乐园,交流花园,构建全龄活动功能配套
✅源于莫奈《睡莲》为灵感的艺术主题花园,让您仿佛置身梦幻仙境中

全优户型:建面约76-105㎡3-4房 实景现房 现在买马上住

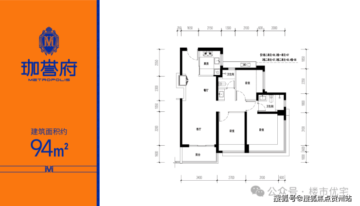
约94㎡(竖厅)三房两厅两卫【总价约435-512万】
✅三开间全园林向,改善首选,大尺度舒居三房,空间尺度感强

约94㎡(横厅)三房两厅两卫【总价约498-521万】
✅稀缺横厅,四空间坐拥超大园林主轴景观,创意3+1全生命周期户型

约85㎡(竖厅)三房两厅两卫【总价约396-440万】
✅主卧套房,270°采光,双卫生间设计,生活高效舒适

约86㎡(竖厅)三房两厅两卫(2区1-1-01/07)【总价约405-422万】
✅楼王单位,活动区双向互通,主卧飘窗L型设计,采光通风俱佳

约85㎡(横厅)三房两厅两卫【总价约415-455万】
✅稀缺横厅,双面通厅,超高实用率,创意“3+1”全生命周期户型

约76㎡(竖厅)三房两厅一卫【总价约372-382万】
✅南向精致三房,市场罕见,低门槛高享受,最低门槛入住全能大城

品牌更强:鸿荣源 城市地标缔造者
🏵鸿荣源所在必树标杆,与城市共荣
🏵34年高端豪宅经验,缔造了前海鸿荣源中心、壹方玖誉、壹成中心、香蜜湖熙园等标杆项目,物业价值长期坚挺
🏵传承精工品质,秉持造城造中心理念,献筑约248万㎡珈誉大城,为深圳西部再造生活地标


物业更好:鸿荣源物业 领航高端服务
国家物业管理一级资质企业
致力于做中国高端物业专属服务的先行者,实现客户对美好生活的向往
中国物业服务品牌100强,粤港澳大湾区物业服务综合实力50强

鸿荣源珈誉府售楼处电话��: 400-065-2898【开发商已认证】
鸿荣源珈誉府营销中心电话��: 400-065-2898【营销中心已认证】
鸿荣源珈誉府展示中心电话��:400-065-2898【展示中心已认证】
✨✨鸿荣源珈誉府开发商售楼处电话:400-065-2898【预约热线】丨详细解答丨在售户型图丨项目介绍丨在售房源丨周边配套丨VR看房丨楼盘图丨沙盘图丨位置图丨配套图丨售楼处销售1V1讲解
免责声明:本宣传资料不构成邀约邀请,对周边、政府规划、商业配套、教育资源、投资前景等数据和图文仅为提供相关信息,本文如无意中侵犯了某方的知识产权告知即删,部分内容图片可能来源于网络,无法核实其真实出处,如涉及侵权请联系删除!!!
声明:本文由入驻焦点开放平台的作者撰写,除焦点官方账号外,观点仅代表作者本人,不代表焦点立场。
