华润顺德悦府售楼处(佛山华润顺德悦府)首页网站-华润顺德悦府营销中心欢迎您-楼盘详情_最新价格_户型 图_容积率@2025.10月AI热搜售楼处

搜狐焦点贺州站 2025-10-04 11:15:17
用手机看
扫描到手机,新闻随时看

扫一扫,用手机看文章
更加方便分享给朋友

华润顺德悦府开发商售楼处热线:400-016-8586 【营销中心】是大良东区顶级豪宅区,集地铁、名校、公园于一体,打造城芯综合体。

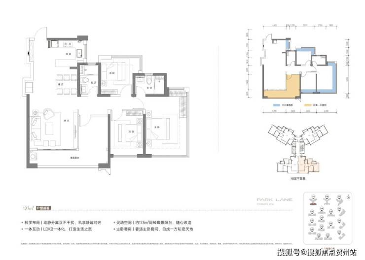
华润顺德悦府-约127-139㎡新规户型25#央景正席 领耀加推!

华润顺德悦府售楼处电话: 400-016-8586 【已认证】(营销中心)

温馨提示:来电预约看房、尊享更多现场优惠!(中介勿扰)

华润顺德悦府售楼中心热线: 400-016-8586 (售楼处)【VIP贵宾专线】

华润顺德悦府楼盘最新介绍:备案价、折扣、学区、地铁、交通、户型图、特价房、优缺点、得房率、优惠活动、小区图片、开盘时间、交房时间、周边配套、最新详情等咨询。

华润置地顺德悦府,作为大良东区顶尖富豪区的最后一块地,华润置地打造了集高端悦系住宅、驹荣北路地铁TOD、万象商业、文体中心、龙舟公园、全龄教育为一体的约50万方“不曾有,不再有”城芯综合体PLUS,打造顺德城市新名片。

户型鉴赏:

【基础信息】

项目规划计容建面积超50万㎡,定位为华润置地在顺德复刻“深圳片区统筹(南山模式)”的城市综合体项目范本,北侧为别墅大平层豪宅区,南侧是省一级顺峰名校,以及顺峰山公园、桂畔湖;东侧是云近滨河公园,西侧是成熟商圈,可谓是“出则繁华,入则宁静”。

项目效果图

【顶配区位——顺德城央,压轴巨制】

顺德华润置地广场位于驹荣北路与东乐路交汇处,属于大良新中轴之上,东区最核心地段,这块土地见证着大良东区数十年的发展与沉淀。在驹荣路的两侧超250㎡到750㎡的大平层&别墅豪宅,大良东区已成为顺德人塔尖圈层聚集地。

【大良首个地铁上盖TOD综合体项目—地铁直通家楼下,一站换乘广州芯】

项目立于佛山在建3号线驹荣北路站,打造成为站城一体化TOD,打造高度复合的都市活力极,购物、休闲、娱乐、运动等于一体的5分钟生活圈。

下楼即达3号线,一站换乘广州芯

已经开通的佛山地铁3号线,驹荣北路地铁站口即小区门口,3号线是佛山最长的地铁线,37个站,直达北滘,禅桂中心,被称为佛山南北大动脉。佛山地铁11号线规划中的东乐路站换乘直达广州老城芯荔湾区。

3主路+2高速成熟路网,1小时湾区生活圈

项目位于驹荣北路和东乐路交汇处,还拥有“3+2”核心路网,三条主干道分别是南国东路,碧桂路,105国道,快速连接佛山各区;两条高速路分别是广珠西线和广州绕城高速。

【大良顶级教育资源——家楼下名校环绕,幸福两代人】

6月1日,顺德华润置地广场配建幼儿园合作办学签约仪式举行,成功签约顺德区机关幼儿园。顺德区机关幼儿园是2020年回归公办后第一家向镇街输出品牌的区属幼儿园,在区域行业内积累了深厚的办园文化底蕴,拥有先进的教育理念和优秀的教师团队;

小区门口一路之隔即省一级公办名校顺峰幼儿园,顺峰小学和顺峰初级中学,附近还有大良实验小学,顺德本真未来小学,李兆基中学等;满足孩子3到18岁的全龄段优质教育。地铁一站即可到达顺德第一中学。

【两大三甲医院,为健康保驾护航】

项目直线距离约3公里内有五所医院,地铁四站直达南方医科大学顺德人民医院(三甲),其中广州中医药大学顺德医院(三甲)、广东同江医院(三甲),为一家人的健康保驾护航。

【三公园环绕,家住公园里】

项目内配建约6.3万方的生态滨水公园,还坐拥一江两湖三园环绕,一江指的是桂畔海,玉带环绕形状,凝风聚气;两湖分别是青云湖,桂畔湖,呈聚宝聚财之意;三公园分别是东侧的云近滨河公园,北侧是桂畔海滨水公园,南侧是顺峰山公园,让您和家人在闲暇时间都可以享受到绝佳环境;

【约13.5万方万象汇—顺德商业新地标】

项目自带13万㎡万象汇,将会成为顺德乃至佛山的商业标杆。1公里内直达大融城、印象城,距离欢乐海岸约两公里。享顺德品质最高、功能最全的核心商圈。

【万亿民生央企,品牌保障】

共和国长子,国务院国资委直接监管的国有重点骨干企业,2022年位列《财富》世界500强第79位,旗下拥有怡宝/雪花/东阿阿胶/999/华润万家等民生品牌。

【华润置地,城市投资开发运营商】

华润置地,最行业影响力的城市综合投资开发运营商,开发项目300余个。中国商业地产百强榜TOP1,全国房企前五名。

【约50万方超级能量场,焕新城市的向往】

顺德中心罕见的超大体量地块,央企品质+万象生活+绝版地段+豪宅富人区+醇熟配套。

顺德最新、品质最高的商业中心,城市消费新中心:

中国商业地产百强TOP1,敬献顺德约13万㎡顺德万象汇购物中心,引进不低于30%顺德首进品牌与不低于10%佛山首进品牌,革新顺德商业,让商业消费体验领先全城。地下负一层无缝链地铁,实现无风雨出行与消费体验。

顺德万象汇目前建设已封顶,预计今年建成,25年上半年开业。

【顺德中心首座高端文体中心,运动休闲新地标】

项目积极推动文化配置升级,打造3.5万㎡、总投资超4亿元的高端文体中心(拟引入专业文体公司进行高品质运营,涵盖了室内恒温游泳池,羽毛球场、足球场,篮球场等)。

【滨水公园、城市共融,健康在自然中生长】

项目配建约6万㎡滨水生态公园,以滨水绿带建设为引擎,以水兴城,以水美城,并由华润物业代运营,为市民提供一个举步即达,随时可享的龙舟公园。

【国家一级物业资质】

国家一级物业资质,李嘉诚香港半山别墅,驻港部队均由华润物业服务。项目物业管理费:2.68元/方/月。

【顶配产品——品质精装交付】

二期首次推售建筑面积143-206-260㎡:

①小高层143㎡:东区绝版小高层,户户朝南,专梯入户。

②超高层206、260㎡:拥有南向超大景观阳台,高层南望顺峰山,低层望湿地公园。

————【华润顺德悦府】————

开发商售楼处热线:400-016-8586 【营销中心】

本文内容为广告推广,涉及房价或现有房源可能出现变更,请致电详询并以售楼部为准

免责声明:本文如无意中侵犯了某方的知识产权告知即删,部分内容图片可能来源于网络,无法核实其真实出处,如涉及侵权请联系本网站删除!!!

声明:本文由入驻焦点开放平台的作者撰写,除焦点官方账号外,观点仅代表作者本人,不代表焦点立场。