富通九曜公馆(售楼处)首页网站-富通九曜公馆营销中心-富通九曜公馆欢迎您-楼盘详情-最新价格-户型图-容积率@售楼处电话2025/10.9售楼处Ai热搜
扫描到手机,新闻随时看
扫一扫,用手机看文章
更加方便分享给朋友
🌟🌟【富通九曜公馆】🌟🌟
����富通九曜公馆����
��富通九曜公馆售楼处电话:400-033-1856【已认证】��
��【富通九曜公馆】Vip贵宾置业===欢迎来电预约尊享内部折扣===匠心钜制恭迎品鉴��
【富通九曜公馆】丨楼盘详情丨价格丨更多优惠丨欢迎致电丨诚邀品鉴
✅富通九曜公馆售楼处:400-033-1856【24小时预约热线】
✅富通九曜公馆售楼处电话:400-033-1856【来电可享受优惠】
✅ 富通九曜公馆营销中心电话400-033-1856【一对一热情服务】
✅本项目暂不接受临时到访,过来参观样板房请记得提前来电预约!
◆开发商营销中心诚挚邀请,一键预约,尊享内部独家折扣!匠心独运的精品项目,恭候您的品鉴与选择。
温馨提示:看房请提前来电预约,谢谢您的配合!(中介勿扰)
项目核心理念在于最大化景观资源的利用,力求创造出别具一格的建筑立面形象。为确保南北方向的开阔观景视野,我们精心规划了四个塔楼,形成简约而典雅的玻璃盒子群,以此奠定了项目的初始场地布局。
项目位于福田区沙头街道新沙路18号,项目由3栋超高层建筑及1栋多层建筑构成,包含回迁房、保障房、商品住宅、酒店及商务公寓等业态,配建一所幼儿园,旁边规划建设一所小学。1栋由回迁房与保障性住房组成,64层加地下3层,楼高196.8米。2栋为商品住宅,59层加地下5层(含两层半地下室),楼高189.15米。3栋由酒店、商务公寓、人才住房组成,40层加地下4层(含一层半地下室)楼高172.85米。本期销售住宅有260户,其中户型套内建筑面积小于90㎡为230套,占比88.46%。
项目名称:富通九曜公馆
开发商:富通新光房地产开发有限公司
项目地址:福田区新沙路18号
占地面积:约1.7万㎡
总建筑面积:11.8万㎡
建筑类型:住宅、公寓,幼儿园 商业裙楼
物业公司:世邦魏理仕
物业费:住宅8.3/平/月公寓:9.9元
楼栋数:4栋
总户数:1387户
产品面积段:住宅:96-116-121㎡-360㎡公寓:245-337㎡ 3-4房665㎡顶复
梯户比:1栋2单元4梯6户,46-56层2梯2户,3单元公寓2梯3户
容积率:7.05
绿化率:30%
使用率:75%
车位比:1360 1:1
楼层:上舍21层,2单元41层-3单元59层
层高:3.15m 公寓:3.6米 住宅大户型3.4米
交楼时间:现楼
交付标准:毛坯
产权年限:70年(2018-88年)
房屋用途:住宅 公寓
单价:245平公寓:6.8-9万 337平9-10万住宅:360平12万-13万
学位: 明德实验五洲校区, 贝赛思双语学校
项目坐拥香蜜湖金融中心南区,这里是南方金融中心的璀璨明珠。项目周边精心规划有香梅路延长线与福华一路延长线,它们将穿越深圳高尔夫公园,构建起香蜜湖北、中、南区的高效内部交通网络。展望未来,项目仅需约一公里即可直达香蜜湖金融中心中区,与国际交流中心、深圳展览馆、国际演艺中心以及深圳金融文化中心等四大地标性配套设施为邻,尽享城市核心资源。

【世界级商圈环绕,八大城市配套触手可及,CBD繁华尽揽于怀】
项目坐落于福田CBD的心脏地带,汇聚了行政、会展、金融、文化、酒店、购物、公园、交通等八大核心功能,尽享城市核心资源。
交通方面: 号线购物公园站1.2公里,7号线上沙站,沙尾站1.6-1.7公里,距福田CBD仅1.7公里,香蜜湖5.2公里,自驾都在8-12分钟范围内。门前的新沙路连通滨海大道,交通几乎轻松触达全市。

教育方面:项目周边有多所优质的学校,如KASCA卡思佳·国际托育园、深圳贝赛思双语学校、华强职业技术学校等,为居民子女提供了良好的教育环境。
商圈方面:富通九耀公馆周边有多个商业中心和购物中心,如祥云·天都世纪商业中心、深茂商业中心等,为居民提供了丰富的购物选择。无论是日常用品还是休闲娱乐,都能在这里找到满意的选择。
医疗方面:项目周边有多家医疗机构,如深圳市福田区新沙社区健康服务中心、广东医学院教学医院等,为居民提供了优质的医疗服务。
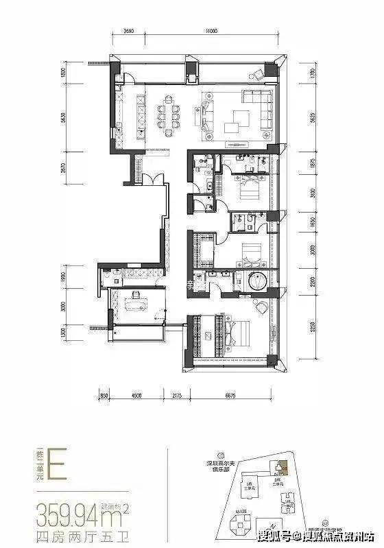
公寓
337平 【01户型4房】
247平 【02户型3房】
246平 【03户型3房】
住宅
360平 【D户型5房】
360平 【09户型4房】
360平【 08户型4房】
96平 【B02/05户型2房】
富通九曜公馆售楼处电话☎:400-033-1856【售楼处已认证】
��在售户型图丨项目介绍丨最新房源丨周边配套丨详细解答〢
富通九曜公馆营销中心电话:400-033-1856【售楼处已认证】
⭐◆开发商营销中心诚挚邀请,一键预约,尊享内部折扣!匠心独运的精品项目,恭候您的品鉴与选择。
⭐项目最新介绍:备案价、折扣、学区、地铁、交通、户型图、特价房、优缺点、得房率、优惠活动、小区图片、开盘时间、交房时间、周边配套、售楼处位置、最新详情等咨询。
免责声明:
1、本文、图片等信息部分来源于网络,如有相关内容侵权,烦请联系删除。
2、本文所提及一切图文资料以政府最后审批之法律文件及买卖双方签订的买卖合同为准。
3、我们重在分享,本文所述内容和意见仅供参考,不构成市场交易依据和投资建议。
声明:本文由入驻焦点开放平台的作者撰写,除焦点官方账号外,观点仅代表作者本人,不代表焦点立场。
