港湾天际售楼处(港湾天际)2025首页网站-港湾天际营销中心欢迎您-楼盘详情-最新价格-户型图-容积率@最新售楼处中心
扫描到手机,新闻随时看
扫一扫,用手机看文章
更加方便分享给朋友
珠海——港湾天际最新介绍:备案价、折扣、学区、地铁、交通、户型图、特价房、优缺点、得房率、优惠活动、小区图片、开盘时间、交房时间、周边配套、最新详情等咨询。
港湾天际售楼处电话: 400 -045-8086预约来访下定当天更享折上折!!
(售楼中心 | 欢迎来电咨询 | 请提前预约登记看房 | 1:1销售专业讲解)
港湾天际营销中心热线: 400-045-8086(售楼处)【VIP贵宾专线】
基本信息:
开发商:珠海市高新城市建设有限公司
项目位置:广东·珠海·高新区·港湾大道·中大附中北侧·天际综合体2#
总占地:约4.43万㎡
总建面:约31.3万㎡
总户数:共计550户(1栋275户,本次加推2栋150户,3栋125户)
总层数:26层
总停车位数:约1985个
户型:32-105㎡一至三室山海美宅
装修标准:精装修
产权:住宅70年
学校:北京理工大学附属实验学校作为北京理工大学基础教育京外合作办学的第一所学校,将充分依托北京理工大学及珠海校区的资源优势,围绕拔尖创新人才培养目标,推进理工特色大中小一体化贯通培养,全力打造一所质量高、有特色、多元发展的现代化学校。
据悉,北理附小学部将聘请陈彩玉担任校长,旨在打造一支富有爱心且经验丰富的教师队伍。同时北理附也是北理工珠海校区老师孩子的定点学校,生源较为纯粹。
未来,学校将在在课程体系、教学质量、队伍建设和育人成效等方面实现“区域引领,省内示范”效应,致力打造省内第一梯队名校,为推动教育强省建设作出积极贡献。
楼下约5万㎡东方六境园林,四公园环绕,家门口半月公园预计年内动工,露营、健身、遛娃下楼即享。
国企高新建投携手央企中建澳门匠心合著,钜献精工品质,赋予建筑卓越耐久性。
户型鉴赏
栋:
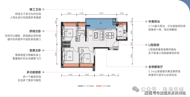
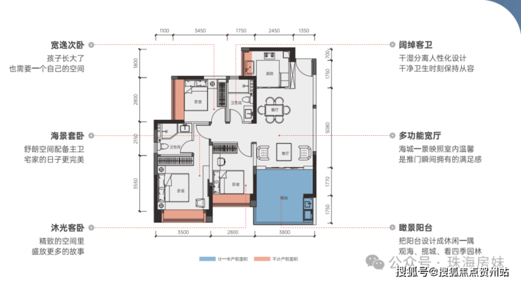
建筑面积约69m² 两房两厅一卫:

建筑面积约87m² 三房两厅一卫

建筑面积约103m² 三房两厅两卫:

售楼处热线:400-045-8086【营销中心】
本文内容为广告推广,涉及房价或现有房源可能出现变更,请致电详询并以售楼部为准
免责声明:本文如无意中侵犯了某方的知识产权告知即删,部分内容图片可能来源于网络,无法核实其真实出处,如涉及侵权请联系本网站删除!!
声明:本文由入驻焦点开放平台的作者撰写,除焦点官方账号外,观点仅代表作者本人,不代表焦点立场。
