2025最新楼讯✦【珠海港湾天际】售楼处咨询热线→户型配套→优惠政策→价值分析报告→首页网站→精选笔记→开发商权威发布
扫描到手机,新闻随时看
扫一扫,用手机看文章
更加方便分享给朋友
※珠海 港湾天际 ※
※※※ 港湾天际售楼处电话📞:400 066 0916【☎☎已认证】※※※
※※※ 港湾天际售楼处24小时电话:400 066 0916【☎☎已认证】※※※
※※※楼盘项目全面介绍:含开盘消息、交房时间、楼盘详情、房价、户型、详情、得房率、售楼处地址、首页网站、销售中心、楼盘地址、户型图、交通、备案价、项目配套、营销中心、开发商、周边配套等详情咨询※※※
※※※开发商现场销售专业介绍楼盘 预约看房尊享优惠内部折扣※※※
※※※温馨提示:网上展示中心〢欢迎来电咨询〢安全通话隐藏真实号码※

项目基本情况
开发商:珠海市高新城市建设有限公司
项目位置:广东·珠海·高新区·港湾大道·中大附中北侧
总占地:约4.43万㎡
总建面:约31.3万㎡
总户数:共计550户(1栋275户,2栋150户,3栋125户)
总层数:26层
总停车位数:约1985个
户型:32-105㎡一室至三室山海美宅
装修标准:精装修
产权:住宅70年
项目四大亮点(区位最好、地段最佳、配套最齐、产品最优)
港湾天际汇聚办公、商业、人居三大业态,总建筑面积约32万㎡,涵盖3栋高品质精工美宅、约4万㎡潮流商业购物中心、近200米超高甲级写字楼三大业态,中大附小、附中近在咫尺,乃是目前片区配套成熟、体量最大、业态最丰富的国企综合体。
港湾天际臻品精工美宅,推窗即赏山观海,勾勒出的山海胜景,诠释了现代悠然自得的意境。随景入画,用心打造三重归家礼序,尊享优雅归家的仪式感。下楼即享“悦水之湾”互动式园林水景,归家的路皆是美景。
港湾天际位于高新区未来科技城的核心区——后环,在高新区的最新规划中,未来这里将集聚资源打造成大湾区一流滨海科创城区,而高新区也将打造成国际一流未来科技城、大湾区一流滨海生态科创城区、深珠合作示范区、珠江西岸应用型科技创新高地和科技场景应用示范基地、珠海高质量发展样板和经济增长极、国家历史文化名镇。
【项目四大核心亮点】
❖ 区位最好:地处三大自贸区中心,扼守“黄金内湾”“咽喉”位置,享湾区发展利好
❖ 地段最佳:高新区核心地段,占位高新区未来科技城及金银湾超级总部基地重要规划区域之间,高起点的规划落地将助力板块价值腾飞;
❖ 配套最齐:四通八达的交通体系、人杰地灵的百年古镇、稀缺的山海及宜居配套、优质完善的学府配套、高端有趣的商业配套,均汇聚于此;
❖ 产品最优:七年磨一剑,王牌户型搭配高品质精装,集购物中心、商务办公及山海美宅于一体的城市地标综合体
【南中国海第一湾-盛世崛起对接黄金内湾】
唐家湾雄踞珠海门户区位,地处大湾区“黄金内湾”和珠江口西岸三大都市圈前沿,也是深珠合作的桥头堡、示范区。唐家湾山-海-城-湾-岛相连,有“与近代文明伴生的南中国海第一湾”之誉。
【大道经济新引擎-坐拥城市高质量发展宏大格局】
项目位于未来科技城与金银湾超级总部双版块之间,邻接港湾大道千亿产业轴,聚集串联科创产业、超级总部基地以及高校院所,一线承接前环金银湾总部片区发展利好。畅享海、陆、空、轨等立体黄金动脉,纵横湾区,畅行主城。
❖ 五大机场:①珠海金湾机场、②广州白云机场、③深珠宝安机场、④香港国际机场、⑤澳门国际机场。工作旅游随时通达。
❖ 湾区快线:港珠澳大桥、深中通道(建设中)、深珠通道(招标完成,待动工)通行后深珠即实现30分钟畅达。
❖ 城际轨道:广珠城轨、南中珠城际(规划中)现已可45分钟穿行广珠,与省会无障碍对话。
❖ 高速公路:京珠高速、西部沿海高速
❖ 海上高速:唐家港码头(试航中)
❖ 直通市区:港湾大道、情侣北路、兴业快线、金琴快线,多线并进连接市区。
高新建投 投资置业首选国企
高新建投,高新区区属国企,深耕高新16载。公司项目涵盖产业园、综合体、酒店、社区服务中心、住宅、人才安居房等类型,开发建设经验丰富,开启专业化、集团化发展进程。

【聚人文 汇商旅】
❖ 文:优教环伺,高校圈与高知为邻
标杆幼儿园(建设中)、中山大学附属小学、中山大学附属中学等全龄段教育约百米即达。
周边汇聚中山大学珠海校区、北京师范大学珠海校区、UIC等知名高校,人文氛围浓郁。启乐、大同、蔚海、港湾、前环、云海、容闳幼儿园等,幼儿上学无忧。
|标杆幼儿园效果图
❖ 商:约4万m²精品商业体,缤纷全新升级
项目楼下自带4万m²购物中心,打造全新升级片区休闲娱乐目的地。周边1.5公里港湾一号、滨海商圈等各大购物中心共筑繁华打卡地。
|港湾天际购物中心效果图
港湾一号(运营中)效果图
❖ 旅:文化名镇集深厚文化底蕴
唐家湾历史文化底蕴深厚,项目一路之隔即享中国历史文化古镇——唐家古镇,这里历史名人辈出,富有特色古建筑与烟火气交相辉映。
|唐家古镇效果图
地处高新区内最宜居板块。临近石坑山、唐家湾沙滩,远眺古凤凰山脉、伶仃洋;尽享山海资源。周边更有淇澳岛、约55km情侣路、金银湾公园、中山公园、红花山森林公园等丰富旅居资源,一站式打造城市旅居目的地。
【重本精工:高品质精装交付。致献每一位业主】
❖ 重本打造三重归家礼序,营造优雅归家的仪式感,并以跌水景观、游艇会客厅、休闲活动区、海洋主题童趣天地等活力配套,打造“悦水之湾”互动式园林水景

艺术归家门厅效果图

仪式感大堂门楼效果图

水景园林效果图
❖ 选用国内外知名高端品牌,高标准配置了中央空调、洗碗机、智能马桶等家电,人性化的设计了伸缩龙头、厨房凉霸、卫生间暖霸等贴心细节,全面提升您的生活质感

【高新爆款广面积段住宅超低门槛入住高新地标】
八大王牌户型面积段涵盖32-105㎡,满足投资自住多元化需求
户型方正、实用率高,赠送面积多
户型鉴赏
建筑面积约69m² 两房两厅一卫:

建筑面积约87m² 三房两厅一卫:

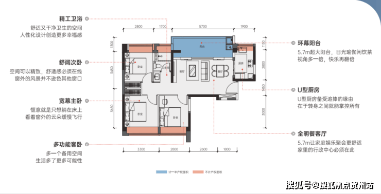
建筑面积约103m² 三房两厅两卫:


港湾天际展示中心24小时电话:400 066 0916【售楼处已认证】
港湾天际营销中心24小时电话:400 066 0916【售楼处已认证】
⭐◆开发商营销中心诚挚邀请,一键预约,尊享内部折扣!匠心独运的精品项目,恭候您的品鉴与选择。⭐
项目最新介绍:备案价、折扣、学区、地铁、交通、户型图、特价房、优缺点、得房率、优惠活动、小区图片、开盘时间、交房时间、周边配套、售楼处位置、最新详情等咨询。
免责声明:部分信息来源于网络,如果侵权,请联系及时删除
声明:本文由入驻焦点开放平台的作者撰写,除焦点官方账号外,观点仅代表作者本人,不代表焦点立场。
