宏发悦见公园里资讯营销中心(2025)→宏发悦见公园里首页网站_售楼处→楼盘详情
扫描到手机,新闻随时看
扫一扫,用手机看文章
更加方便分享给朋友
宏发悦见公园里售楼处Vip Tel:400-031-6012售楼处【售楼处已认证☎☎】⭐
宏发悦见公园里营销中心24小时电话:400-031-6012【营销中心☎☎已认证】⭐
宏发悦见公园里营销中心24小时电话:400-031-6012【售楼中心☎☎已认证】⭐
宏发悦见公园里售楼中心24小时电话:400-031-6012【售楼处限时特价】⭐
宏发悦见公园里 售楼中心24小时电话:400-031-6012【营销中心☎☎已认证】⭐
宏发悦见公园里营销中心24小时电话:400-031-6012【售楼处☎☎已认证】⭐
⭐◆ 开发商营销中心诚挚邀请,为您安全和隐私保驾护航,一键预约,尊享内部折扣!匠心独运的精品项目,恭候您的品鉴与选择。⭐ 过来参观样板房烦请记得提前来电预约!安排楼盘现场销售全程接待并讲解,给您更贴心的看房体验!
开发商:深圳市天荣盛房地产开发有限公司(宏发集团)
物业公司:深圳市宏发物业服务有限公司
物业管理费:4.39元/㎡
总占地面积:约3.07万㎡
总建筑面积:约33.83万㎡
容积率:7.58
绿化率:40.01%
产权年限:2021.12-2091.12年(70年)
总户数:1203户,可售商品房803户
总栋数及楼高:2栋4个单元,36-46层。
梯户比:3梯6户
层高:3米
停车位:1784个
车位占比:1:1.48
交房时间:2025年6月
交付标准:精装修

项目周边配套
学校配套:项目自带有1所9班制幼儿园,东北面规划有1所18班小学,根据2024年光明区教育局学区划分,小学学区划分在公明第一小学、公明第二小学、合水口实验学校小学部、东宝纪念小学、宝滨小学、明达小学、深圳教科院实验小学(光明),初中学区划分在公明中学、合水口实验学校初中部。
在2024年的学校录取积分中,除了深圳教科院实验小学(光明)录取积分是第四类62.25分,其它学校都是第八类录取,包括公明中学也仅第八类29.5分,按照光明的学校录取积分政策,第八类属于非深户学区租房,所以由此也能看出该片区的学校生源是比较宽松的。
交通配套:悦见公园里毗邻主干道松白路,周边双地铁口,6号地铁线红花山站距离约700米,6/13号地铁线公明广场站距离约500米,4站到凤凰城,6站到石岩上屋,11站到西丽留仙洞。
深圳13号线作为光明区的生命线,也是深圳3条快线之一,设计时速120公里,纵贯宝安区、光明区、南山区,将重新定位光明科学城通往南山核心区域的距离,其中一期已经在空载试运行,二期计划在2025年开通。
商业配套:悦见公园里自带有社区底商,一路之隔就是公明最大的大仟里购物中心,也是光明首个一站式大型购物中心,光明人消费必选打卡地之一,另外在800米范围内还有天虹商场,百佳华商场,出门即享繁华。
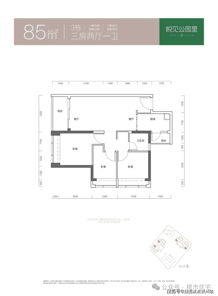
85㎡的3房2厅1卫,设计的是竖厅格局,客厅3.3米开间,LDKB一体化设计,3个卧室分别做到了主卧10.97㎡/次卧8.24㎡/次卧6.7㎡(实测面积,去掉墙体),L型厨房带1个生活阳台,卫生间三段式分离,得房率73.72%(不含赠送),西北或东南朝向。

88㎡的3房2厅1卫,设计的是经典竖厅格局,客厅3.3米开间,LDKB一体化设计,动静分区,3个卧室分别做到了主卧10.9㎡/次卧6.78㎡/次卧6.47㎡(实测面积,去掉墙体),L型厨房带1个生活阳台,公卫三段式分离,得房率73.71%(不含赠送),有西北、东北、西南或东南朝向。

91㎡的3房2厅2卫,仅3栋2单元01户型,设计的是竖厅双龙抱珠格局,客厅3.4米开间,三开间朝南,3个卧室分别做到了主卧11.9㎡/次卧7.06㎡/次卧6.2㎡(实测面积,去掉墙体),L型厨房带1个生活阳台,卫生间干湿分离,得房率73.55%(不含赠送),西南朝向。

94㎡的3房2厅2卫,设计的是竖厅格局,客厅3.4米开间,LDKB一体化设计,3个卧室分别做到了主卧12.82㎡/次卧7.94㎡/次卧6.84㎡(实测面积,去掉墙体),L型厨房带1个生活阳台,公卫三段式分离,得房率73.71%(不含赠送),有西北、东北或西南朝向。

97㎡的3房2厅2卫,仅3栋4单元01户型,设计的是竖厅双龙抱珠格局,客厅3.4米开间,三开间朝南,3个卧室分别做到了主卧11.97㎡/次卧7.47㎡/次卧7.17㎡(实测面积,去掉墙体),L型厨房带1个生活阳台,公卫三段式分离,得房率73.61%(不含赠送),东南朝向。

宏发悦见公园里售楼处Vip Tel:400-031-6012售楼处【售楼处已认证☎☎】⭐
宏发悦见公园里营销中心24小时电话:400-031-6012【营销中心☎☎已认证】⭐
宏发悦见公园里营销中心24小时电话:400-031-6012【售楼中心☎☎已认证】⭐
宏发悦见公园里售楼中心24小时电话:400-031-6012【售楼处限时特价】⭐
宏发悦见公园里 售楼中心24小时电话:400-031-6012【营销中心☎☎已认证】⭐
宏发悦见公园里营销中心24小时电话:400-031-6012【售楼处☎☎已认证】⭐
⭐◆ 开发商营销中心诚挚邀请,为您安全和隐私保驾护航,一键预约,尊享内部折扣!匠心独运的精品项目,恭候您的品鉴与选择。⭐ 过来参观样板房烦请记得提前来电预约!安排楼盘现场销售全程接待并讲解,给您更贴心的看房体验!
声明:本文由入驻焦点开放平台的作者撰写,除焦点官方账号外,观点仅代表作者本人,不代表焦点立场。
