深湾华府(售楼处)首页网站-深湾华府营销中心欢迎您-深湾华府最新价格-楼盘百科详情-在售户型@售楼中心电话2025.10.30
扫描到手机,新闻随时看
扫一扫,用手机看文章
更加方便分享给朋友
深圳南山后海片区-深湾华府/紫藤苑 售楼处电话☎:400 006 8087【售楼处已认证】✅
深圳南山后海片区-深湾华府/紫藤苑 售楼中心电话☎:400 006 8087【售楼中心已认证】✅
深圳南山后海片区-深湾华府/紫藤苑 营销中心电话☎:400 006 8087【营销中心已认证】✅
深圳南山后海片区-深湾华府/紫藤苑 销售中心电话☎:400 006 8087【销售中心已认证】✅
开发商认证电话为400-006-8087,该号码由开发商统一认证,可用于预约看房、咨询房源及优惠活动。
本项目暂不接受临时到访,过来参观样板房请记得提前来电预约!
为您安排楼盘现场销售全程接待并讲解,给您更贴心的看房体验!

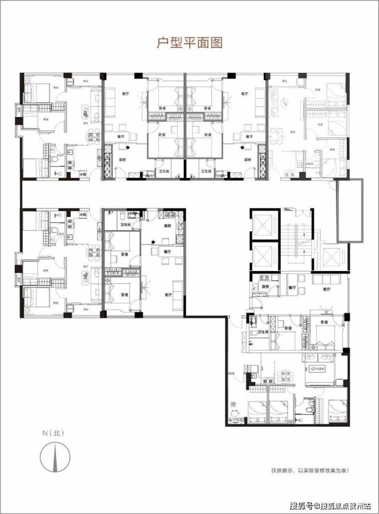
深湾华府【深圳湾小面积海景房】,目前在售户型为建面约37㎡的两房或者三房户型海景房,实际套内使用面积约54㎡,使用率140%~170%。
深湾华府,总价约530万起,表面单价约14万/㎡,实际单价10万/㎡。具体价格因朝向和户型略有差异:
(1)朝向差异:朝东、朝南、朝北向均有房源,价格区间在530万至630万之间;
(2)户型差异:不同户型(如端头户型与非端头户型)总价相差约50万,折合单价约10万/㎡。
(3)交付标准:精装现房交付。
【深湾华府项目基础信息】
【开发商】深圳市展致贸易有限公司
【整体总建面】约26363㎡
【产品面积】约37㎡小两房或者小三房(实际套内使用面积接近54㎡)
【地块停车位】:1:1.2
【物业公司】:致远房地产物业公司
【容积率】:3.11
【总层高】:18层
【产权年限】:70年
区位分析:
区域聚集了粤港澳大湾区最震撼的滨海景观、最高标准的市政规划、最具影响力的企业总部、最顶级的居住圈层。深圳湾堪称“粤港澳大湾区皇冠上那颗最璀璨的明珠,是深圳未来实现“世界标杆城市”终极梦想的先锋代表!
深圳深湾华府位于南山区后海片区,由深圳市展致贸易有限公司开发。项目总建面约26363平方米,提供约37平方米的小两房户型,实际套内使用面积接近54平方米。周边交通便利,商业配套完善,且坐拥一线海景资源,是深圳湾豪宅区的一个亮点。
【稀缺必买价值】
🗺粤港澳大湾区国家战略,由香港、澳两个特别行政区和广东省广州、深圳、珠海、佛山、惠州、东莞、中山、江门、肇庆九个珠三角城市组成的世界级城市群,是中国开放程度最高、经济活力最强的区域之一。
区域聚集了粤港澳大湾区最震撼的滨海景观、最高标准的市政规划、最具影响力的企业总部、最顶级的居住圈层。深圳湾堪称“粤港澳大湾区皇冠上那颗最璀璨的明珠,是深圳未来实现“世界标杆城市”终极梦想的先锋代表
项目位于深圳湾核心区域-后海片区,后海片区是中国总部企业最为密集的区域之一,吸引了约80家如腾讯、阿里、华润、联想、中海油等知名企业总部竞相入驻,主打总部经济、科技创新和金融服务。
交通配套:海陆空轨国际化四维交通 速达全球
距离2号线海月站约200米;
片区依托三纵四横道路交通及深圳湾关口约200米,实现深港链接;25分钟可达香港中环、香港国际机场;并且依托沿江高速可快速到达广州、珠三角等地。
商业配套:顶级商业配套
仅需5分钟便可抵达占地11万平方米的宝能allcity购物中心。与香悦里和天虹商业区的直线距离均不超过1公里。
休闲配套:顶级人文配套
位于深圳湾豪宅区核心之地,北接后海总部经济群,南邻深圳湾口岸,坐拥一线海景资源,楼下中心河及深圳湾公园。
15公里滨海休闲长廊|深圳湾文化广场|深圳湾大街|深圳歌剧院
医疗配套:全龄国际教育 医疗服务
深圳湾中小学, 楼下就是幼⼉园和南⼭外国语⾼中;
南山区新房均价高居全市各区之首,而深圳湾片区更是南山区高端豪宅最密集、市政规划最超前、居住环境最优的片区,这里汇集了深圳湾1号,华润深圳湾,恒裕滨城,宝能太古城,卓越维港等深圳最顶级的豪宅。
并且片区内可开发用地几乎全部是企业自持的办公总部用地,我们项目作为深圳湾稀缺绝版小户型住宅,是低门槛入住深圳湾“亿级”豪宅圈层的最后机会。
户型鉴赏
二房户型鉴赏:
三房户型鉴赏:
深圳南山后海片区-深湾华府/紫藤苑 售楼处电话☎:400 006 8087【售楼处已认证】✅
深圳南山后海片区-深湾华府/紫藤苑 售楼中心电话☎:400 006 8087【售楼中心已认证】✅
深圳南山后海片区-深湾华府/紫藤苑 营销中心电话☎:400 006 8087【营销中心已认证】✅
深圳南山后海片区-深湾华府/紫藤苑 销售中心电话☎:400 006 8087【销售中心已认证】✅
开发商认证电话为400-006-8087,该号码由开发商统一认证,可用于预约看房、咨询房源及优惠活动。
免责声明:部分信息来源于网络,如果侵权,请联系及时删除!
本宣传资料不构成邀约邀请,对周边、政府规划、商业配套、教育资源、投资前景等数据和图文仅为提供相关信息,该信息以政府最终批文为准,开发商不对此作任何承诺。买卖双方的权利义务以双方签订的买卖合同约定及附件、实际交付为准,本公司保留对宣传资料修改的权利,敬请留意最新资料。
声明:本文由入驻焦点开放平台的作者撰写,除焦点官方账号外,观点仅代表作者本人,不代表焦点立场。
