绿景白石洲售楼处欢迎您-楼盘详情-楼盘百科详情-备案价-户型图@售楼处
扫描到手机,新闻随时看
扫一扫,用手机看文章
更加方便分享给朋友
绿景白石洲售楼处电话:400-066-0916【售楼处已认证】
绿景白石洲开发商电话:400-066-0916【售楼处已认证】
✅ 为您安排楼盘现场销售全程接待并讲解,给您更贴心的看房体验!
绿景白石洲营销中心电话:400-066-0916【售楼处已认证】
绿景白石洲展示中心电话:400-066-0916【售楼处已认证】
☞☞Vip贵宾置业==欢迎来电预约尊享内部折扣===匠心钜制恭迎品鉴☜☜
✅ 过来参观样板房烦请记得提前来电预约!
项目基本信息
【开发商】:深圳市绿景天盛实业有限公司
【楼盘地址】:深圳市南山区深南大道与沙河东路交叉口东北角
【总占地】:46万㎡(发四期开发,一期占地3.06万㎡)
【建筑规模】:500万方,开发时长8-10年
【总建面】:一期建面:46.26万㎡( 可售157073㎡,可售公寓100015.36㎡)
【容积率】:10.3
【绿化率】:30%
【规划户数】:一期住宅1257户,公寓1489套,
【停车位】:1983个
【建筑类型】:塔楼
【物业类型】:高端住宅,高端公寓,写字楼,高奢酒店,40万平方巨无霸商业。
【产权年限】:住宅70年,公寓40年
【园林面积】:9000㎡
【交付标准】:送一张品牌精装修
【物业管理费】:5.8元/㎡/月 (参考周边华润城润玺9.5元/㎡/月 华侨城5.8-10元/㎡/月)
【物业公司】:仲量联行顾问,绿景物业
项目基本信息
总栋数:3栋住宅(1栋3、4、5单元)+2栋公寓
楼层层高:住宅三栋都为74F
梯户比:1-3/1-4栋低区4T7,高区3T6;1-5栋高低都是3T6(PS:48F以上为高区)
车位比:1983个(1383个优先满足住宅使用)
交房时间:2025年底
交房标准:精装交付(赠送,不额外收费)
物业公司:绿景物业
小区配置:9000㎡园林,5200㎡泛会所
车位比:1:0.73 (拉通住宅公寓商业,但分区管理住宅是一户一张月卡)
得房率:70%
交楼时间:2026年1月15日前
交楼标准:智能精装交楼
绿景白石洲项目坐落于深圳市南山区沙河街道的心脏地带——白石洲片区,具体位于新塘社区内,巧妙地融合在沙河街与新塘街的交汇东南隅。其北侧静邻高端居住典范香山美墅,南眺繁华深南大道与绿意盎然的红树湾区域,西傍风景如画的大沙河湿地,紧邻名流云集的名商高尔夫球会,而东侧则无缝衔接至华侨城纯水岸的优雅景致。
项目精髓在于其无与伦比的黄金地段、全方位配套及出众的性价比。购房决策中,地段的价值始终是核心考量,尤其是对于那些非纯粹依赖地段而忽略居住品质的“老破旧”项目而言,地段优势更显珍贵。
户型鉴赏
建面约110m²三房两厅两卫
瞰景三房,卧室标配飘窗,观景阳台展开风景画卷
|餐客一体化,连通阳台,畅享全家欢聚时刻
|动静分区舒适化营造,休慎与家庭活动互不干扰
|主卧私享化,独立卫浴、衣帽间,自在天地一隅
建面约118㎡三房两厅两卫
横向四开间设计,南向约13.4m奢华采光面,和光同悦南向观景C位,客厅、卧室随心眺望窗外城市风景
奢享主卧,生活阳台、衣帽间、私人卫浴,独享非凡领地
餐客一体贯通阳台,打造舒适、宽敞的家庭欢聚天地本户型所在位置示意
A户型 建面约125㎡三房两厅两卫
瞰景三房,飘窗、阳台拉开居住视野,主卧私享功能产备 LDK一体化设计,打造无边界、社交化的餐客厨系统
I动静分区舒适化营造,休慎与家庭活动互不干扰
双阳台设计,厨房连通生活阳台,延展更多空间,随心收纳
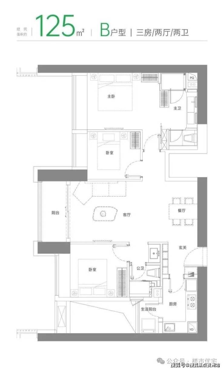
B户型 建面约125㎡三房两厅两卫
|横向四开间设计,南向约14.1m奢华采光面,和光同悦
|南向观景 C 位,客厅、卧室随处纵览非凡城市景观
|奢享主卧,步入式衣帽间,私人卫浴,独享自我领地
|双阳台设计,厨房连通生活阳台,延展更多空间,随心收纳
C户型 建面约125 m² 三房两厅两卫
卧室标配飘窗,引入丰沛阳光,全家尽情舒展餐客一体贯通阳台,打造舒适、宽敞的欢聚天地奢享主卧,独享衣帽间、私人卫浴,自我非凡领地
双阳台设计,厨房连通生活阳台,延展更多空间,随心收纳本
建面约187m² 四房两厅两卫
横向创新户型,超宽向阳尺度,吸纳阳光新风
主卧私享化,独立卫浴、衣帽间,自在天地一隅四开间朝南,卧室大飘窗,在阳光中享受美好栖居
南北双阳台,一面晾晒收纳,一面休闲享受,精彩不止
南山♐绿景白石洲璟庭
绿景白石洲售楼处电话:400-066-0916【售楼处已认证】
绿景白石洲开发商电话:400-066-0916【售楼处已认证】
绿景白石洲营销中心电话:400-066-0916【售楼处已认证】
绿景白石洲展示中心电话:400-066-0916【售楼处已认证】
☞☞Vip贵宾置业==欢迎来电预约尊享内部折扣===匠心钜制恭迎品鉴☜☜楼盘最新介绍:备案价、折扣、学区、地铁、交通、
户型图、特价房、优缺点、得房率、优惠活动、小区图片、开盘时间、交房时间、周边配套、最新详情等咨询
声明:本文由入驻焦点开放平台的作者撰写,除焦点官方账号外,观点仅代表作者本人,不代表焦点立场。
