鸿荣源珈誉府售楼处(欢迎您)首页网站-深圳#鸿荣源珈誉府|楼盘详情-最新房价信息
扫描到手机,新闻随时看
扫一扫,用手机看文章
更加方便分享给朋友
❊❊ 深圳/宝安【鸿荣源·珈誉府】❊❊
❊❊鸿荣源·珈誉府开发商电话:400 112 1828【☎☎已认证】❊❊
❊❊鸿荣源·珈誉府售楼处电话:400 112 1828【☎☎已认证】❊❊
❊❊鸿荣源·珈誉府售楼中心电话:400-112-1828【☎☎已认证】❊❊
鸿荣源·珈誉府最新介绍:备案价、折扣、学区、地铁、交通、户型图、特价房、优缺点、得房率、优惠活动、小区图片、开盘时间、交房时间、周边配套、最新详情等咨询。
♣♣☞☞Vip贵宾置业==欢迎来电预约尊享内部折扣===匠心钜制恭迎品鉴☜☜♣♣
温馨提示:过来看房请记得提前来电预约,尊享售楼处1v1销售专业讲解,感谢您的来电!
项目概况
鸿荣源珈誉府,作为鸿荣源集团在宝安区的又一力作,以其卓越的地理位置、优雅的园林设计、丰富的配套设施以及优质的教育资源,成为区域内的一颗璀璨明珠。项目致力于打造一个集居住、购物、休闲、教育于一体的综合性高端社区,为居民提供全方位的生活便利。
楼盘基础信息
1、开发商:深圳市鸿荣源控股(集团)有限公司
2、物业公司:深圳市鸿荣源物业服务有限公司
3、物业管理费:5.9元/㎡
4、总占地面积:约4.79万/㎡
5、总建筑面积:约40.53万/㎡
6、容积率:5.42
7、绿化率:40%
8、产权年限:2022年5月-2092年5月(70年)
9、总户数:2479户
10、总栋数及楼高:10栋,31-44-45-46-47-48层
11、梯户比:2梯2户/3梯5户/3梯7户
12、车位数:2795个
13、车位占比:1:1.12
14、交楼时间:2026年12月
15、交楼标准: 简装
以“抄底”的价格
享受最顶级的配套
除了上述提到的种种优势,更令乐居君惊叹的是,珈誉府5区共有产权房,只需“花2万+的价格就能享受最强六边形全能配套(地铁、商业、学校、品牌、园林、精工)”,以抄底的价格享受最顶级的大城配套。
1. “家门口”的地铁,11号线塘尾站直连
项目紧邻地铁11号线塘尾站,可以轻松实现6站到宝中、7站到前海、9 站到后海、11站到车公庙,快速通达宝安、南山、福田多个中心区。无论是上班、购物还是娱乐,都能轻松满足业主的出行需求。
2. 约250亿打造“湾区壹方”,尽享百亿级商圈繁华
商业配套方面,鸿荣源斥资约250亿打造又一湾区城市级购物中心“湾区壹方”,约50万㎡(建设中),自持自运营,比前海壹方城规模更大,业态更丰富。此外还有宝安首家山姆会员店(建设中)、海岸城18万㎡商业(已开业)等缤纷商业集聚,尽享百亿级商圈繁华。

3. 名校为邻,享12年目送式教育
项目自身配建有一所18班幼儿园和一所63班九年一贯制学校。一路之隔就是四大名校之一的深圳外国语学校(集团)宝安学校。在这里,孩子可享受12年目送式教育,这不仅让家长多了一份安心,也为孩子提供了优质的教育资源。(注:学校的学区划分、入学条件、招生计划等均以教育主管部门颁布的政策和学校的通知为准。)
4. 鸿荣源匠心精铸,4000+业主的选择
鸿荣源作为城市地标缔造者,打造了众多如前海鸿荣源中心、壹方玖誉、壹成中心、香蜜湖熙园等标杆项目。这一次秉持着33年匠心精铸的经验,传承“誉”系精工品质,为项目的品质提供了坚实保障。
优秀如鸿荣源珈誉府,品牌和口碑俱佳。无论是龙华还是宝中等项目交楼满意度颇高,交付率超95%,客户认可度高;2023年7月-2024年11月期间,珈誉府荣获深圳楼市的“双冠王”!这一荣誉的背后,是4000多位业主的共同选择,可见客户信赖度之高。


2024年11月普通住宅预售项目销售榜单TOP1O(图源克而瑞)
5. 1.7万㎡艺术主题园林,打造达芬奇的“私家园林”
项目打造约1.7万㎡艺术主题园林,以达芬奇《密码花园》为灵感,覆盖鲜花绿植、泳池、儿童乐园等组合而成的“私家园林”,为业主提供了享受品质生活的自然与宁静空间。
多样户型选择
今年买,明年住
在交付力上,珈誉府5区也是“杠杠滴”!不仅实现了“今年买,明年住”,而且还提供了超出预期的交付标准。
同时,项目的不同方向,还能体验不同的视野景观。
东向看凤凰山、万丰湖水库;南向看立新湖、城市景观;西向看繁华商业;高区还能看海景......四个方位,怎么看都有景观面!
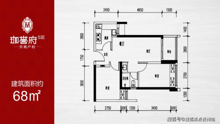
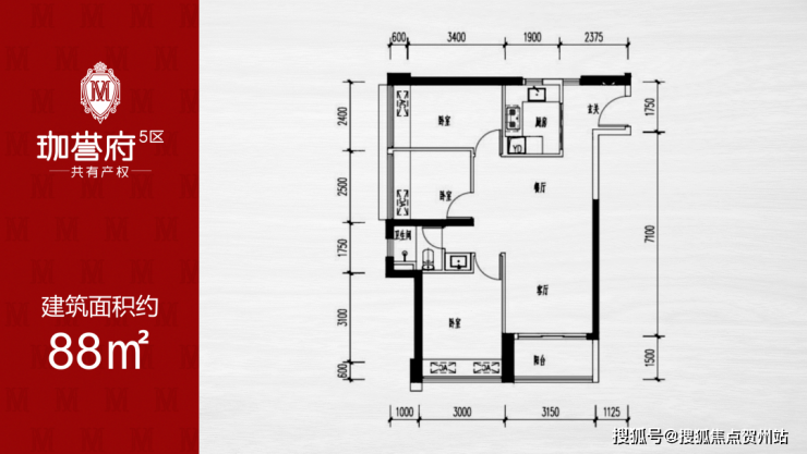
在户型设计上,项目打造建面约68-88㎡舒居2-3房,充分满足不同购房者的需求。
项目平面图
即使是同样的建面,也能设计出不同的格局。比如建面约68㎡两房两厅一卫:
01/11户型,巧妙地利用端头位置的独特优势,匠心打造出“三面采光,独门独户”的户型格局,形成东西对流,私密性更强。甚至玄关面积达到了宽敞的4.3㎡,而这样的尺度是市面上100多平商品房才拥有的;

户型鉴赏
02/03户型,以实用的U形厨房脱颖而出,相当于市面110㎡产品的使用空间;房间舒适阔绰,卫生间采用三分离设计,收纳空间多。

户型鉴赏
建面约88㎡的三房,本次共推售346套户型,数量有限,总价200万出头,预计会是多口之家或是想要一步到位家庭的热门之选。
户型处于端头位置,朝正南,采光充足;U型厨房,客厅开间约3.15米,进深约6.15米,三面采光,让整个空间通透明亮;主次卧空间利率高,居住舒适;还贴心配备了1.5卫,为多口之家提供了更多的便利。

户型鉴赏
交楼标准上,全体户型产品交标均一致:四合一大门、欧派鞋柜,厨房海尔三件套,洗手间三分离,欧派镜柜,海尔分体空调等皆已安排妥当,减少业主装修烦恼,让业主更省心省力,安心入住!
项目还采用日立高速电梯,其运行速度高达4m/s,远远超过市场上常见的2.5m/s的电梯速度,大大缩短了候梯时间;外立面也与商品房采用同等品质!
从室内到室外,每一个细节之处,都彰显了对业主居住体验的重视与关怀,为每一位业主提供了更为舒适、便捷、安全且具有品质感的理想家园。
珈誉府5区
优势凸显,超值之选
虽然,在当前市场上有人才房、安居型商品房等保障房的选择,但许多项目却存在着明显的局限性,而珈誉府5区共有产房却有无可比拟的优势!
对比其他在售的人才房和安居型商品房,要么价格高过珈誉府,要么多数处于较偏僻或发展不成熟的板块:
如宝安的人才房海岸悦府,价格参考海乐华府的4.9万/m²(毛坯),远远高过珈誉府5区;
南山的安居房山樾湾花园,推售价约4.2万/m²,但紧挨着货柜码头,周边环境欠佳;历经四次配售,次次去化率都偏低,最近一次认购仅189户,但可选的房源数是3746套,最后只卖出了25套;
相较之下,珈誉府5区所在片区已经成熟,单价只需2.1万起就能享受大城配套的品质生活,无论是从地段、交通、教育还是商业配套等等来看,珈誉府5区都具有显著优势,而且目前已经是准现楼,性价比远超其他在售的人才房和安居型商品房。
重点是,珈誉府5区的申购门槛是是目前深圳保障房中最低的!

值得一提的是,鸿荣源珈誉玖玺作为鸿荣源珈誉府 3 期住宅,可是整个项目的收官之作哦🥳 刚需 3 件套齐全,交通、商业、教育啥都不缺。以后这里会成为整个沙井配套最成熟,人口最集中的区域,妥妥的潜力股💎 这么好的机会,错过可就拍大腿啦!
鸿荣源珈誉玖玺,由鸿荣源集团打造,总占地面积约4.79万㎡,总建筑面积约40.53万㎡,计容建筑面积约27.63万㎡,容积率5.42,绿化率40%,共由10栋总高31-48F住宅组成,其中6栋1/2单元住宅44F,7栋/8栋住宅48F,9栋1单元住宅46F,9栋2单元住宅45F,10栋1单元住宅47F,10栋2单元住宅31F,11栋住宅46F,12栋/13栋住宅48F。
总规划2479户,全部都是商品房,地下室有3层,规划停车位2795个,车位占比约1:1.127。

75㎡的3房2厅1卫,设计的是竖厅格局,客厅3.1米开间,LDKB一体化,S墙设计预留冰箱卡槽位,3个卧室分别做到了主卧10.2㎡/次卧8.55㎡/次卧7.95㎡(包含墙体飘窗),U型厨房,卫生间三段式分离,西南朝向。
84㎡的3房2厅2卫,设计的是经典竖厅格局,客厅3.2米开间,LDKB一体化,S墙设计预留冰箱卡槽位,三开间朝南,3个卧室分别做到了主卧12.37㎡/次卧9.18㎡/次卧6.76㎡(包含墙体飘窗),U型厨房,卫生间三段式分离,西南或东南朝向。
94㎡的3房2厅2卫,设计的是横厅南北通透格局,客餐厅6.3米开间,LDKB一体化,四开间朝南,卧室全南向,3个卧室分别做到了主卧15.3㎡/次卧8.5㎡/次卧8.16㎡(包含墙体飘窗),L型厨房,公卫三段式分离,阳台主朝东北向。
97㎡的3房2厅2卫,设计的是横厅南北通透格局,客餐厅6.2米开间,LDKB一体化,四开间朝南,3个卧室分别做到了主卧13.87㎡/次卧8.58㎡/次卧7.92㎡(包含墙体飘窗),L型厨房,卫生间干湿分离,阳台主朝东北向。
鸿荣源珈誉玖玺采用围合式布局,约2.9万㎡艺术大园林,采用世界名画“记忆的永恒”为灵感打造,最大楼间距约161米,全龄段子母双泳池。
综合测评:

声明:本文由入驻焦点开放平台的作者撰写,除焦点官方账号外,观点仅代表作者本人,不代表焦点立场。
