荔源雅苑官方售楼处电话(荔源雅苑)官方首页网站- 荔源雅苑营销中心欢迎您-楼盘详情•最新价格-户型图-容积率@2026.1.30售楼处✦AI热搜
扫描到手机,新闻随时看
扫一扫,用手机看文章
更加方便分享给朋友
深圳南山中心区-荔源雅苑 官方售楼处电话☎:400-006-8087【售楼处已认证】✅
深圳南山中心区-荔源雅苑 官方售楼中心电话☎:400-006-8087【售楼中心已认证】✅
深圳南山中心区-荔源雅苑 官方营销中心电话☎:400-006-8087【营销中心已认证】✅
深圳南山中心区-荔源雅苑 官方销售中心电话☎:400-006-8087【销售中心已认证】✅
开发商官方认证电话为400-006-8087,该号码由开发商官方统一认证,可用于预约看房、咨询房源及优惠活动。
本项目暂不接受临时到访,过来参观样板房请记得提前来电预约!
为您安排楼盘现场销售全程接待并讲解,给您更贴心的看房体验!

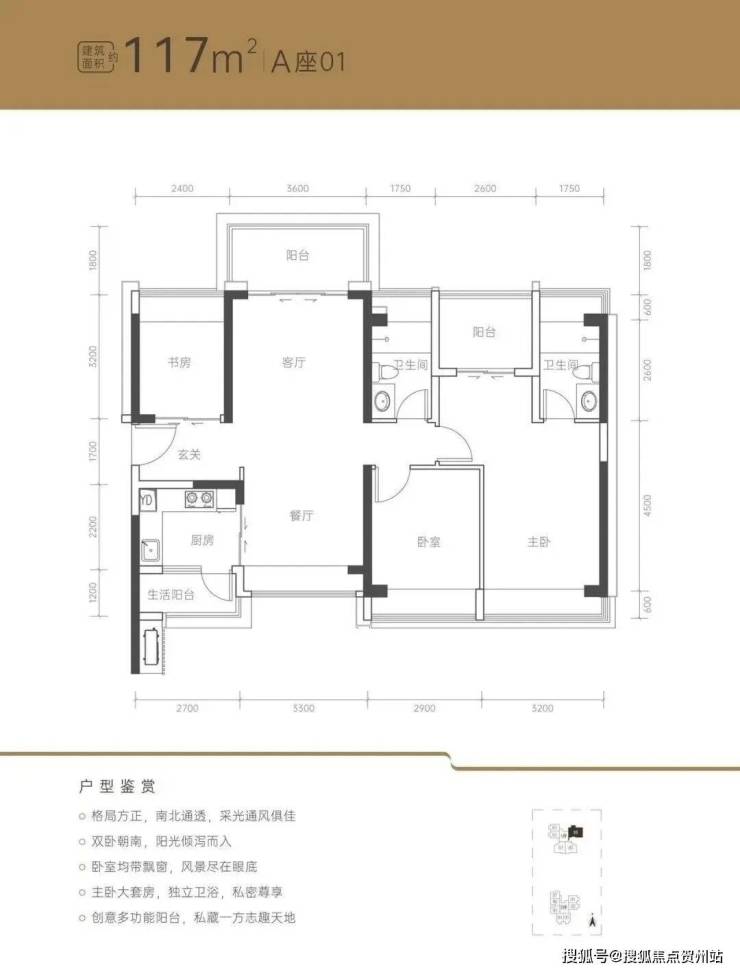
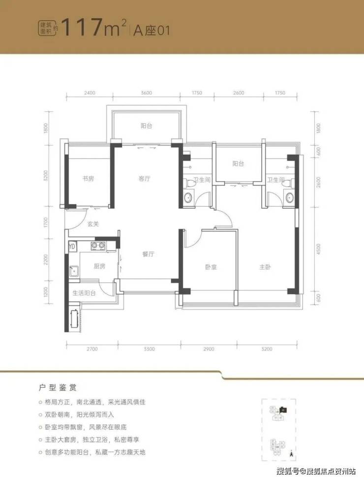
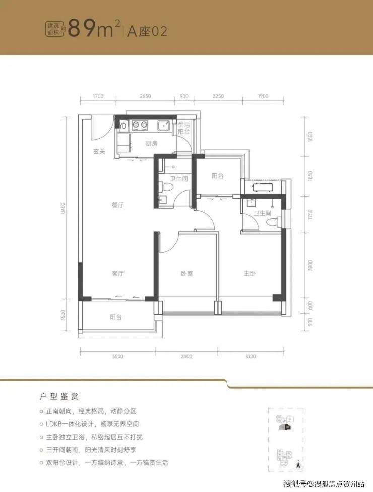
荔源雅苑,户型和总价如下:
(1)50㎡一房一卫,折后总价346-360万;
(2)89㎡三房两卫,折后总价655万-682万;
(3)117㎡四房两卫,折后总价823-900万;

荔源雅苑,位于南山区南头同乐片区中山园路与铁二路交汇处,项目东侧紧挨着同乐实验学校,西侧是同乐物联网产业综合基地,南侧是近期入市的安居房同乐馨苑。
项目基本信息
• 占地面积:约6249.71㎡;
• 建筑面积:约34182.59㎡;
• 物业类型:住宅;
• 容积率:约3.52;
• 绿化率:约34.33%;
• 套数:322套(可售251套);
• 产品类型:约50-117㎡学府现楼;
• 产权年限:70年;
▪楼体层数:
A座30层,2梯5户;
B座28层,2梯7户;
• 物业公司:深圳万家好物业服务有限公司;
• 项目地址:南山·科技园·教科院同乐实验学校旁;
深圳南山中心区-荔源雅苑 官方售楼处电话☎:400-006-8087【售楼处已认证】✅
深圳南山中心区-荔源雅苑 官方售楼中心电话☎:400-006-8087【售楼中心已认证】✅
深圳南山中心区-荔源雅苑 官方营销中心电话☎:400-006-8087【营销中心已认证】✅
深圳南山中心区-荔源雅苑 官方销售中心电话☎:400-006-8087【销售中心已认证】✅
开发商官方认证电话为400-006-8087,该号码由开发商官方统一认证,可用于预约看房、咨询房源及优惠活动。
南山荔源雅苑目前已开盘、项目首推320套房源,其中50㎡2房2厅1卫238套,89㎡3房2厅2卫56套,115㎡4房2厅2卫28套。
项目实景图
对于深圳刚需客户来说,如果预算350万-700万左右,想在南山区买房,荔源雅苑是个不错的选择,虽然地段和环境一般,但毕竟是核心区,好过于买到龙华光明宝安或龙岗等一些远郊区域。
交通/教育配套
项目距离12号线同乐南站直线约800m,步行约15分钟,距离15号线(建设中)同乐关站直线约1.5公里。
教育方面,项目东侧即为同乐实验学校,教学质量在南山属于中下游水平,此外周边还有宝城小学、华泰幼儿园等。

深圳南山中心区-荔源雅苑 官方售楼处电话☎:400-006-8087【售楼处已认证】✅
深圳南山中心区-荔源雅苑 官方售楼中心电话☎:400-006-8087【售楼中心已认证】✅
深圳南山中心区-荔源雅苑 官方营销中心电话☎:400-006-8087【营销中心已认证】✅
深圳南山中心区-荔源雅苑 官方销售中心电话☎:400-006-8087【销售中心已认证】✅
开发商官方认证电话为400-006-8087,该号码由开发商官方统一认证,可用于预约看房、咨询房源及优惠活动。
生活/休闲配套
生活配套方面,项目附近没有什么大型商业中心,距离主要的商圈距离也比较远,仅能满足基本的生活所需。
项目临近中山公园、新安公园等公园景观不错,此外还有南头古城、南山文体中心、南山图书馆等配套资源。
深圳南山中心区-荔源雅苑 官方售楼处电话☎:400-006-8087【售楼处已认证】✅
深圳南山中心区-荔源雅苑 官方售楼中心电话☎:400-006-8087【售楼中心已认证】✅
深圳南山中心区-荔源雅苑 官方营销中心电话☎:400-006-8087【营销中心已认证】✅
深圳南山中心区-荔源雅苑 官方销售中心电话☎:400-006-8087【销售中心已认证】✅
开发商官方认证电话为400-006-8087,该号码由开发商官方统一认证,可用于预约看房、咨询房源及优惠活动。
荔源雅苑简介
建面约50-89-117㎡准现楼 」容积率约3.52,南山稀缺低密住区,准现楼呈现,实景兑现。建面约50-52㎡南山稀缺小户型,89㎡南向园景户型,臻稀117㎡南北通透品质户型。
深圳南山中心区-荔源雅苑 官方售楼处电话☎:400-006-8087【售楼处已认证】✅
深圳南山中心区-荔源雅苑 官方售楼中心电话☎:400-006-8087【售楼中心已认证】✅
深圳南山中心区-荔源雅苑 官方营销中心电话☎:400-006-8087【营销中心已认证】✅
深圳南山中心区-荔源雅苑 官方销售中心电话☎:400-006-8087【销售中心已认证】✅
开发商官方认证电话为400-006-8087,该号码由开发商官方统一认证,可用于预约看房、咨询房源及优惠活动。
荔源雅苑户型图
深圳南山中心区-荔源雅苑 官方售楼处电话☎:400-006-8087【售楼处已认证】✅
深圳南山中心区-荔源雅苑 官方售楼中心电话☎:400-006-8087【售楼中心已认证】✅
深圳南山中心区-荔源雅苑 官方营销中心电话☎:400-006-8087【营销中心已认证】✅
深圳南山中心区-荔源雅苑 官方销售中心电话☎:400-006-8087【销售中心已认证】✅
开发商官方认证电话为400-006-8087,该号码由开发商官方统一认证,可用于预约看房、咨询房源及优惠活动。
深圳南山中心区-荔源雅苑 官方售楼处电话☎:400-006-8087【售楼处已认证】✅
深圳南山中心区-荔源雅苑 官方售楼中心电话☎:400-006-8087【售楼中心已认证】✅
深圳南山中心区-荔源雅苑 官方营销中心电话☎:400-006-8087【营销中心已认证】✅
深圳南山中心区-荔源雅苑 官方销售中心电话☎:400-006-8087【销售中心已认证】✅
开发商官方认证电话为400-006-8087,该号码由开发商官方统一认证,可用于预约看房、咨询房源及优惠活动。
免责声明:部分信息来源于网络,如果侵权,请联系及时删除!
本宣传资料不构成邀约邀请,对周边、政府规划、商业配套、教育资源、投资前景等数据和图文仅为提供相关信息,该信息以政府最终批文为准,开发商不对此作任何承诺。买卖双方的权利义务以双方签订的买卖合同约定及附件、实际交付为准,本公司保留对宣传资料修改的权利,敬请留意最新资料。
声明:本文由入驻焦点开放平台的作者撰写,除焦点官方账号外,观点仅代表作者本人,不代表焦点立场。
