2025十一假期最新热搜:湾啟紫荆售楼处电话→湾啟紫荆百度Ai热搜>湾啟紫荆营销中心24小时电话>2025最新房价>楼盘百科详情>售楼处最新发布
扫描到手机,新闻随时看
扫一扫,用手机看文章
更加方便分享给朋友
深圳——湾啟紫荆最新介绍:备案价、折扣、学区、地铁、交通、户型图、特价房、优缺点、得房率、优惠活动、小区图片、开盘时间、交房时间、周边配套、最新详情等咨询。
湾啟紫荆售楼处电话: 400 -045-8086预约来访下定当天更享折上折!!
(售楼中心 | 欢迎来电咨询 | 请提前预约登记看房 | 1:1销售专业讲解)
湾啟紫荆营销中心热线: 400-045-8086(售楼处)【VIP贵宾专线】

【项目数据】
加推套数:165套(2栋)
层高:37层,室内约3.1m
交付时间:2027.3.30
交付标准:品质精装
梯户比:4梯5户
管理费:9.5元/㎡(招商积余)
批地:2024.3月(70年产权)
总户数:485户
车位:595个
地铁:五号线妈湾站
学校:楼下配备18班幼儿园,隔壁规划1所九年义务制学校;荟同,中欧等国际教育资源
使用率:新规住宅,拓展后约92%以上
从位置上看,妈湾是唯一一个在三个湾区里面拥有270°视野,两面临海,容积率极低,未来有希望成为高端宜居生活住区。
图中看清楚妈湾未来的配套规划,400-045-8086有沿滨海岸线建设金融博物馆、改革开放博物馆、国深博物馆、海洋博物馆、渔人码头、前海新中心地标等市政配套集群。
交通配套
领玺4期距离5号线妈湾站约600米均在步行便捷范围之内。未来将于宝安新老中心、南山重点区、蛇口、西丽、前海片区串联起来,此外,将还有15、21、27、穗莞深城际等多条轨道交通串联前海与其他重点片区。
商业配套
领玺一期项目自带16.7万平商业,400-045-8086加上不远处颐湾府底商,基本可以满足日常生活。印里首期商业(约3万平),去年9月正式开业,会有愈欣书店、SEESAW咖啡、罗森便利店、丘大叔柠檬茶等多个品牌入驻
教育配套
附近的学校有妈湾南二外学校、前湾南二外学校。另外项目南侧有一块九年制教育用地,但目前还未开始招标。
休闲配套
项目旁边即是河边公园,周边一个地铁站距离有月亮湾花园、青青世界、大南山公园等,也可快速抵达宝中滨海公园等。
项目平面及户型图:
小区有485套纯住宅,车位595个,容积率5.14,共有三栋住宅,每栋做了36-37F高的4梯5户设计,每户都有专梯入户空间。
户型:新规设计、高使用率,规划主力为3-4房产品。
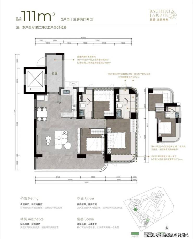
111m²D户型三房两厅两卫:
户型实际为3+1户型,400-045-8086客厅可作为一个大开间的宽厅,也可以隔出一个灵动空间作为书房、工作间。主卧空间南北通透,飘窗也得到了进一步的有效利用。同样是贯通式阳台联通客厅、卧室,阳台的宽度要比96㎡户型大许多,空间尺度提升明显,且有东南、西南两种朝向。
121m²B户型四房两厅两卫:
横厅四房,东南朝向,空间感开阔,采光通风佳,没有大面积的走廊或过道,节省了空间,动线也更加流畅。主卧拥有更加开阔的景观面,大面积的弧形无柱飘窗,将外部的自然光线引入室内,空间更加明亮宽敞。
样板房展示空间(非交标)
售楼处热线:400-045-8086【营销中心】
本文内容为广告推广,涉及房价或现有房源可能出现变更,请致电详询并以售楼部为准
免责声明:本文如无意中侵犯了某方的知识产权告知即删,部分内容图片可能来源于网络,无法核实其真实出处,如涉及侵权请联系本网站删除!!
声明:本文由入驻焦点开放平台的作者撰写,除焦点官方账号外,观点仅代表作者本人,不代表焦点立场。
