后海招商玺售楼处(后海招商玺) 首页网站-后海招商玺营销中心欢迎您-楼盘详情•最新价格-户型图-容积率@售楼处
扫描到手机,新闻随时看
扫一扫,用手机看文章
更加方便分享给朋友
后海招商玺-启幕城芯繁华 ��主力建面188-197-237-246㎡大平层。
��后海招商玺售楼中心电话��:400 079 2015【☎☎已认证】��
��☞☞Vip贵宾置业===欢迎来电预约尊享内部折扣===匠心钜制恭迎品鉴☜☜��
��后海招商玺售楼处电话��:400 079 2015【☎☎已认证】��
开发商售楼处24小时电话:400-079-2015(预约咨询热线)
现场详细解答丨项目介绍丨户型图丨在售房源丨特价房丨学校丨交通位置丨样板房丨小区图片丨交房时间丨周边配套

后海招商玺预计首批发售的1栋大平层,面积约197-235㎡,作为玺系的全新产品,后海招商玺是招商继“5000万蹲”深圳双玺和“2024年交付天花板”太子湾招商玺之后,再次带来的玺系新作。项目预计2025年年底入市
目前项目规划也已曝光:共有4栋住宅和1栋幼儿园,1、2、3栋的主力户型188-197-237-246㎡大平层。
项目介绍 | 基础信息
用地面积14969.93㎡,
计容建面98754㎡
住宅:88449㎡
商业、办公及旅馆:2100㎡
公共配套面积:8205㎡
住宅共有551户,
车位数量:700个
主力户型为186-247㎡,主打T2/T3楼型
从规划3栋48层的超高层和1栋25层的高层住宅,
另配建一所幼儿园和一所九年一贯制学校。
在住宅设计上,我们规划了“浮岛甲板”策略,四栋住宅楼坐落于抬升的甲板层面,共同享有其上的大型庭院花园。
此举构筑了“超级社区底盘”与“浮岛绿化甲板”的垂直共生模式,致力于打造引领未来的人居典范

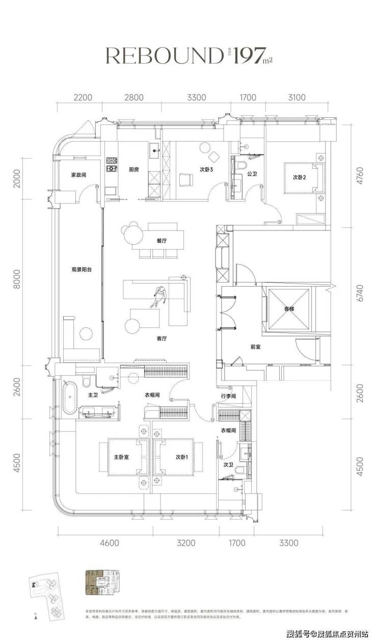
此次推出42套197平与237平大四房户型,专梯专户,
户型亮点
主力户型为197-235㎡大平层,主打T2/T3楼型。
以下是官方的户型图和平面图。参考如下↓

功能分区合理:四房三卫设计,南北通透,专梯入户(一户一梯),私密性强。
空间利用率高:采用核心筒+边柱设计,最大化阳台赠送率,专梯入户使用率预计达100%左右。
景观视野:部分户型享东南向海景,高区270°环幕视野,符合高端客群对“景观资源”的需求。
四栋住宅落在架空的绿化甲板上,底层是立体花园、会所空间,上层则是安静的人居区,动静分离,像是把“城市会客厅”搬进家门口。
据说,入口的殿堂级落客区、水景、天幕设计,仪式感直接拉满。

车行入户大门做了殿堂级落客区,与天幕和水景连接,具备豪宅归家奢侈感

每栋的独立入户大堂,采用无菱角高端石材,风格与大门相呼应,效果图看起来挺高端奢华的。

小区在规划上更注重功能的集中与高效利用,而是将休闲娱乐的核心亮点置于精心设计的架空层中,此处打造了具备多重会所功能的全天候空间,丰富了业主的社区生活体验。

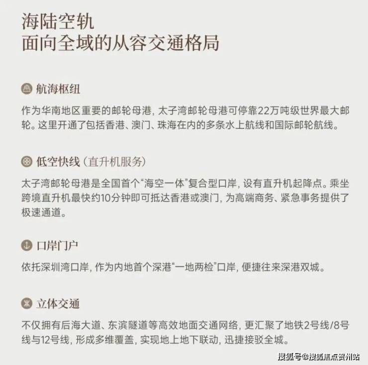
- 交通:地铁2号线海月站、湾厦站(步行约700米);主干道后海大道、滨海大道、东滨路,通勤科技园15分钟,福田/前海/宝中20-30分钟。
- 商业:2公里内覆盖宝能太古城(700米)、万象城、海岸城、来福士广场等大型购物中心,满足日常及高端消费需求。
- 教育:对口南山区优质公立学校“育才二小+育才二中”,小区内配建幼儿园及九年一贯制学校,教育资源稀缺。
- 生态与商务:3公里内覆盖深圳湾公园、深圳湾体育中心,形成“高端居住+滨海休闲+国际商务”复合生态圈,毗邻腾讯、OPPO等世界500强企业聚集区。


如需了解更多内部折扣详情,
欢迎咨询开发商售楼处咨询/预约电话☎:400-079-2015(中介请勿扰)
温馨提示:看房请务必电话提前预约,避免临时无人接待,感谢您的配合!

声明:本文由入驻焦点开放平台的作者撰写,除焦点官方账号外,观点仅代表作者本人,不代表焦点立场。
