鸿荣源珈誉玖玺售楼处电话(深圳)首页网站-鸿荣源珈誉玖玺营销中心-鸿荣源珈誉玖玺欢迎您-楼盘详情-最新价格-户型图-容积率※最新售楼处电话2025.09.26
扫描到手机,新闻随时看
扫一扫,用手机看文章
更加方便分享给朋友
…鸿荣源珈誉玖玺……鸿荣源珈誉玖玺……

鸿荣源珈誉玖玺也是鸿荣源珈誉府3期住宅,是整个项目的收官之作,刚需3件套齐全,以后也会是整个沙井配套最成熟,人口最集中的区域。

项目位于沙井新桥,珈誉府本身是一个大型综合体,自身配套丰富,自带50万㎡大型商业;地铁11号线塘尾站挨着项目,深圳外国语宝安学校在项目南北两侧,且靠近万丰湖、立新湖,有生态资源。
基本信息:
【占地面积】:约4.79万㎡
【园林面积】:约2.9万㎡
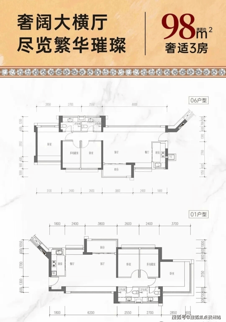
【户型产品】:约124-199㎡臻奢4房
【装修情况】:带装修交付
【产权年限】:70年(2022.5-2092.5)
【项目地址】:深圳·宝安大道和凤塘大道交汇(11号线塘尾站)



交通配套
地铁:无缝连接11号线塘尾站,6站到宝中(22min),7站到前海(25min),9站到后海、11站到车公庙,便捷到达南山、福田。
4站直达机场东综合枢纽(规划中):大型“空铁联运”的综合交通枢纽,集国际航空、高铁(深茂铁路-在建中)、城际铁路(穗莞深城际-在建中)、地铁(1号线、12号线)、公交等多种交通方式于一体。
7站即达前海交通枢纽(在建中):是亚洲第一、世界第四大地下交通枢纽换乘站,预计日客流量达到75万人次。
教育配套
深圳外国语学校(集团)宝安学校,广东省一级学校,宝安区委区政府首次引进的深圳“四大名校”。
另外,项目配建1所63班9年一贯制学校,同时配建2所幼儿园(1所12班幼儿园、1所18班幼儿园)。
再造一座“壹方城” 顶级全能配套
鸿荣源斥资约250亿打造的又一城市地标级“壹方城”,全国规模最大的“50万㎡全业态重奢奥莱”,由鸿荣源前海壹方城运营团队原班人马运营,相比于前海壹方城规模更大,业态更丰富,体验更高端,影响力更大,商业定中心,万千繁华尽在掌握。
声明:本文由入驻焦点开放平台的作者撰写,除焦点官方账号外,观点仅代表作者本人,不代表焦点立场。
