港珠澳未来城(售楼处)首页网站-港珠澳未来城营销中心-港珠澳未来城欢迎您_楼盘详情_最新价格_户型图_容积率@2025#售楼处电话
扫描到手机,新闻随时看
扫一扫,用手机看文章
更加方便分享给朋友
详情咨询/预约看房热线:400-016-8586【已认证】(营销中心)
珠海【港珠澳未来城】售楼中心电话:400-016-8586【售楼处24小时电话】
▼▼Vip贵宾置业====欢迎来电预约尊享内部折扣====匠心钜制恭迎品鉴!
开发商售楼处售楼处电话:400-016-8586【已认证】(营销中心)
港珠澳未来城楼盘最新介绍:备案价、折扣、学区、地铁、交通、户型图、特价房、优缺点、得房率、优惠活动、小区图片、开盘时间、交房时间、周边配套、最新详情等咨询。
【项目详情】
项目一期占地面积:约4.26万㎡
项目一期建筑面积: 约28.17万㎡
绿化率:32.54%
容积率:5.52
一期产品总栋数:7栋
在售产品:约40-216㎡口岸烫金资产
装修标准:带装修
层高:大户型3.6米,小户型3.3米
项目位置: 中国·港珠澳大桥·珠澳口岸岛
【项目品牌】
中国人寿集团:是中国最大的商业保险集团,与中华人民共和国同龄(1949年政府批准成立),是中央直管的国有大型骨干金融保险企业。
中国人寿集团旗下共有8家一级子公司,1家全国股份制银行(广发银行)、1所附属院校(保险职业学院)前“中国保险管理干部学院”。《财富》世界500强第40位、世界品牌500强第92位,品牌价值达4525.39亿元。2022年集团合并营业收入站稳万亿平台,合并总资产突破6万亿元大关,合并管理第三方资产近2.2万亿元(以上数据不含广发银行),累计为超8亿客户提供保险保障、财富管理等服务。
【项目区位图】
【项目总平图】
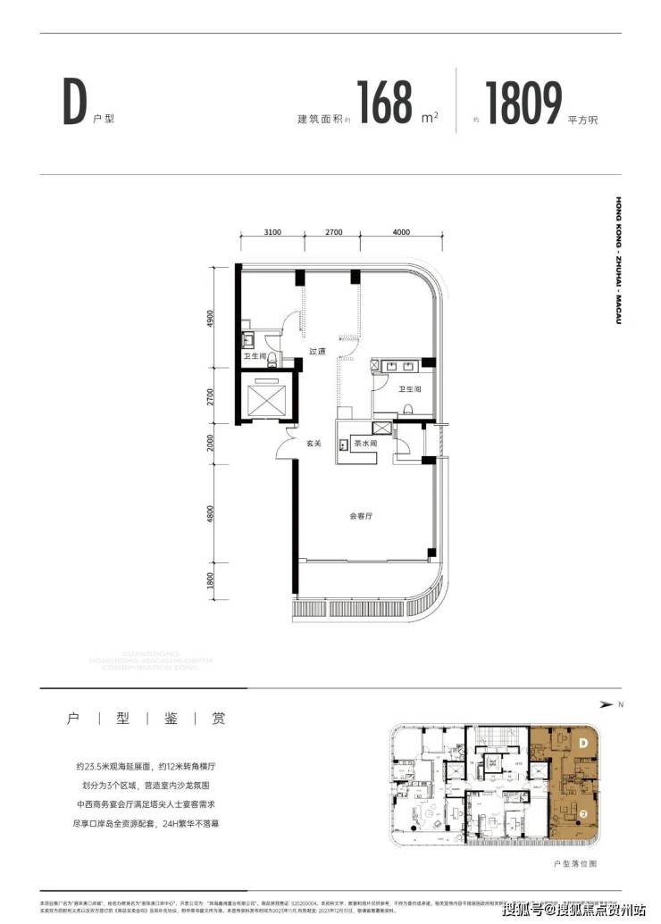
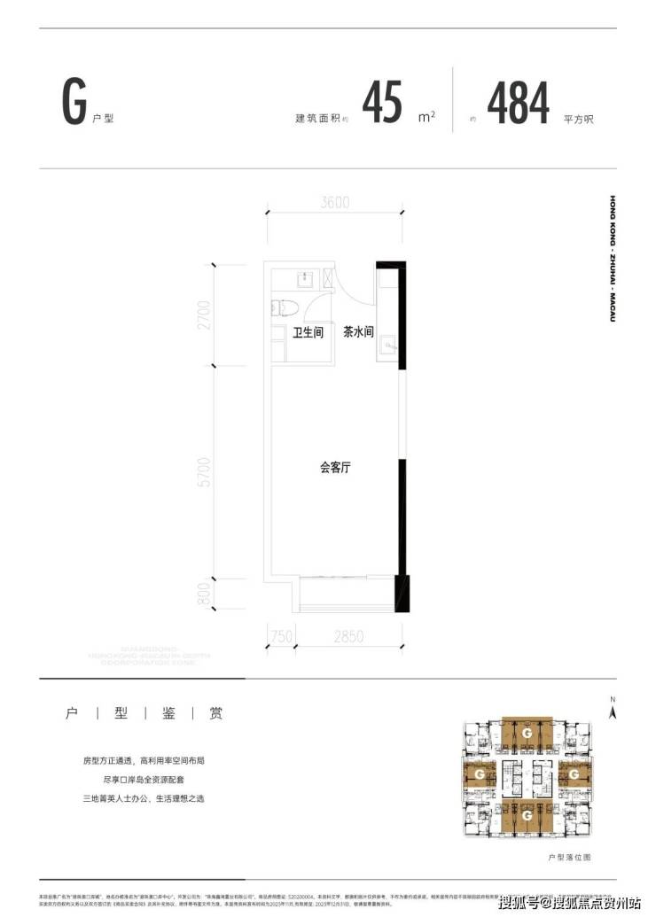
【一期户型落位图】
户型分布
F户型 :建面约40㎡
F1户型:建面约41㎡
G户型:建面约45㎡
H户型:建面约78㎡
E户型:建面约109㎡
D户型:建面约168㎡
C户型:建面约216㎡
①大国战略:粤港澳大湾区,未来成就世界第一湾
②时代风口:融汇香港、澳门、珠海3大特区城市,时代于此聚焦
③烫金地段:不可复制,执首港珠澳大桥,通关口岸上盖
④地标大城:建筑面积约120万㎡湾海不夜城,全球商旅文新一极
⑤湾区枢纽::湾海TOD,快速连接大湾区重要城市,全球中转岛
⑥巨头抢滩:星级酒店入驻,规划引入20家外资企业
⑦资源鼎配:湾海美学商业,国际会展中心,引聚世界潮流锋范
⑧头排视野:360°尽揽港珠澳三地盛景,一线近赏大桥,远眺湾海璀璨
⑨海岛度假:世界标准打造的海上公园,全岛风情12境,海岛美学度假园林
⑩限量藏品:三地之上谨此珍罕口岸资产,不限购不限贷,错过再无
最新利好政策
① 2023年1月1日“澳车北上”正式通车 (经港珠澳大桥公路口岸出入境的澳门单牌车每月稳定12-13万/辆次)
② 2023年7月1日“港车北上”正式通车 (2023年中秋国庆期间,经港珠澳大桥出入境车辆,居全国口岸第一)
【项目一期实景展示】
————【港珠澳未来城】————
开发商售楼处热线:400-016-8586 【营销中心】
本文内容为广告推广,涉及房价或现有房源可能出现变更,请致电详询并以售楼部为准。
免责声明:本文如无意中侵犯了某方的知识产权告知即删,部分内容图片可能来源于网络,无法核实其真实出处,如涉及侵权请联系本网站删除!!!
声明:本文由入驻焦点开放平台的作者撰写,除焦点官方账号外,观点仅代表作者本人,不代表焦点立场。
