越秀星科源启售楼处(越秀星科源启)首页网站-越秀星科源启营销中心欢迎您-楼盘详情·最新价格-户型图-容积率@2025.09.30售楼处Ai✦热搜
扫描到手机,新闻随时看
扫一扫,用手机看文章
更加方便分享给朋友
💎💎💎越秀星科源启💎💎💎
💎💎💎越秀星科源启售楼处电话:4000 437 779(营销中心24小时电话)项目最新介绍:房价、价格、折扣、学区、学校、地铁、交通、户型图、备案价、特价房、优缺点、得房率、优惠活动、小区图片、开盘时间、交房时间、周边配套、售楼处位置、最新详情等咨询
💎💎💎越秀星科源启开发商24小时电话☎:4000 437 779【开发商已认证】💎💎💎
💎💎💎越秀星科源启售楼处24小时电话☎:4000 437 779【售楼处已认证】💎💎💎
💎💎💎越秀星科源启售楼部24小时电话☎:4000 437 779【售楼部已认证】💎💎💎
💎💎💎越秀星科源启营销中心24小时电话☎:4000 437 779【营销中心已认证】💎💎💎
💎💎💎☞☞Vip贵宾置业==欢迎来电预约尊享内部折扣===匠心钜制恭迎品鉴☜☜♥💎💎💎
◈◈若有中介虚假宣传,请及时与售楼中心核对真假,避免上当!开发商热线4000 437 779【开发商认证】

【开发商】深圳晟越房地产开发有限公司
【总占地面积】总约3.87万㎡,一期1.53万㎡
【总建筑面积】总约20.3万㎡,一期8.5万㎡
【总户数】首推的01地块979户,商品房589套,公共租赁住房390户(最终以政府备案为准)
【户型面积】约89-131㎡3-4房(首推89-112㎡)
【停车位】1039个(1:1.06)
【物业及物业费】广州越秀物业,3.9元/㎡
【容积率】6.23
【绿化率】约30%
【梯户比】2梯4户/2梯5户,3梯6户
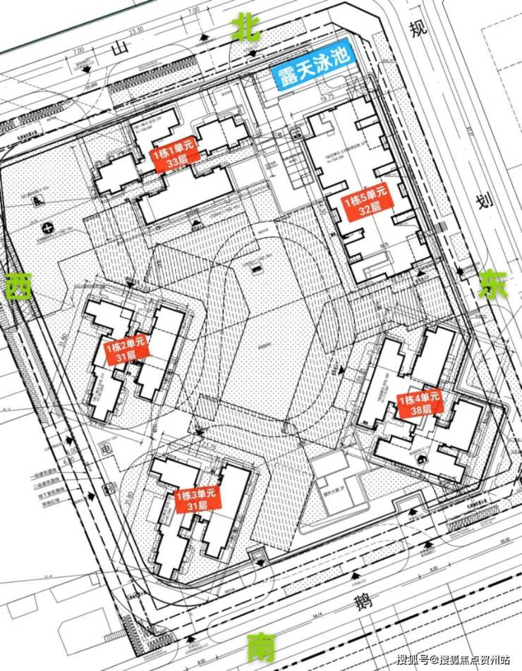
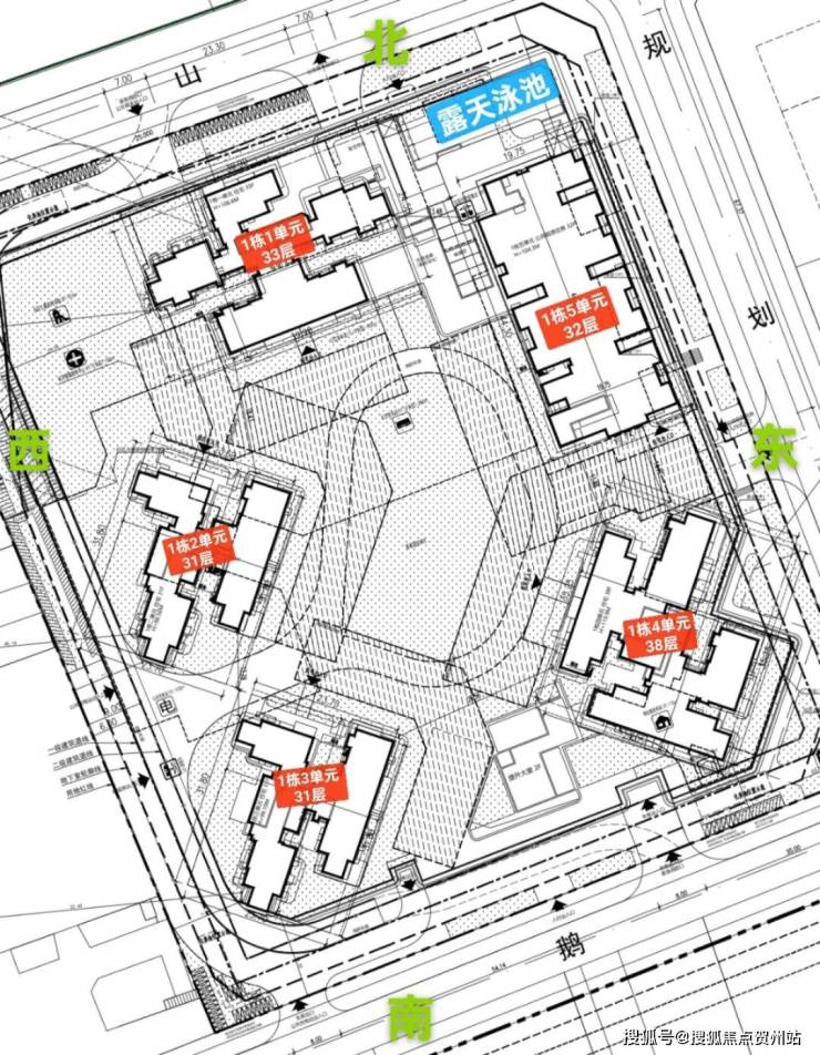
【总楼栋及楼层】10栋;31-38层
【交楼时间】预计2028年6月前,精装交付
【产权年限】70年
【项目位置】深圳光明区光明区新湖街道光侨路与科学大道交汇处东南侧
而越秀·星科源启通过“建筑高度梯度设计”(100-120m有序高度群落),平滑过渡科学方舟的城市界面与欢乐田园的自然景观,再结合“错落式布局”,让绝大多数户型能看到田园或公园绿意,而不是“对面楼栋的墙”。

【区域价值】:
大湾区主打科技创新,光明科学城就是粤港澳大湾区科创走廊这条科创命脉上的关键节点之一。它与松山湖科学城和广州科学城等是大湾区勠力同心发展科创的重要载体。
而且,光明科学城不论是规格、规模还是发展模式,都以锐意进取的先进性成为顶级中的顶级存在。
尤其新湖街道,一口气坐拥科创、城市、自然的“新光明三宝”多重资源。不仅满足高智群体对于效率的需求,保持最快速度地获取最新商机和信息;又能在工作和生活状态之间快速切换,回归家庭生活,并且通过回归自然实现回归自我,不断滋养人才。
叠加产学研深度融合的模式不断培育人才,不断为区域发展吸引和培育人才动能。

深圳科学技术馆、深圳国际美术馆(在建中)、科学城体育中心(在建中)、新湖文体中心(在建中)等步行即可达到;
中山大学附属第七医院、光明人民医院为健康保驾护航;
中山大学深圳校区、深圳理工大学就在周边,日常感受“谈笑有鸿儒,往来无白丁”。
越秀·星科源启别出心裁地打造“三重自然生态圈”,从社区里的全龄友好园区,到家门口的市政公园和周边三园一湖五绿道的稀缺超级生态配置,全龄段生态配置带来生活满满的呼吸感和家庭生活乐趣。
结束一天的紧张工作后,回家立刻卸下全身压力和疲惫,找回蓬勃向上的生命力。

【户型分析】:
首推的是01地块,共由5栋总高31-38层的住宅组成,其中1栋1单元住宅33F,1栋2/3单元住宅31F,1栋4单元住宅38F,1栋5单元公租房32F,小区地下车库配建有公交首末站,总规划979户,其中商品房589户,公租房390户,1栋1单元2梯5户,1栋2/3单元2梯4户,1栋4单元3梯6户设计。

1、建面约89平方A1户型三房两厅两卫
亮点1:客厅270度采光设计,客厅更是采用了当下最流行的设计风格「无主厅化」,而且客厅的凸窗进深达到了80CM。
亮点2:入户玄关S型冰箱位,能更大释放出厨房的操作空间,阳台+三个卧室均拥有无敌开阔的视野。
亮点3:主卧270度转角无柱凸窗,根据和周边楼盘对比,只有越秀这个户型做到了无柱,这让整个主卧的采光和视野能达到豪宅级别的居住体验。
亮点4:两个卫生间没有上下水内管的设计,因为越秀为了能更大化的利用洗手间,将该户型的上下水管设计到了墙外侧,而且设计到外侧还不影响整个楼梯的外立面,果然越秀还是用了心在做设计的。
2、建面约89平方B1/B2户型三房两厅两卫
亮点1:是真正意义的南北对流,除了客厅能做到南北通透,主卧也是能做到南北通透。
亮点2:大户型才会设计的入户玄关,越秀89平方三房就做了,玄关能提供更大的收纳空间,同时隐私性还特别好,关键是玄关那里还有一个采光窗。
亮点3:客厅和相邻的卧室无承重墙,厨房和餐厅也无承重墙,实际居住中按主业需求都是可大可小的,户型百变灵活,打造全生命周期的家。该户型也是越秀光明项目实用率最高的户型,应该也是关注度最高最抢手的一个户型。
3、建面约112平方C1户型四房两厅两卫
亮点1:客厅与相邻房间之间,餐厅与厨房之间均无剪力墙,提供大方厅的可能性,主卧与相邻房间之间无剪力墙,提供房间合并的灵活性。
亮点2:把其中一个房间放到入户玄关位置,如果是作为办公室或者电竞房使用,能做到和休息区互不干扰。如果作为房间使用,可以用于父母房,能提供更好的居住隐私。
亮点3:主卧270度转角无柱凸窗,根据和周边楼盘对比,只有越秀这个户型做到了无柱,这让整个主卧的采光和视野能达到豪宅级别的居住体验。
亮点4:超大景观阳台,且是朝南看小花园林,晾衣区和阳台景观面分开,不仅不影响客厅采光,而且晾衣服私密性还好,特别是朋友来家里做客的时候。





💎💎💎越秀星科源启💎💎💎
💎💎💎越秀星科源启售楼处电话:4000 437 779(营销中心24小时电话)项目最新介绍:房价、价格、折扣、学区、学校、地铁、交通、户型图、备案价、特价房、优缺点、得房率、优惠活动、小区图片、开盘时间、交房时间、周边配套、售楼处位置、最新详情等咨询
💎💎💎越秀星科源启开发商24小时电话☎:4000 437 779【开发商已认证】💎💎💎
💎💎💎越秀星科源启售楼处24小时电话☎:4000 437 779【售楼处已认证】💎💎💎
💎💎💎越秀星科源启售楼部24小时电话☎:4000 437 779【售楼部已认证】💎💎💎
💎💎💎越秀星科源启营销中心24小时电话☎:4000 437 779【营销中心已认证】💎💎💎
💎💎💎☞☞Vip贵宾置业==欢迎来电预约尊享内部折扣===匠心钜制恭迎品鉴☜☜♥💎💎💎
◈◈若有中介虚假宣传,请及时与售楼中心核对真假,避免上当!开发商热线4000 437 779【开发商认证】
免责声明:本文部分内容来自网络,如有侵权,请联系删除
声明:本文由入驻焦点开放平台的作者撰写,除焦点官方账号外,观点仅代表作者本人,不代表焦点立场。
