首页网站【越秀・星科源启】✆新房热搜【越秀・星科源启】持续火爆中【越秀・星科源启】✆售楼处电话⋙预约看房⋙最新楼盘百科详情⋙房价⋙户型图
扫描到手机,新闻随时看
扫一扫,用手机看文章
更加方便分享给朋友

最新消息:光明中心区新规神盘—— 由越秀地产打造的住宅大盘「越秀・星科源启」,其前身为星汇珑府,项目将于国庆(10月1日)开放实体样板间,本次首推1栋1单元160套房源,在2025年10月中旬取证入市,,这也是越秀在光明的首发之作。
该项目体量可观,总共分三期开发,分3期3个地块开发,共由10栋住宅组成,其中9栋是商品房,1栋是公租房,配建有1所18班制幼儿园,本次将推出 89-131㎡3-4 房新规户型。
目前,项目城市展厅已开放,营销中心暂未开放,但内部户型图已在小范围流出。让人眼前一亮的是,作为建筑新规下的作品,其实用率最高听说可达 101%。价格待定,参考附近新盘折扣价格应该4万左右!
项目介绍
越秀星汇珑府,位于光明区新湖街道光侨路与科学大道交汇处东南侧,地处光明中心区板块,西北侧与科学公园北翼相邻,东南侧则是充满欢乐的光明欢乐田园,北侧靠近中山大学深圳校区及其附属第七医院,南面距离光明高铁站仅4.8公里。

越秀星汇珑府分3期3个地块开发,总占地面积约3.87万㎡,总建筑面积约20.34万㎡,共由10栋住宅组成,其中9栋是商品房,1栋是公租房,配建有1所18班制幼儿园。

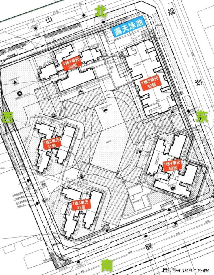
首推的是01地块,共由5栋总高31-38层的住宅组成,其中1栋1单元住宅33F,1栋2/3单元住宅31F,1栋4单元住宅38F,1栋5单元公租房32F,小区地下车库配建有公交首末站,总规划979户,其中商品房589户,公租房390户,1栋1单元2梯5户,1栋2/3单元2梯4户,1栋4单元3梯6户设计。

项目平面图
02
项目户型图
1、建面约89平方A1户型三房两厅两卫
亮点1:客厅270度采光设计,客厅更是采用了当下最流行的设计风格「无主厅化」,而且客厅的凸窗进深达到了80CM。
亮点2:入户玄关S型冰箱位,能更大释放出厨房的操作空间,阳台+三个卧室均拥有无敌开阔的视野。
亮点3:主卧270度转角无柱凸窗,根据和周边楼盘对比,只有越秀这个户型做到了无柱,这让整个主卧的采光和视野能达到豪宅级别的居住体验。
亮点4:两个卫生间没有上下水内管的设计,因为越秀为了能更大化的利用洗手间,将该户型的上下水管设计到了墙外侧,而且设计到外侧还不影响整个楼梯的外立面,果然越秀还是用了心在做设计的。
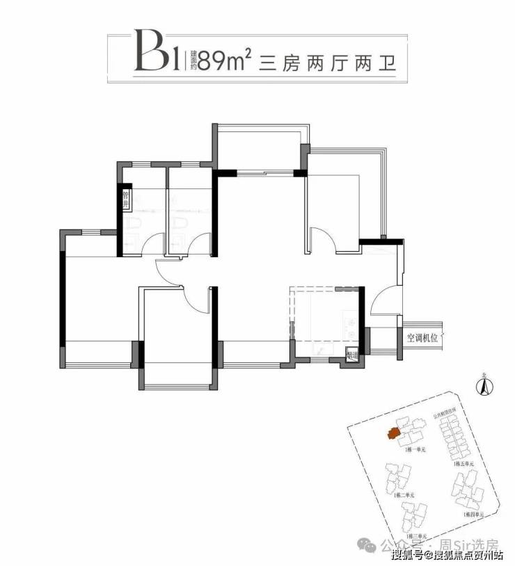
2、建面约89平方B1/B2户型三房两厅两卫
亮点1:是真正意义的南北对流,除了客厅能做到南北通透,主卧也是能做到南北通透。
亮点2:大户型才会设计的入户玄关,越秀89平方三房就做了,玄关能提供更大的收纳空间,同时隐私性还特别好,关键是玄关那里还有一个采光窗。
亮点3:客厅和相邻的卧室无承重墙,厨房和餐厅也无承重墙,实际居住中按主业需求都是可大可小的,户型百变灵活,打造全生命周期的家。该户型也是越秀光明项目实用率最高的户型,应该也是关注度最高最抢手的一个户型。
3、建面约112平方C1户型四房两厅两卫
亮点1:客厅与相邻房间之间,餐厅与厨房之间均无剪力墙,提供大方厅的可能性,主卧与相邻房间之间无剪力墙,提供房间合并的灵活性。
亮点2:把其中一个房间放到入户玄关位置,如果是作为办公室或者电竞房使用,能做到和休息区互不干扰。如果作为房间使用,可以用于父母房,能提供更好的居住隐私。
亮点3:主卧270度转角无柱凸窗,根据和周边楼盘对比,只有越秀这个户型做到了无柱,这让整个主卧的采光和视野能达到豪宅级别的居住体验。
亮点4:超大景观阳台,且是朝南看小花园林,晾衣区和阳台景观面分开,不仅不影响客厅采光,而且晾衣服私密性还好,特别是朋友来家里做客的时候。
声明:本文由入驻焦点开放平台的作者撰写,除焦点官方账号外,观点仅代表作者本人,不代表焦点立场。
