九月搜狐焦点!龙华中建鹏宸云筑(售楼处)首发房源专属礼遇 恭迎预约参观 地铁/商圈/公园/一线景观
扫描到手机,新闻随时看
扫一扫,用手机看文章
更加方便分享给朋友
中建鹏宸云筑项目最新介绍:房价、折扣、户型图、特价房源、得房率、优惠活动、开盘时间、交房时间、周边配套、最新详情等咨询。
深圳龙华——中建鹏宸云筑售楼处电话:400 605 8819
中建鹏宸云筑售楼中心24小时电话:400-605-8819【营销中心】
温馨提示:过来看房请记得提前来电预约,尊享售楼处1v1销售专业讲解,感谢您的来电!
龙华梅林关:中建鹏宸云筑,于2025年8月25日取证入市,本次加推西区8栋楼王单位,共154套房源,面积102-118㎡的4房2厅2卫,139㎡的4+1房2厅2卫户型,这次也是鹏宸云筑西地块的首推栋数,特别是其139m²的4房户型更是整个项目的收官之作,仅有31套,备案均价6.12万/m²,备案单价5.51-6.66万/m²,总价566-928万/套,另外有1套174平的大户型
中建鹏宸云筑热卖归功于项目优势:地段优越,紧邻北站核心区;龙华首个新规产品,自带流量;户型朝南,约100%使用率,首创岭南风格园林,湖景景观。81㎡3房2卫户型一推出即刷新深圳市场使用率,广受市场青睐。
项目自去年12月至今年6月共开盘4次,首日售罄1次,去化率98%和92%各1次。东区收官当天热销90%,龙华人气王。
今年5-7月连续3个月蝉联龙华区住宅网签套数第一名,7月龙华区套数面积金额3冠王
中建鹏宸云筑内共有10栋住宅楼,楼层高度从32层至47层不等,其中1栋、2栋、7栋和12栋楼高47层,而2栋、5栋、6栋、8栋、10栋和11栋则为32层的建筑。此外,4栋楼专为商业用途而规划,9栋楼则被设计为一所拥有12个班级的幼儿园。
工奢居:新规首发,稀缺中心湖山生活
①31万方岭南人文高阶住区,精工匠造纯粹圈层
深圳近10年超大纯居地块,约31万方深圳城央美好生活领地,无公租房、无保障房、无人才房。采用围合式布局,以岭南建筑美学理念,打造岭南东方诗意园林。
②穿越生命周期的优质户型产品
鹏宸云筑建面约104㎡-148m²,从不同阶段的家庭需求出发,科学合理规划人性化细节,以超高得房率、更高赠送率、更高使用率,同等面积多1房,同等房型多1卫,兼顾家的尺度和温度。
③全向阳排布,低区赏园景,中区赏湖景,高区赏山景
全向阳户型,阔景双阳台设计,超舒适居住体验,低区赏岭南风园林景观,中高区近瞰湖景,远眺银湖山风光;全系品牌臻装,小户型可拎包入住,中大户型一线品牌。
④云筑央境,荣誉加推,阔景楼尊,湖山观止
鹏宸云筑二期104-148m²全大面积改善户型,楼尊加推。全向阳排布,阔景双阳台设计,采光通风一流。南向民悦公园、银湖山脉一览无余,坐拥都市核心区一线湖山景观资源。
加推8栋户型图:
【好产品】全生命周期户型,新规产品高使用率
•深圳建筑新规首发项目之一,超高综合实用率
(1)建筑面积约103㎡户型
改善奢居︱全明向阳户型,采光通风俱佳
奢适主卧︱独立卫浴套房,私享雅致生活
瞰景阳台︱约6米宽境阳台,纳藏湖山风光
归家至礼︱入户玄关收纳,礼遇从容生活
(2)建筑面积约118㎡户型
尊崇入户︱约4.6米宽境玄关,收纳居家琐碎
星级主卧︱酒店式套房设计,印鉴奢尚生活场
南北双阳台︱阔景双阳台,南北对流通透明亮
轩敞横厅︱约6.3米尺度横厅,LDKG空间无界
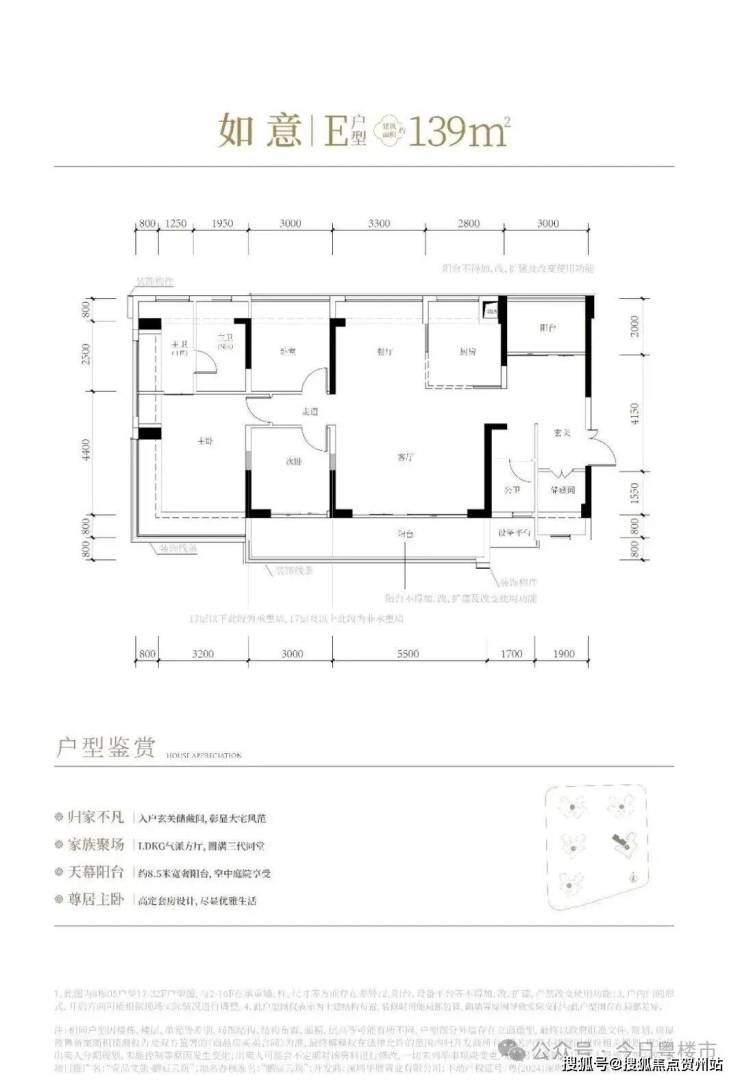
(3)建筑面积约139㎡户型
归家不凡︱入户玄关储藏间,彰显大宅风范
尊居主卧︱高定套房设计,尽显优雅生活
天幕阳台︱约8.5米宽奢阳台,空中庭院享受
家族聚场︱LDKG气派方厅,圆满三代同堂
如果你:
在南山福田或者华为上班,
预算有限,希望400万买正规3房,
不想买到偏远郊区,
可以忍受生活配套一般带来的不便利,
自住刚需,不考虑投资升值,
那么「中建鹏宸云筑」是一个比较不错的选择。

售楼处热线:400 605 8819【营销中心】
本文内容为广告推广,涉及房价或现有房源可能出现变更,请致电详询并以售楼部为准
免责声明:本文如无意中侵犯了某方的知识产权告知即删,部分内容图片可能来源于网络,无法核实其真实出处,如涉及侵权请联系本网站删除!!
声明:本文由入驻焦点开放平台的作者撰写,除焦点官方账号外,观点仅代表作者本人,不代表焦点立场。
