怀德城·德望府(怀德城·德望府售楼处)首页网站电话-怀德城·德望府营销中心电话-2025-欢迎您-楼盘详情-最新价格-户型图-容积率@售楼处中心2025.10.19
扫描到手机,新闻随时看
扫一扫,用手机看文章
更加方便分享给朋友
…怀德城·德望府……怀德城·德望府…

怀德城·德望府基础信息
【占地面积】:约2.6万㎡
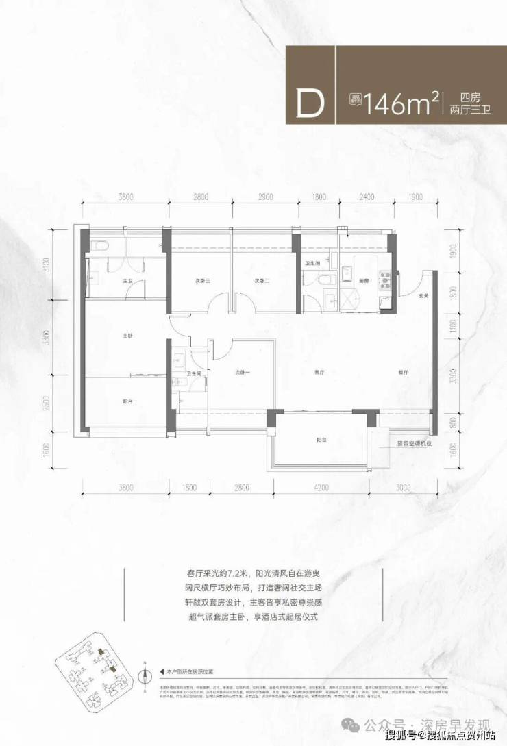
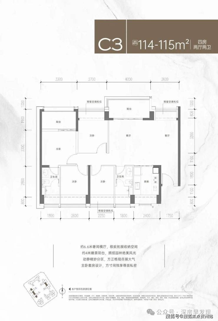
【户型产品】:约99-200㎡三至四房
【装修情况】:带装修交付
【产权年限】:70年
【项目车位】:超1:1
【项目地址】:深圳·宝安·福永·12号线怀德站
德望府选址大前海几何正芯,汇聚“大前海+大空港+大会展+海洋新城”四重战略红利,以政策高地与资源热土,成为大湾区时代下的资产压舱石。居于此,不仅是地段价值,更是与区域共进的房产红利。
大前海战略:依托顶层设计,构建国际级经济新高地,汇聚全球产业龙头,铸就开放创新动力源;
大空港战略:约95平方公里TOD新城,整合会展经济、海洋科技、总部商务,重塑西部发展格局;
大会展战略:占位粤港澳大湾区A字中轴,串联广深港科技走廊,执掌黄金内湾交通与经济双枢纽;
海洋新城战略:对标国际标杆湾区,打造全球海洋治理战略平台、海洋科创中心与生态示范区。
依托机场东“六位一体”超级枢纽,片区高效链接全球资本与技术。未来更以比肩上海虹桥的吸附力,导入跨国企业总部、高端制造与科创产业落位,成为大湾区一体化核心动脉与经济增长极。
作为怀德城四期作品,德望府融入约200万㎡大城版图中,聚合地铁上盖、高端住宅、万象商业、优教学府,打造出一站式全能生活大城。2024年德懿府热销印证市场认可,2025年德望府以建面约99-200㎡三至四房臻品焕新入市——您可享受的,是下楼即享都会繁华,归家即入宁静园林的从容生活,更是占据大城C位的身份象征。
真正地铁上盖,无缝接驳地铁12号线怀德站,快速换乘1/2/5/9/11/20号线及规划中的26/30号线。2站迅抵机场东,5站直抵宝中,7站即达南山,高效贯通全城核心。“海陆空轨铁”六维交通网络,从容出入世界。
项目自带约18万㎡华润万象商业综合体,荟萃一线品牌与国际潮流阵地。打造“空中山谷街区”,融合购物、餐饮、娱乐与文化等多重场景。步行即达益田假日天地,短驱可达湾区壹方商业(建设中)、山姆会员店(建设中),瞬间切换都会精彩生活。
社区配建18班幼儿园,与深圳大学附中宝安学校一路之隔,真正实现“目送式教育”。周边新安中学(集团)第二外国语学校、福永中学等多所优质学府环伺,形成从启蒙至中学的一站式教育长廊,护航子女成长每一步。
免责:以上内容旨在提供相关信息,不代表我司对学校规划建设,学区划分和就读政策作出承诺,最终规划建设、学区划分及就读政策以政府规划及教育主管部门、办学方颁布的政策和规定为准。
纵享凤凰山森林公园、翠岗公园、望牛亭公园、立新湖公园等5大生态绿地;社区慢行系统直连翠岗与望牛亭公园,打造可观可享的城市生态住区。外览山海辽阔,内拥园林静谧,四季更迭皆风景,日常生活即度假。
国际领先的城市运营者【怀德地产】深耕大湾区,从“旧改先锋”进阶“城市共建者”,于大空港门户,巨笔擘画 1.5 平方公里蓝图。以“超级综合体+"的科学前瞻性,规划部署包括总部基地、国际商务区、星级酒店及创新产业园、高端生活居住区、政府配套公共服务区在内的大型城市综合体。将建成总建面约1000万㎡的湾区超级大城,打造宜居宜业宜生态的千万方未来城市样板。
🏙外立面臻选大面宽玻璃和陶板幕墙精妙交织,对标豪宅选材,于线条光影中尽展现代艺术神韵,质感卓然、历久弥新。
🖼围合式园林美学,用空间镌刻自然,八大区块诗意铺陈,全龄泳池区、健身跑道、全龄健身器材一应俱全。每一天,都是与自然相拥的日常,每一处,皆是与诗意共度的时光。
规划设计约99-200㎡高品质全生命周期户型,专注细节,让家的每一个细节,都经得起时间与品味的考验。在这里,生活不是将就,而是处处贴合身心、滋养品味的真实场域。
声明:本文由入驻焦点开放平台的作者撰写,除焦点官方账号外,观点仅代表作者本人,不代表焦点立场。
