卓能雅苑(售楼处)首页网站-卓能雅苑营销中心-卓能雅苑欢迎您丨户型价格-容积率-样板房-配套详情@售楼处2025-09-07
扫描到手机,新闻随时看
扫一扫,用手机看文章
更加方便分享给朋友
深圳龙华区民治片区-卓能雅苑 售楼处电话☎:400 006 8087【售楼处已认证】✅
深圳龙华区民治片区-卓能雅苑 售楼中心电话☎:400 006 8087【售楼中心已认证】✅
深圳龙华区民治片区-卓能雅苑 营销中心电话☎:400 006 8087【营销中心已认证】✅
深圳龙华区民治片区-卓能雅苑 销售中心电话☎:400 006 8087【销售中心已认证】✅
本项目暂不接受临时到访,过来参观样板房请记得提前来电预约!
为您安排楼盘现场销售全程接待并讲解,给您更贴心的看房体验!

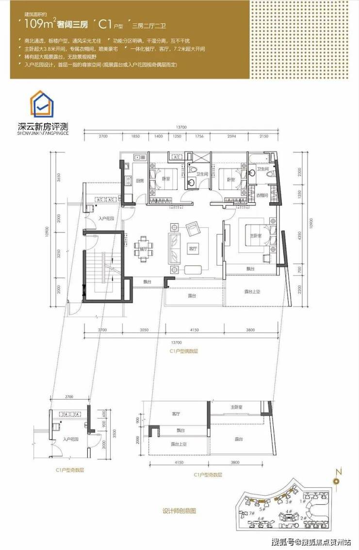
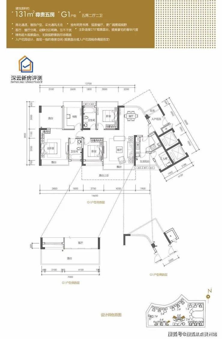
龙华【卓能雅苑】还有部分房源在售,推售面积段102-106-109-112-130㎡的3-4房。
各户型价格区间,单价4.6万起,备案价已调整为原备案价81折左右!
(1)约102㎡3+1房,折后总价约470-540万;
(2)约109㎡3+1房,折后总价约500-570万;
(3)约112㎡3+1房,折后总价约530-580万;
(4)约130㎡4+1房,折后总价约570-680万;
项目亮点:
1️⃣龙华北站&红山双中心
2️⃣一线教育,深中龙华学校
3️⃣现房在售,即买即住
4️⃣龙华稀缺2.3低密社区
5️⃣双地铁22/33号线 民治北站
6️⃣2.2万㎡夏威夷风情园林
7️⃣南北通透,使用率近100%
8️⃣带入户花园和景观阳台
龙华【卓能雅苑】,原名卓能OPUS,2004年批地,2015年才拿证正式入市,已成“高龄新房”,首期住宅售价4.5万/平,主推77-130平户型,并于2017年售罄,正式入伙。
区位及项目简介
项目位于龙华布龙路和油松路交汇处,为梅观高速下布龙路首站位置,交通方便,20分钟直达福田,周边商业及生活配套齐全。
卓能雅苑,由亚太高端地产-卓能集团打造。共7栋12-18F住宅板楼围合式分布,超百米的楼间距,板式结构、户户朝南,采光通风都不错,小区内约2万㎡夏威夷风情园林、高尚会所、1300㎡超大泳池、篮球、网球场等配套。
卓能雅苑于2004年11月拿地,2015年一期开盘均价4.5万,2019年二期开盘均价5.5万,且于2019年12月之前全部交付完毕。
项目承袭香港低密豪宅血统,卓能雅苑以2.3绝版低密墅级住区,打造深圳低密生活样本。全板楼设计,超阔楼间距,户户朝南设计,保障健康居住感受。小区自带逾2000㎡的夏威夷高台水系园林、4773.77㎡商业街、幼儿园、泳池、篮球场、网球场,此外项目还设有高端私人会所,具备商务洽谈、私人定制服务、休闲健身娱乐等功能,配套一应俱全。
基础数据
开发商:雄伟房地产开发(深圳)有限公司
物业公司:宝晨物业
总占地面积:约5.13万㎡
总建筑面积:约15.2万㎡
容积率:2.3
绿化率:35%
栋数:7栋
总户数:1085户
总层高:13-18层
梯户比:2T3户,2T4户
车位:1054个
物业费:3.5元/㎡·月
产权:70年(2004-2074年)
房产性质:住宅
交楼时间:现房
交楼标准:简装
面积:102-130㎡3-4房
配套介绍
01交通配套
500米范围内有33号线深大城际(建设中)、22号线(地铁五期规划中)民治北站;紧邻布龙路,梅观快速可快速通往各区域;
02教育配套
项目自带幼儿园,小学对口深圳中学龙华学校(属于1类)和行知小学,民顺小学;
初中对口深圳中学龙华学校(属于1类)和民治中学
03商业配套
自带4800㎡商业,周边5.5万㎡佐阾香颂购物中心、60万㎡壹方天地等高端商圈;
平面图及户型图
深圳龙华区民治片区-卓能雅苑 售楼处电话☎:400 006 8087【售楼处已认证】✅
深圳龙华区民治片区-卓能雅苑 售楼中心电话☎:400 006 8087【售楼中心已认证】✅
深圳龙华区民治片区-卓能雅苑 营销中心电话☎:400 006 8087【营销中心已认证】✅
深圳龙华区民治片区-卓能雅苑 销售中心电话☎:400 006 8087【销售中心已认证】✅
免责声明:部分信息来源于网络,如果侵权,请联系及时删除
本宣传资料不构成邀约邀请,对周边、政府规划、商业配套、教育资源、投资前景等数据和图文仅为提供相关信息,该信息以政府最终批文为准,开发商不对此作任何承诺。买卖双方的权利义务以双方签订的买卖合同约定及附件、实际交付为准,本公司保留对宣传资料修改的权利,敬请留意最新资料。
声明:本文由入驻焦点开放平台的作者撰写,除焦点官方账号外,观点仅代表作者本人,不代表焦点立场。
