深圳·华联峦山府(售楼处)首页网站华联峦山府售楼中心(营销中心)-华联峦山府楼盘欢迎您-小区环境-户型-价格-地址-楼盘详情-周边配套-售楼处电话
扫描到手机,新闻随时看
扫一扫,用手机看文章
更加方便分享给朋友
华联峦山府售楼处Vip Tel:400-031-6012售楼处【售楼处已认证☎☎】⭐
华联峦山府营销中心24小时电话:400-031-6012【营销中心☎☎已认证】⭐
华联峦山府营销中心24小时电话:400-031-6012【售楼中心☎☎已认证】⭐
华联峦山府售楼中心24小时电话:400-031-6012【售楼处限时特价】⭐
华联峦山府售楼中心24小时电话:400-031-6012【营销中心☎☎已认证】⭐
华联峦山府营销中心24小时电话:400-031-6012【售楼处☎☎已认证】⭐
⭐◆ 开发商营销中心诚挚邀请,为您安全和隐私保驾护航,一键预约,尊享内部折扣!匠心独运的精品项目,恭候您的品鉴与选择。⭐ 过来参观样板房烦请记得提前来电预约!安排楼盘现场销售全程接待并讲解,给您更贴心的看房体验!
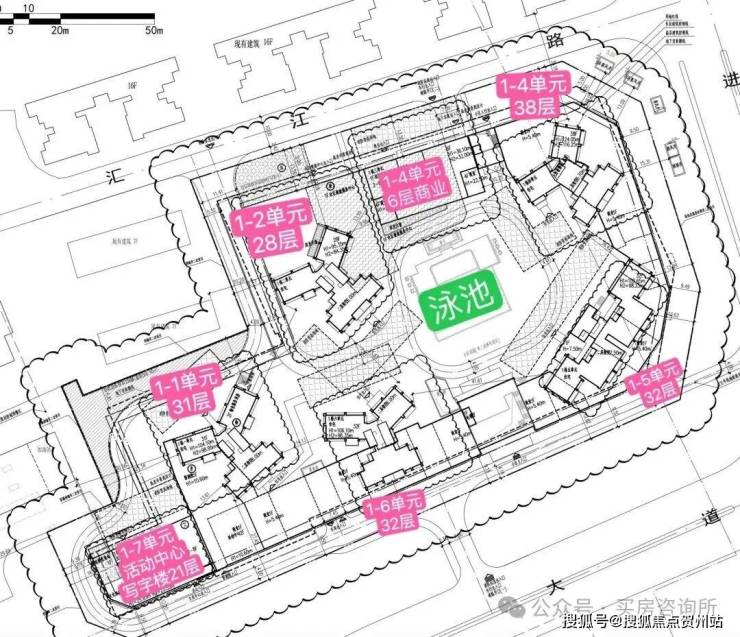
共规划建设7栋楼体,其中5栋为28-38层的高层住宅,共504户,均采用2梯4户或3梯4户的设计,另有1栋6层商业和1栋21层的办公产品,项目推出住宅产品为94-120㎡,以及161㎡6米层高的复式,此外小区内设有泳池配套。
华联峦山府位于宝安区西乡街道广深公路与航城大道交汇处东北侧,楼下即地铁12号线西乡桃源站,是景恒泰公司倾力打造的高端住宅项目。
项目总建设用地面积约2.19万m²,总建筑面积约12.42万m²,容积率4.19,车位比约1:1.29。
共规划建设7栋楼体,其中5栋为28-38层的高层住宅,共504户,均采用2梯4户或3梯4户的设计,另有1栋6层商业和1栋21层的办公产品,项目推出住宅产品为94-120㎡,以及161㎡6米层高的复式,此外小区内设有泳池配套。
华联峦山府效果图
官方户型图:
周边配套情况:
交通配套:
御品峦山雅苑坐落于宝安区西乡街道,出门即是主干道107国道(广深公路),为您的出行提供了极大的便利。此外,项目还是双地铁口物业,距离12号地铁线“西乡桃源站”和在建的20号地铁线二期“航城站”均在50米范围内,真正实现了地铁物业的便捷生活。20号线3站机场,7站南山科技园
教育配套:
根据宝安区教育局2024年最新的学区划分,峦山府的小初学区均划分在西乡实验学校和中澳实验学校公办班。其中,西乡实验学校距离项目约880米,是一所九年制公办学校,设计办学规模72班,于2021年9月正式开办。在
中澳实验学校公办班虽然距离较近,但需注意的是,该校公办班有委托办学协议,会优先录取桃源居小区的生源。因此,购房者在选择时需充分考虑这一因素。
商业配套:
御品峦山雅苑自带有7000㎡社区底商,满足日常购物需求。同时,周边桃源居的社区底商也非常成熟,提供了更多的购物选择。在1公里范围内,有航城里购物中心;约3公里内,还有缤纷时代购物中心、西乡彩虹城等集中商业体,为居民提供了丰富的购物、娱乐、餐饮等生活配套。
文娱配套:
项目几百米就是森林体育公园跟平峦山公园,平时休闲可以走走体育公园,周末休息能爬爬山,距离项目4公里范围内还有铁仔山公园,西乡红树林公园,尖岗山公园等
华联峦山府营销中心24小时电话:400-031-6012【营销中心☎☎已认证】⭐
华联峦山府营销中心24小时电话:400-031-6012【售楼中心☎☎已认证】⭐
华联峦山府售楼中心24小时电话:400-031-6012【售楼处限时特价】⭐
华联峦山府售楼中心24小时电话:400-031-6012【营销中心☎☎已认证】⭐
华联峦山府营销中心24小时电话:400-031-6012【售楼处☎☎已认证】⭐
⭐◆ 开发商营销中心诚挚邀请,为您安全和隐私保驾护航,一键预约,尊享内部折扣!匠心独运的精品项目,恭候您的品鉴与选择。⭐ 过来参观样板房烦请记得提前来电预约!安排楼盘现场销售全程接待并讲解,给您更贴心的看房体验!
声明:本文由入驻焦点开放平台的作者撰写,除焦点官方账号外,观点仅代表作者本人,不代表焦点立场。
