加福华尔登首页网站-加福华尔登售楼处欢迎您-周边配套-楼盘详情-最新价格-备案价
扫描到手机,新闻随时看
扫一扫,用手机看文章
更加方便分享给朋友
深圳——加福华尔登最新介绍:备案价、折扣、学区、地铁、交通、户型图、特价房、优缺点、得房率、优惠活动、小区图片、开盘时间、交房时间、周边配套、最新详情等咨询。
加福华尔登售楼处电话: 400 -045-8086预约来访下定当天更享折上折!!
(售楼中心 | 欢迎来电咨询 | 请提前预约登记看房 | 1:1销售专业讲解)
加福华尔登营销中心热线: 400-045-8086(售楼处)【VIP贵宾专线】
项目基础数据
开发商:加福投资(深圳)有限公司(福朋喜来登星级酒店运营开发商)
物业:华尔登物业管理(深圳)有限公司
性质:住宅
总占地: 7602.91m²
总建面: 51581㎡
小区分布:单栋
总户数:462户
车位比:500个
梯户比:6梯8户
主力户型: 85/86㎡2房2厅1卫,90㎡2+1房2厅1卫,125㎡3房2厅2卫
楼层总高:67层/-3层,总高239米,单层3.25米
交付时间:2023年月日毛坯
批地时间:1998年月日(70年)
容积率:8.04
绿化率:28.1%
使用率:69.4%
作为 239 米的城央地标,项目拥有 “24 小时无间断、360 度宽频视野”,景观资源堪称深圳顶级:
向北看,是福田 CBD 的璀璨城市天际线;
向南望,能看到香港米浦的生态景致;
向西眺,深圳湾的碧海蓝天尽收眼底;
向东赏,罗湖的城市风貌清晰可见。
这种 “把深圳最核心风景装回家” 的体验,堪比纽约 ONE57、深圳海德园等顶级豪宅,居住的 “身份感” 和 “舒适度” 直接拉满。
繁华与静谧兼得

项目还有建面约256平的高区奢宅,于云端之上,匠造奢雅感官作品,一览福田CBD。

交通配套:
双地铁上盖物业,毗邻4、10、7号线福田口岸站及福民站,4号线2站直达福田CBD,7号线1站抵达皇岗口岸交通枢纽中心、10号线3站直通岗厦北交通枢纽中心;口岸交通:临近福田口岸与皇岗口岸,无缝接驳深港两地。
道路交通:
毗邻深南大道、滨河大道两条城市东西干道、京港澳高速公路入口,道路交通十分便捷,快速连通全市。
穗莞深城际(建设中)延长线——穗莞深城际前海至皇岗口岸段设有皇岗口岸站,途径南山、福田等地,建成通车后2站到前海,1站到深圳湾总部基地。
教育配套
项目周边优质学府环伺,从幼儿园到中小学的教育资源一应俱全,实现 “家与学校的零距离”。孩子不用早起赶校车,家长也省去接送奔波,下楼步行就能到学校;更重要的是,“与师为邻、书香满园” 的环境,能让孩子从小浸润在浓厚的学习氛围里,成长更省心。
医疗配套
项目距离最近的是福田妇幼保健院,开车15-20分钟可达北京大学深圳医院,福田人民医院,深圳儿童医院,深圳市福田区中医院,中山大学附属第八医院,福田第二人民医院,深圳市眼科医院,香港大学深圳。

商业配套
项目自持高端商业与地铁商业无缝接驳,下楼即可享受繁华地铁商业;百米即可到达水围文化商业街及水围1368文化街区,尽享众多深圳美食记忆及传承老店;2站即可尽享福田CBD250万商业体量,拥有卓悦中心、卓越世纪中心、深圳中心城广场、COCOPARK、皇庭广场、购物公园共6家超级shopping mal。
除了外部配套,项目的 “产品力” 同样经得起挑剔:
硬件够高端
:建筑外立面用荷兰进口氟碳漆、3MM 铝板和 low-e 玻璃,既显质感又耐用;门窗是德国原产 G-U 五金配件,开合静音又稳固;客梯是日本原装进口三菱高速电梯,候梯厅还装了空调,细节里都是高端感;
服务够贴心
:物业由拥有 15 年五星级酒店运营经验的团队打理,24 小时管家式服务,日常需求随叫随到,居住的尊崇感拉满;
交付有保障
:目前已是实景准现楼,今年买明年就能住,不用担长期待交房的风险,中心区的丰盛生活 “看得见、摸得着”。
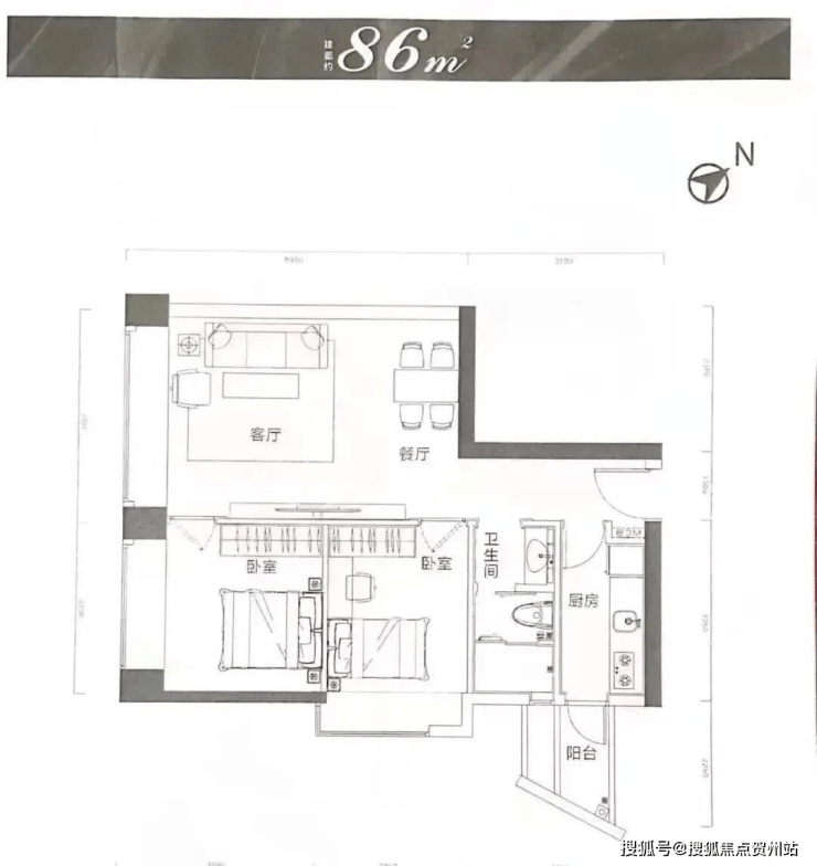
户型鉴赏
项目主力户型为85-125㎡的2-3房,均为现房销售,剩余房源集中在46楼以上高区,视野无遮挡。
85-86㎡两房

88-89㎡两房可改三房

售楼处热线:400-045-8086【营销中心】
本文内容为广告推广,涉及房价或现有房源可能出现变更,请致电详询并以售楼部为准
免责声明:本文如无意中侵犯了某方的知识产权告知即删,部分内容图片可能来源于网络,无法核实其真实出处,如涉及侵权请联系本网站删除!!
声明:本文由入驻焦点开放平台的作者撰写,除焦点官方账号外,观点仅代表作者本人,不代表焦点立场。
